104,900,000 Ft
271,000 €
- 73m²
- 3 Rooms
- 2nd floor
 
            
                                                             
            
                                                             
            
                                                             
            
                                                             
            
                                                             
            
                                                             
            
                                                             
            
                                                             
            
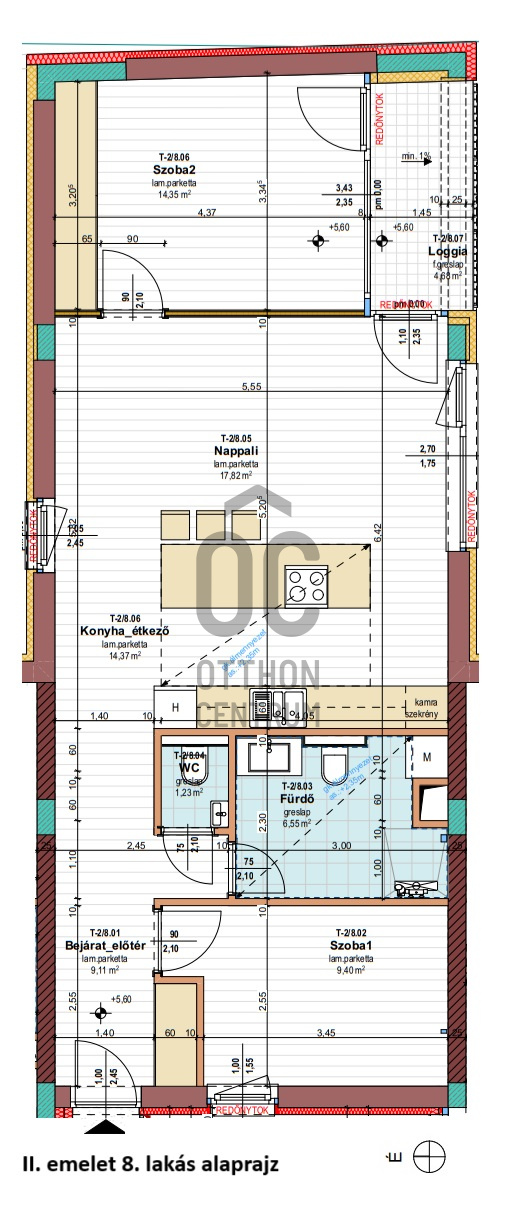
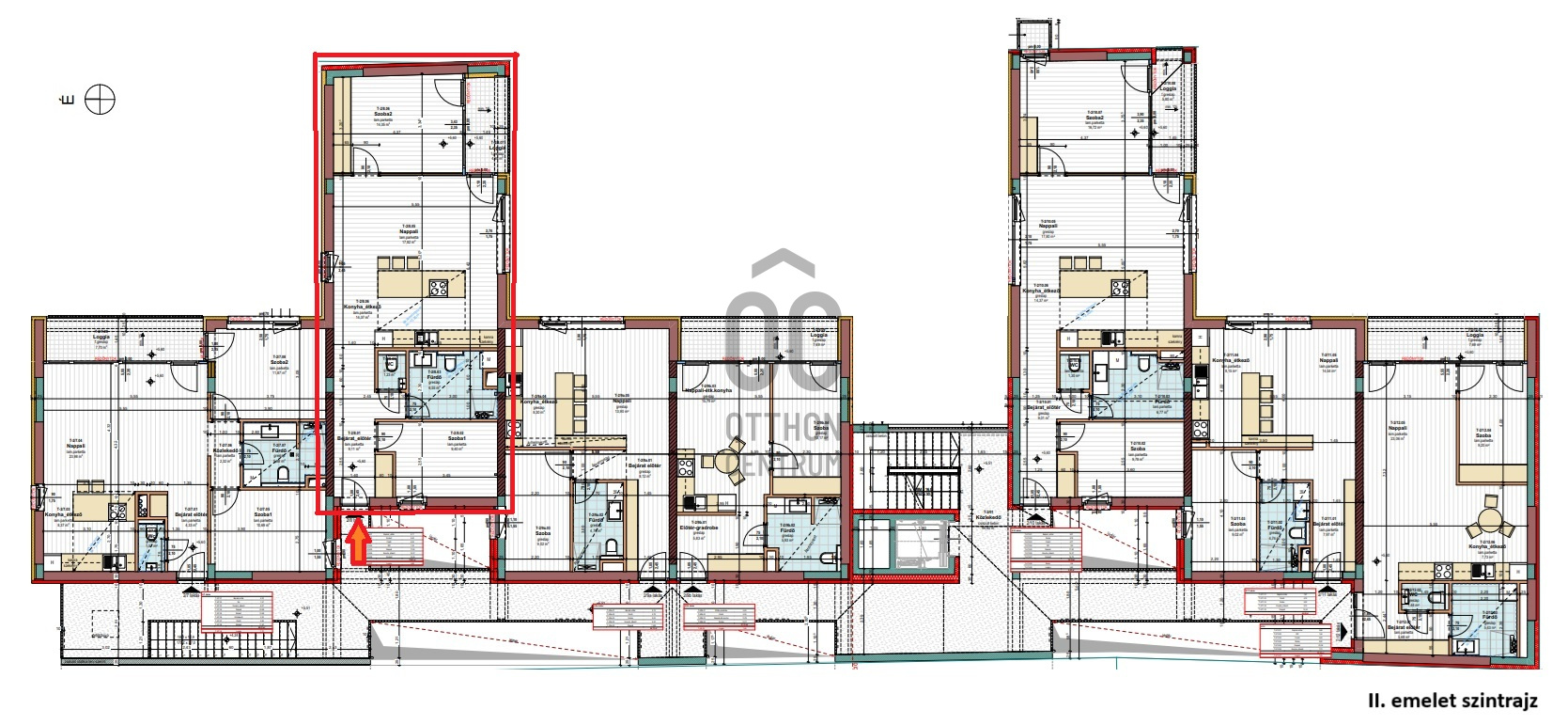
                                                            II. emelet 8. lakás br. 78 nm:
- amerikaikonyhás nappali (33 nm)
- 2 hálószoba ( 14, 9 nm)
- fürdőszoba - WC (7 nm)
- vendégmosdó
- loggia 2 kijárattal
- D-i tájolás
                    - amerikaikonyhás nappali (33 nm)
- 2 hálószoba ( 14, 9 nm)
- fürdőszoba - WC (7 nm)
- vendégmosdó
- loggia 2 kijárattal
- D-i tájolás
Registration Number
P4667-1-0A-02-008
                Property Details
Sales
                                        for sale
                                                                                                                                                Legal Status
                                        new
                                                                                                                                                Character
                                        apartment
                                                                                                                                                                                                                                                                                        Construction Method
                                        brick
                                                                                                                                                                                                                                                                                                                                                                                                                                                                                                    Net Size
                                        73 m²
                                                                                                                                                Gross Size
                                        78 m²
                                                                                                                                                                                                                    Size of Terrace / Balcony
                                        5 m²
                                                                                                                                                                                                                                                                                                                                                                                                                                Heating
                                        heat pump
                                                                                                                                                Ceiling Height
                                        270 cm
                                                                                                                                                                                                                    Orientation
                                        South
                                                                                                                                                                                                                    Staircase Type
                                        suspended corridor
                                                                                                                                                Condition
                                        Excellent
                                                                                                                                                Condition of Facade
                                        Excellent
                                                                                                                                                Condition of Staircase
                                        Excellent
                                                                                                                                                                                                                    Neighborhood
                                        quiet, good transport, central
                                                                                                                                                Year of Construction
                                        2025
                                                                                                                                                Number of Bathrooms
                                        1
                                                                                                                                                Position
                                        garden-facing
                                                                                                                                                                                                                                                                                                                                                            Garage
                                        Separately purchasable
                                                                                                                                                                                                                                                                                                                                                            Water
                                        Available
                                                                                                                                                                                                                    Electricity
                                        Available
                                                                                                                                                Sewer
                                        Available
                                                                                                                                                Elevator
                                        available
                                                                                                                                                                                                                                                                                                                                                                                                                                                                                                                        Rooms
living room
                                        18 m²
                                                                            open-plan kitchen and dining room
                                        15 m²
                                                                            room
                                        14 m²
                                                                            room
                                        9 m²
                                                                            entryway
                                        9 m²
                                                                            bathroom-toilet
                                        7 m²
                                                                            toilet-washbasin
                                        1 m²
                                                                            loggia
                                        5 m²
                                                                     
            
                            Czellér András
Credit Expert
 
                     
                         
                         
                         
                         
                         
                         
                         
                         
                         
                    
                 
                 
                 
                 
                 
                 
                 
                 
                 
                 
                 
                