data_sheet.details.realestate.section.main.otthonstart_flag.label
                                        
                                    
                                                                For sale new construction apartment,
                                P4663-2-02-FZ-004
                            Balatonföldvár
                            90,000,000 Ft
232,000 €
- 90m²
- 4 Rooms
- ground floor
 
            
                                                             
            
                                                             
            
                                                             
            
                                                             
            
                                                             
            
                                                            Balatonföldvár – ahol a nyár élményei és a nyugalmas hétköznapok találkoznak.
Engedje meg, hogy bemutassuk Önnek legújabb lakásunkat a Balaton egyik legkedveltebb, családbarát településén, Balatonföldváron.
Új építésű lakóparkunkban, ahol több társasház is épül, most egy igazán különleges, belső kétszintes, 120 m²-es otthon válik elérhetővé – és talán éppen az Ön számára!
Mitől különleges ez a lakás?
Tágas, praktikus elrendezés: Nappali + 4 hálószoba (1 a földszinten, 3 az emeleten) – ideális választás nagycsaládosoknak vagy többgenerációs együttéléshez is.
Két külön fürdőszoba: Zuhanyzós a földszinten, kádas az emeleten – a kényelem itt alapfelszereltség.
160 m²-es saját kertkapcsolat: Saját zöldfelület, ahol a pihenés, játék és kertészkedés is öröm.
Saját gépkocsibeálló: Nincs több parkolási gond – saját hely mindig biztosított.
A kocsibeálló ára 5 millió forint ami kötelezően megvásárolandó.
Igényre szabható kialakítás: A válaszfalak még módosíthatók – alakítsa otthonát a saját elképzelései szerint!
Kulcsrakész átadás: 2025 augusztusában már be is költözhet új otthonába.
Kiváló ár-érték arány: Mindössze 1.000.000 Ft/m² – ritka lehetőség ezen a környéken.
Balatonföldvár – ahol a nyár élményei és a nyugalmas hétköznapok találkoznak.
                    Új építésű lakóparkunkban, ahol több társasház is épül, most egy igazán különleges, belső kétszintes, 120 m²-es otthon válik elérhetővé – és talán éppen az Ön számára!
Mitől különleges ez a lakás?
Tágas, praktikus elrendezés: Nappali + 4 hálószoba (1 a földszinten, 3 az emeleten) – ideális választás nagycsaládosoknak vagy többgenerációs együttéléshez is.
Két külön fürdőszoba: Zuhanyzós a földszinten, kádas az emeleten – a kényelem itt alapfelszereltség.
160 m²-es saját kertkapcsolat: Saját zöldfelület, ahol a pihenés, játék és kertészkedés is öröm.
Saját gépkocsibeálló: Nincs több parkolási gond – saját hely mindig biztosított.
A kocsibeálló ára 5 millió forint ami kötelezően megvásárolandó.
Igényre szabható kialakítás: A válaszfalak még módosíthatók – alakítsa otthonát a saját elképzelései szerint!
Kulcsrakész átadás: 2025 augusztusában már be is költözhet új otthonába.
Kiváló ár-érték arány: Mindössze 1.000.000 Ft/m² – ritka lehetőség ezen a környéken.
Balatonföldvár – ahol a nyár élményei és a nyugalmas hétköznapok találkoznak.
Registration Number
P4663-2-02-FZ-004
                Property Details
Sales
                                        for sale
                                                                                                                                                Legal Status
                                        new
                                                                                                                                                Character
                                        apartment
                                                                                                                                                                                                                                                                                        Construction Method
                                        brick
                                                                                                                                                                                                                                                                                                                                                                                                                                                                                                    Net Size
                                        90 m²
                                                                                                                                                Gross Size
                                        90 m²
                                                                                                                                                                                                                    Size of Terrace / Balcony
                                        9.5 m²
                                                                                                                                                                                                                                                                                                                                                                                                                                Heating
                                        heat pump
                                                                                                                                                Ceiling Height
                                        270 cm
                                                                                                                                                Number of Levels Within the Property
                                        1
                                                                                                                                                Orientation
                                        South-West
                                                                                                                                                                                                                    Staircase Type
                                        none
                                                                                                                                                Condition
                                        Excellent
                                                                                                                                                Condition of Facade
                                        Excellent
                                                                                                                                                Condition of Staircase
                                        Excellent
                                                                                                                                                                                                                    Neighborhood
                                        quiet, good transport, green, central
                                                                                                                                                Year of Construction
                                        2025
                                                                                                                                                Number of Bathrooms
                                        4
                                                                                                                                                Position
                                        garden-facing
                                                                                                                                                Condominium Garden
                                        yes
                                                                                                                                                                                                                                                                                                                                                                                                                                                                                                                                                                        Water
                                        Available
                                                                                                                                                Gas
                                        On the street
                                                                                                                                                Electricity
                                        Available
                                                                                                                                                Sewer
                                        Available
                                                                                                                                                                                                                                                                                        Connected to Garden
                                        yes
                                                                                                                                                                                                                                                                                        Distance to Waterfront
                                        more than 500 meters
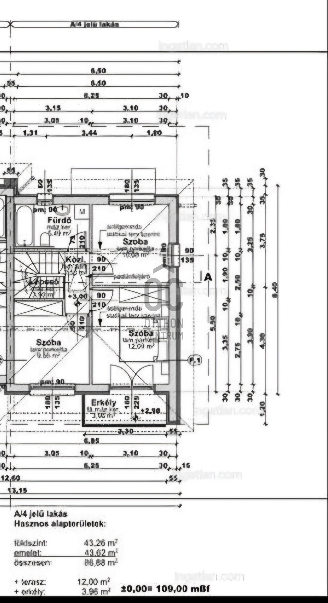
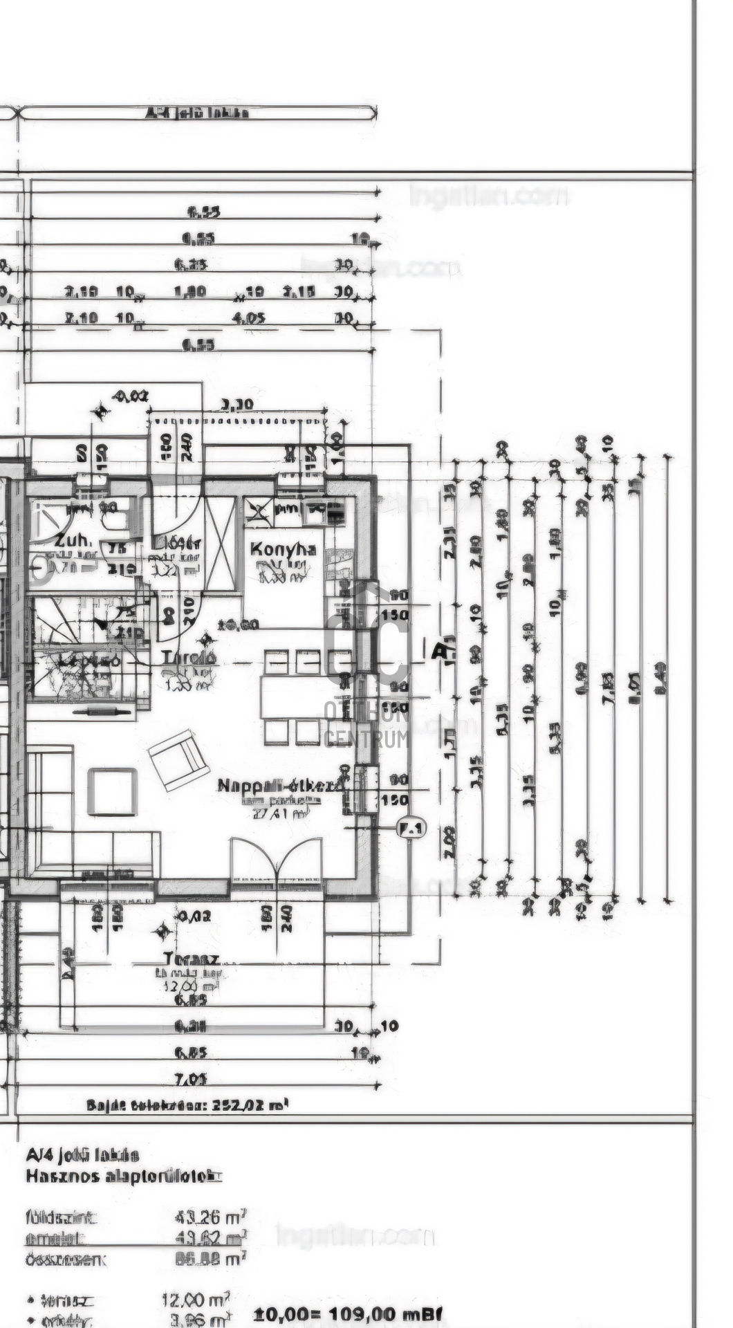
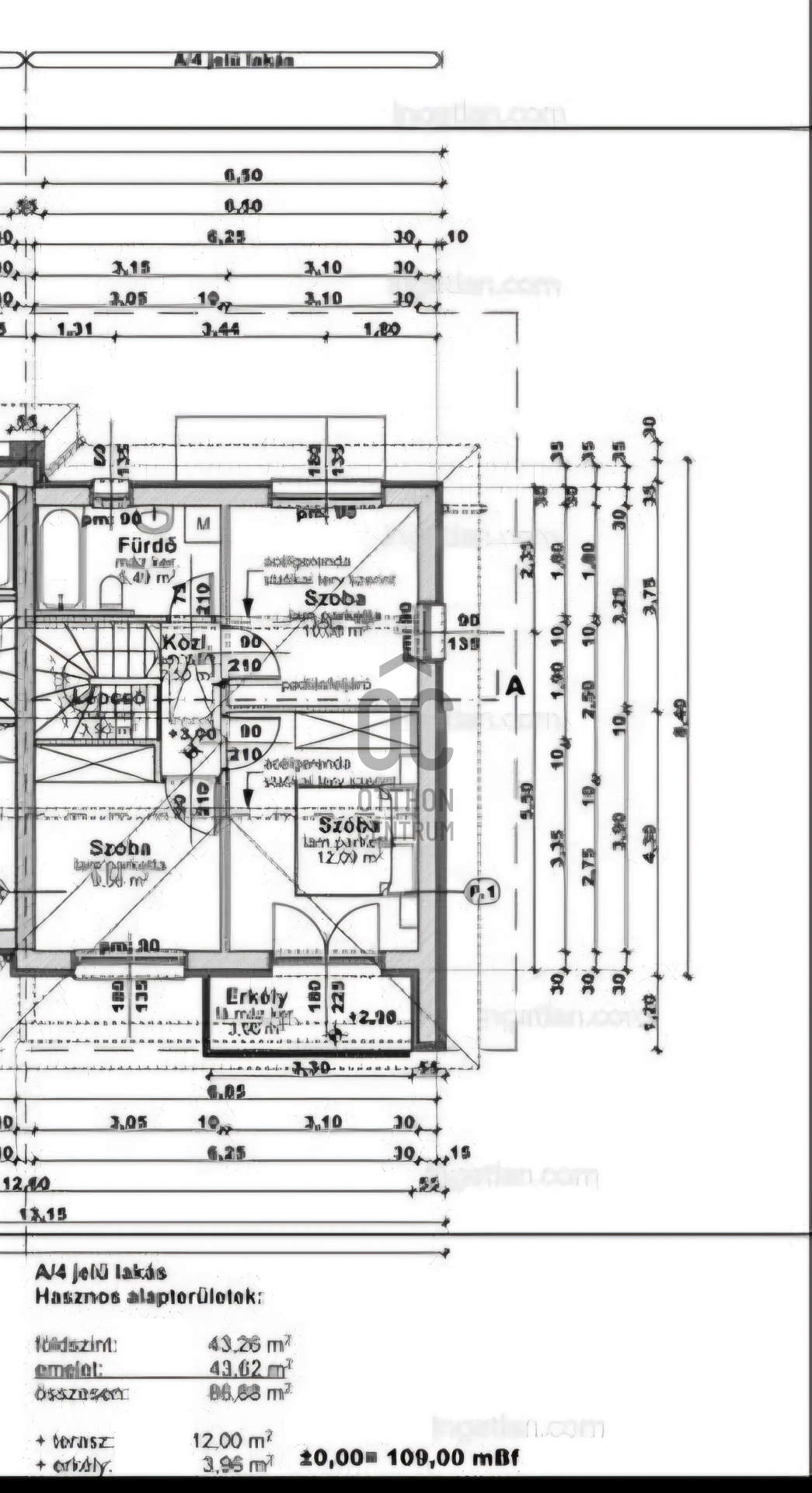
                                                                                                                                                                    Rooms
kitchen
                                        5.38 m²
                                                                            entryway
                                        3.22 m²
                                                                            open-plan living and dining room
                                        27.41 m²
                                                                            bathroom-toilet
                                        3.79 m²
                                                                            bedroom
                                        12.9 m²
                                                                            bedroom
                                        9.56 m²
                                                                            bedroom
                                        10.08 m²
                                                                            staircase
                                        3.9 m²
                                                                            bathroom-toilet
                                        5.49 m²
                                                                     
            
                            Dienes László
Credit Expert
 
                     
                         
                         
                         
                         
                         
                         
                    
                 
                 
                 
                 
                 
                 
                 
                 
                 
                 
                 
                