For sale new construction apartment, P4648-1-0A-06-005
Budapest VII. kerület, Középső Erzsébetváros

102,784,500 Ft

270,000 €

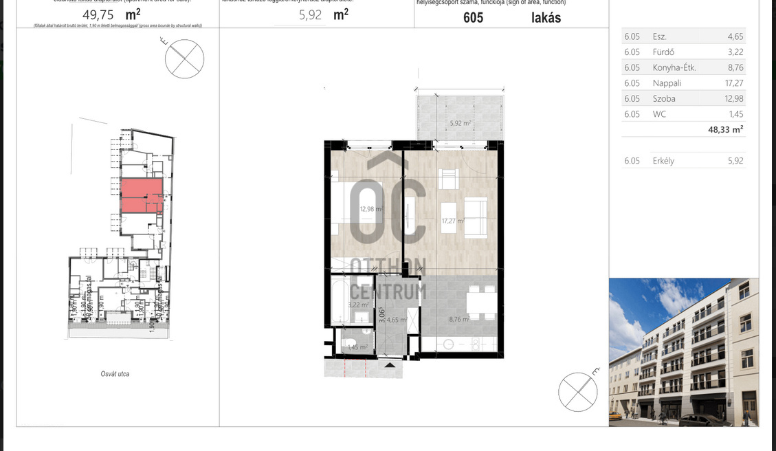
  • 48m²
  • 2 Rooms
  • 6th floor

Átadás előtti, belvárosi új építésű lakások!

Az ingatlan a hatodik emeleten található. Kertre néző. A fotók decemberben készültek!

Registration Number

P4648-1-0A-06-005

Property Details

Sales
for sale
Legal Status
new
Character
apartment
Construction Method
brick
Net Size
48 m²
Gross Size
52.7 m²
Size of Terrace / Balcony
6 m²
Heating
heat pump
Ceiling Height
260 cm
Orientation
North-West
Staircase Type
enclosed staircase
Condition
Excellent
Condition of Facade
Excellent
Condition of Staircase
Excellent
Year of Construction
2026
Number of Bathrooms
1
Position
garden-facing
Garage
Separately purchasable
Water
Available
Electricity
Available
Sewer
Available
Elevator
available

Rooms

living room
0 m²
open-plan kitchen and dining room
0 m²
entryway
0 m²
bedroom
0 m²
bathroom
0 m²
toilet-washbasin
0 m²
balcony
0 m²
Ruczek Krisztina
Ruczek Krisztina

Credit Expert

From Our Office Listings - V. kerület - Hild tér

for sale apartment

Index image
13

for sale apartment

Index image
27

for sale apartment

Index image
17

for sale apartment

Index image
5

for rent apartment

Index image
17

for sale apartment

Index image
16

for sale apartment

Index image
23