For sale new construction apartment, P4648-1-0A-05-009
Budapest VII. kerület, Középső Erzsébetváros

153,031,500 Ft

407,000 €

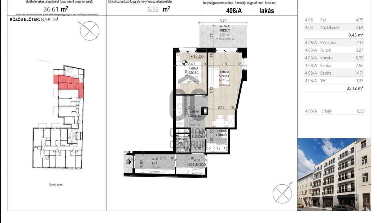
  • 64.4m²
  • 3 Rooms
  • 5th floor

Azonnal költözhető belvárosi, újépítésű lakások!

Befektetőknek! Az ingatlan az 5. emeleten található. Kertre néző. Egy helyrajzi számon két különálló ingatlan került kialakításra.
Egy garzon és egy nappali + 1 hálós lakás. 70.242.900 Ft, 82.788.600 Ft. Ügyvédi megosztással külön is megvásárolhatók.

Registration Number

P4648-1-0A-05-009

Property Details

Sales
for sale
Legal Status
new
Character
apartment
Construction Method
brick
Net Size
64.4 m²
Gross Size
82.2 m²
Size of Terrace / Balcony
14.2 m²
Heating
heat pump
Ceiling Height
260 cm
Orientation
North-West
Staircase Type
enclosed staircase
Condition
Excellent
Condition of Facade
Excellent
Condition of Staircase
Excellent
Year of Construction
2026
Number of Bathrooms
2
Position
garden-facing
Garage
Separately purchasable
Water
Available
Electricity
Available
Sewer
Available
Elevator
available

Rooms

open-plan kitchen and living room
0 m²
open-plan kitchen and living room
0 m²
bedroom
0 m²
entryway
0 m²
corridor
0 m²
toilet-washbasin
0 m²
bathroom
0 m²
entryway
0 m²
corridor
0 m²
entryway
0 m²
open-plan kitchen and dining room
0 m²
corridor
0 m²
open-plan kitchen and living room
0 m²
shower
0 m²
Ruczek Krisztina
Ruczek Krisztina

Credit Expert

From Our Office Listings - V. kerület - Hild tér

for sale commercial property

Index image
10

for sale apartment

Index image
9

for sale commercial property

Index image
3

for sale apartment

Index image
19

for sale apartment

Index image
15

for sale apartment

Index image
18

for sale apartment

Index image
19

for rent apartment

Index image
11

for sale commercial property

Index image
23

for sale apartment

Index image
36

for sale apartment

Index image
24