For sale new construction apartment, P4648-1-0A-04-009
Budapest VII. kerület, Középső Erzsébetváros

81,141,730 Ft

216,000 €

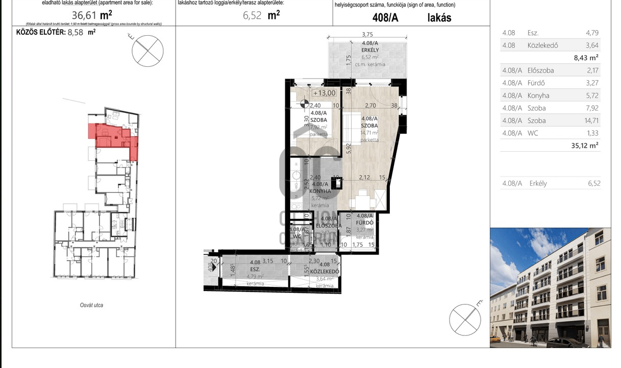
  • 35.1m²
  • 2 Rooms
  • 4th floor

Azonnal költözhető belvárosi, újépítésű lakások!

Az ingatlan a negyedik emeleten található. Kertre néző. Egy helyrajzi számon két különálló lakást alakítottak ki. Ügyvédi megosztással az ingatlanok külön is megvásárolhatók.
Ehhez a laskáshoz egy bruttó 33.91 m2-es garzon tartozik. Ár: 69.000.550 Ft

Registration Number

P4648-1-0A-04-009

Property Details

Sales
for sale
Legal Status
new
Character
apartment
Construction Method
brick
Net Size
35.1 m²
Gross Size
41.2 m²
Size of Terrace / Balcony
6.5 m²
Heating
heat pump
Ceiling Height
260 cm
Orientation
North-West
Staircase Type
enclosed staircase
Condition
Excellent
Condition of Facade
Excellent
Condition of Staircase
Excellent
Year of Construction
2026
Number of Bathrooms
1
Position
garden-facing
Garage
Separately purchasable
Water
Available
Electricity
Available
Sewer
Available
Elevator
available

Rooms

living room
1 m²
bedroom
1 m²
bathroom-toilet
1 m²
balcony
6.52 m²
Ruczek Krisztina
Ruczek Krisztina

Credit Expert

From Our Office Listings - V. kerület - Hild tér

for sale commercial property

Index image
10

for sale apartment

Index image
9

for sale commercial property

Index image
3

for sale apartment

Index image
19

for sale apartment

Index image
15

for sale apartment

Index image
18

for sale apartment

Index image
19

for rent apartment

Index image
11

for sale commercial property

Index image
23

for sale apartment

Index image
36

for sale apartment

Index image
24