For sale new construction apartment, P4556-1-0A-FZ-002
Debrecen, Hatvan-utcai kert

94,699,000 Ft

247,000 €

  • 60.6m²
  • 3 Rooms
  • ground floor

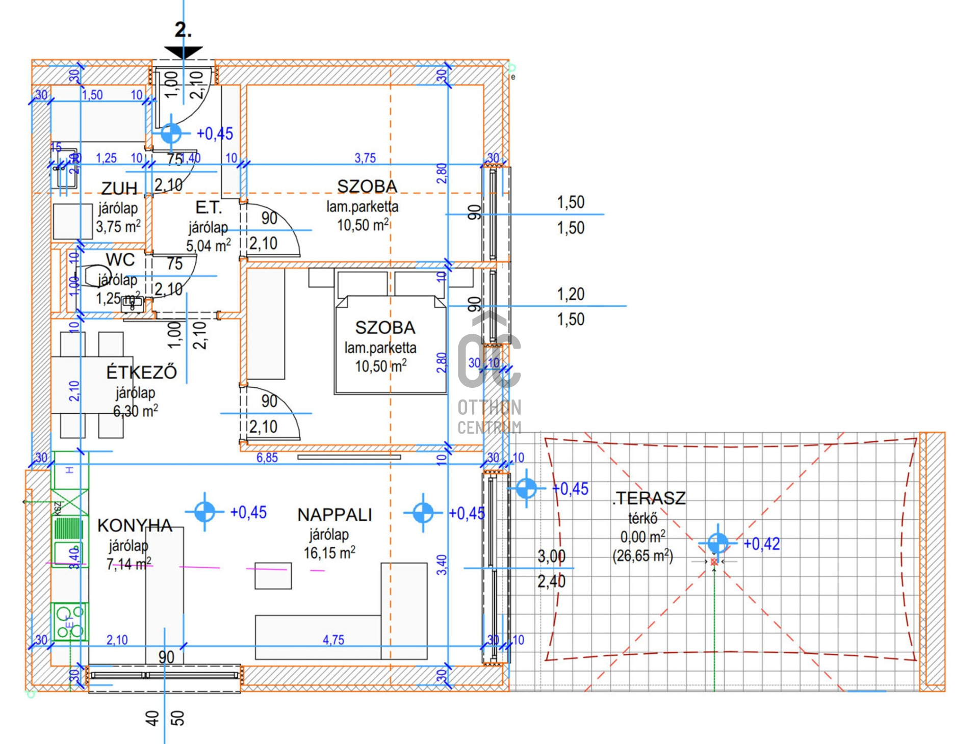
Debrecen, Hatvan utcai kertben újépítésű lakás kertkapcsolattal eladó.

Ez az ingatlan a földszinten helyezkedik el, hasznos alapterülete : 60,63 m2 +26,65 m2 terasz + 43 m2 kertkapcsolattal.
Konyha - étkező - nappali + 2 szobás, külön fürdővel, wc - vel.

Registration Number

P4556-1-0A-FZ-002

Property Details

Sales
for sale
Legal Status
new
Character
apartment
Construction Method
brick
Net Size
60.6 m²
Gross Size
87.2 m²
Size of Terrace / Balcony
26.6 m²
Heating
Gas circulator
Ceiling Height
270 cm
Orientation
South-West
Staircase Type
enclosed staircase
Condition
Excellent
Condition of Facade
Excellent
Condition of Staircase
Excellent
Year of Construction
2024
Number of Bathrooms
1
Position
courtyard-facing
Condominium Garden
yes
Garage
Separately purchasable
Garage Spaces
1
Water
Available
Gas
Available
Electricity
Available
Sewer
Available

Rooms

living room
16.15 m²
open-plan kitchen and dining room
13.44 m²
room
10.5 m²
room
10.5 m²
bathroom
3.75 m²
toilet
1.25 m²
terrace
26.65 m²
Plébán László
Plébán László

Credit Expert

From Our Office Listings - Debrecen - Hatvan utca

for sale family house

Index image
17

for sale family house

Index image
30

for sale panel apartment

Index image
data_sheet.details.realestate.section.main.otthonstart_flag.label
4

for sale semi-detached house

Index image
data_sheet.details.realestate.section.main.otthonstart_flag.label
14

for sale family house

Index image
data_sheet.details.realestate.section.main.otthonstart_flag.label
14