69,099,000 Ft
183,000 €
- 43.4m²
- 1 Rooms
- 1st floor
Luxuslakások a belváros szívében
Luxuslakások a belváros szívében
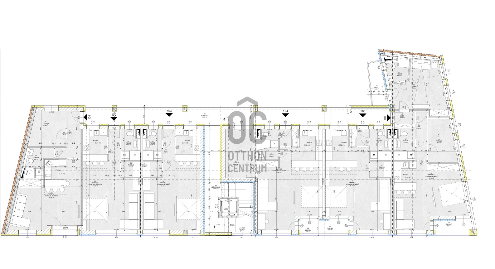
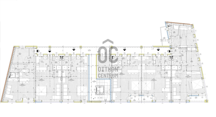
Debrecen, Belvárosának szívében a Nagytemplomhoz és a Kölcsey központhoz közel, magas műszaki tartalommal, új építésű 14 lakásos társasház épül.
Ez az 1. emeleti lakás 43,47 nm-es, nappali-étkező-konyhás, 2,22 nm-es loggiával.
Jellemzők:
--3 rétegű üvegezésű nyílászárók
--hőszivattyús fűtés, minden helyiségben padlófűtés
--hütő-fűtő klíma: hőszivattyús rendszerű magasfali fan coil
--rejtett redőnytokos redőnyök
--Ercadó típusú beltéri ajtók
--zuhanyzóban és wc-ben mennyezetig ragasztott burkolat
--függesztett wc, 90X200-as üveg zuhanyfal
Az ingatlan pár perc sétára található a Nagytemplomtól, a Piactól és a Bevásárló központoktól és az 1-es és 2-es villamos megállójától.
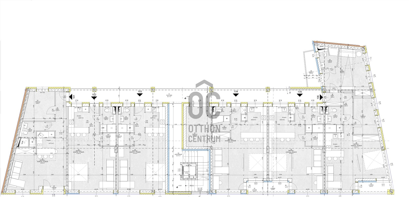
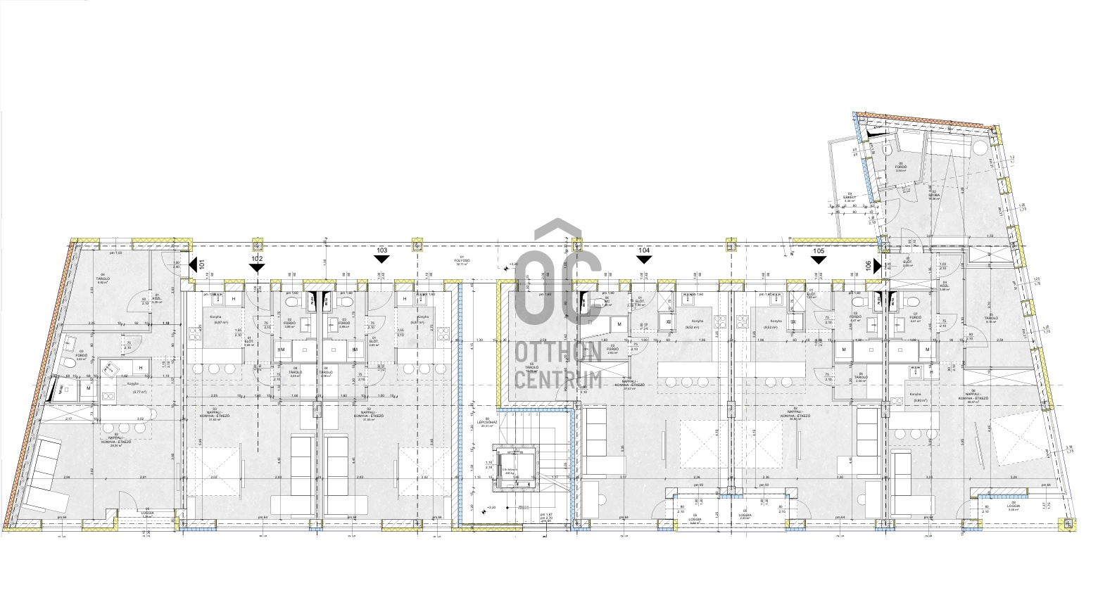
Debrecen, Belvárosának szívében a Nagytemplomhoz és a Kölcsey központhoz közel, magas műszaki tartalommal, új építésű 14 lakásos társasház épül.
Ez az 1. emeleti lakás 43,47 nm-es, nappali-étkező-konyhás, 2,22 nm-es loggiával.
Jellemzők:
--3 rétegű üvegezésű nyílászárók
--hőszivattyús fűtés, minden helyiségben padlófűtés
--hütő-fűtő klíma: hőszivattyús rendszerű magasfali fan coil
--rejtett redőnytokos redőnyök
--Ercadó típusú beltéri ajtók
--zuhanyzóban és wc-ben mennyezetig ragasztott burkolat
--függesztett wc, 90X200-as üveg zuhanyfal
Az ingatlan pár perc sétára található a Nagytemplomtól, a Piactól és a Bevásárló központoktól és az 1-es és 2-es villamos megállójától.
Registration Number
P4465-1-01-01-105
Property Details
Sales
for sale
Legal Status
new
Character
apartment
Construction Method
brick
Net Size
43.4 m²
Gross Size
45.6 m²
Size of Terrace / Balcony
2.2 m²
Heating
heat pump
Ceiling Height
265 cm
Orientation
East
Staircase Type
enclosed staircase
Condition
Excellent
Condition of Facade
Excellent
Condition of Staircase
Excellent
Neighborhood
good transport, central
Year of Construction
2027
Number of Bathrooms
1
Position
street-facing
Garage
Separately purchasable
Water
Available
Electricity
Available
Sewer
Available
Elevator
available
Rooms
open-plan living and dining room
25.3 m²
kitchen
9.52 m²
entryway
1.9 m²
bathroom
4.29 m²
utility room
2.34 m²
Czellér András
Credit Expert