For sale new construction apartment, P4465-1-01-01-102
Debrecen, Belváros

62,387,000 Ft

165,000 €

  • 40.2m²
  • 1 Rooms
  • 1st floor

Luxuslakások a belváros szívében

Debrecen, Belvárosának szívében a Nagytemplomhoz és a Kölcsey központhoz közel, magas műszaki tartalommal, új építésű 14 lakásos társasház épül.
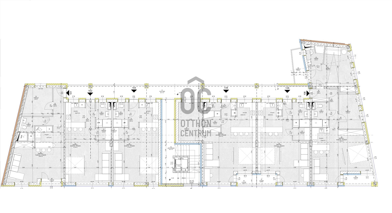
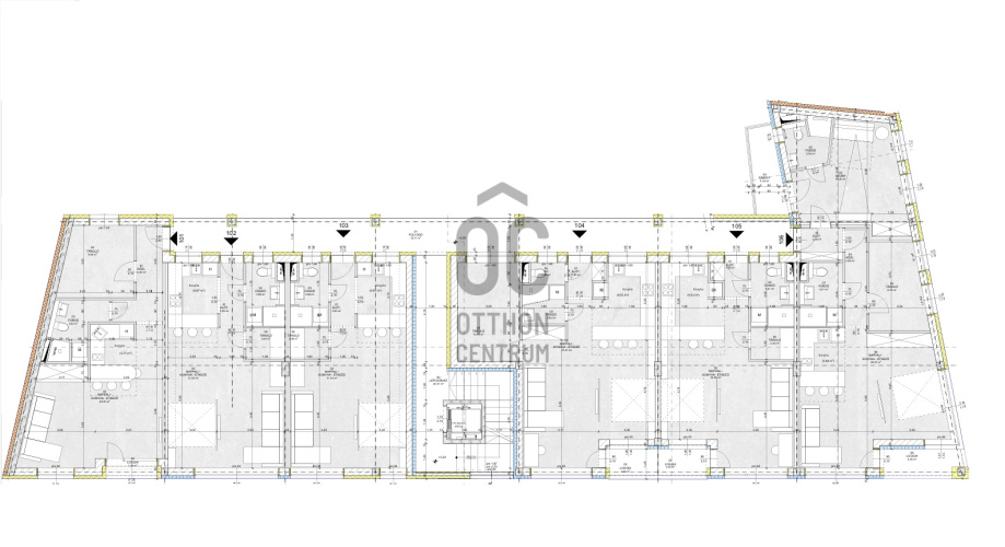
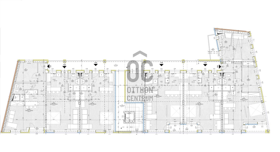
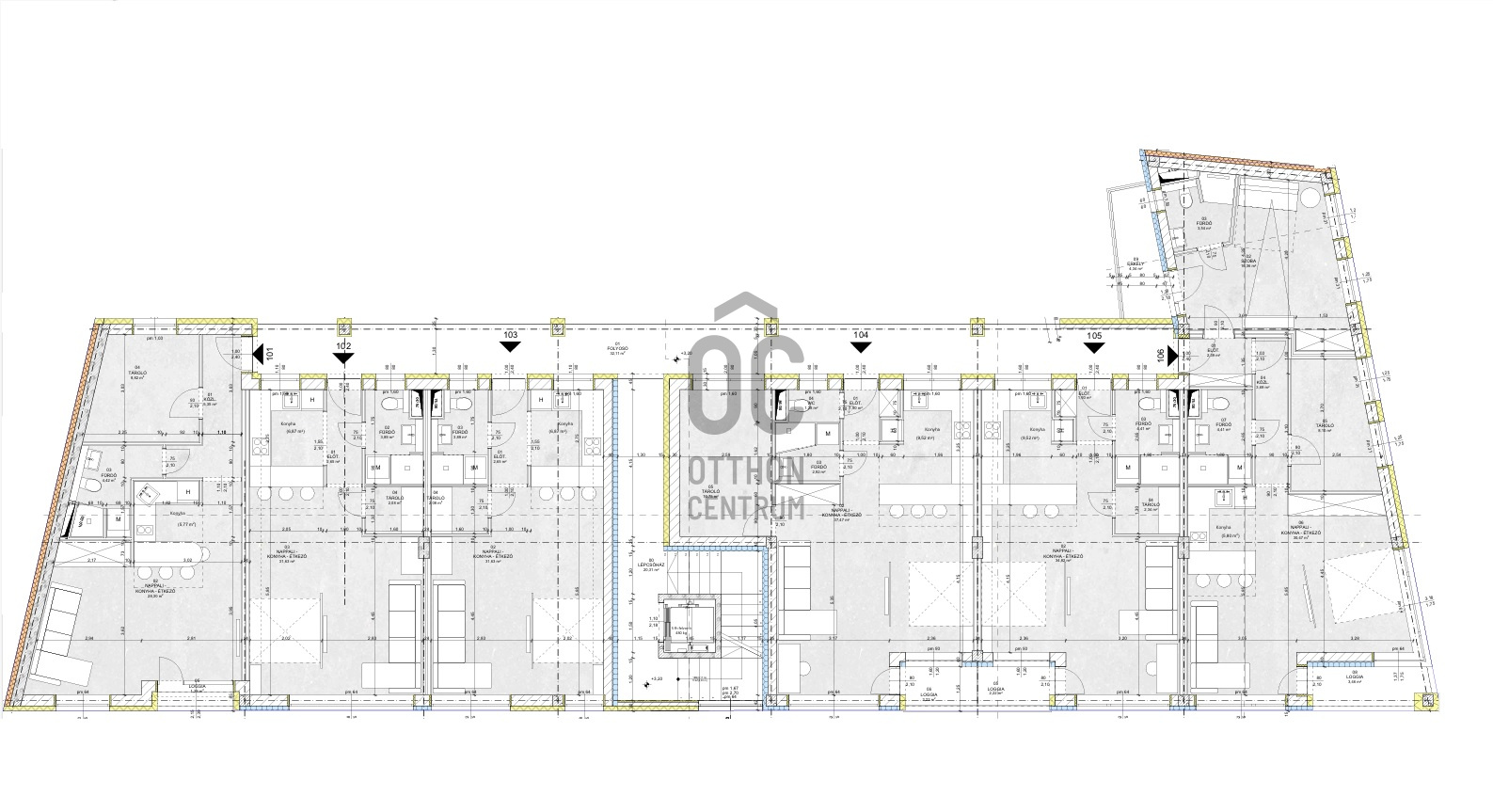
Ez az 1. emeleti lakás 40,25 nm-es, nappali-étkező- amerikai konyhás.
Jellemzők:
--3 rétegű üvegezésű nyílászárók
--hőszivattyús fűtés, minden helyiségben padlófűtés
--hütő-fűtő klíma: hőszivattyús rendszerű magasfali fan coil
--rejtett redőnytokos redőnyök
--Ercadó típusú beltéri ajtók
--zuhanyzóban és wc-ben mennyezetig ragasztott burkolat
--függesztett wc, 90X200-as üveg zuhanyfal

Az ingatlan pár perc sétára található a Nagytemplomtól, a Piactól és a Bevásárló központoktól és az 1-es és 2-es villamos megállójától.

Registration Number

P4465-1-01-01-102

Property Details

Sales
for sale
Legal Status
new
Character
apartment
Construction Method
brick
Net Size
40.2 m²
Gross Size
40.2 m²
Heating
heat pump
Ceiling Height
265 cm
Orientation
East
Staircase Type
enclosed staircase
Condition
Excellent
Condition of Facade
Excellent
Condition of Staircase
Excellent
Neighborhood
good transport, central
Year of Construction
2027
Number of Bathrooms
1
Position
street-facing
Garage
Separately purchasable
Water
Available
Electricity
Available
Sewer
Available
Elevator
available

Rooms

open-plan living and dining room
24.76 m²
kitchen
6.87 m²
bathroom
3.89 m²
storage
2.08 m²
entryway
2.65 m²
Czellér András
Czellér András

Credit Expert

From Our Office Listings - Debrecen - Csapó utca

for sale panel apartment

Index image
data_sheet.details.realestate.section.main.otthonstart_flag.label
12

for sale family house

Index image
data_sheet.details.realestate.section.main.otthonstart_flag.label
12

for sale semi-detached house

Index image
data_sheet.details.realestate.section.main.otthonstart_flag.label
27

for sale row house

Index image
data_sheet.details.realestate.section.main.otthonstart_flag.label
17

for rent apartment

Index image
11