145,245,000 Ft
381,000 €
- 60.7m²
- 2 Rooms
- attic
Újépítésű lakások Budapest szívében
Exkluzív környezetben, műszakilag és esztétikailag a jelen elvárásainak megfelelően megtervezett és kivitelezett 76,445 m2 alapterületű, nappali-konyha-szoba beosztású lakás, 29,65 m2 terasszal eladó.
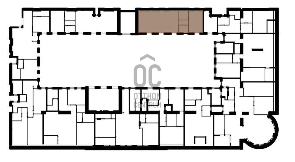
A lakás Petschacher Gusztáv tervei alapján készült épület 5.emeletén helyezkedik el, kétszintes, ablakai a csendes belső udvarra néznek.
Kedvező beosztású, az alsó szinten a konyha, nappali és hálószoba, a felső szinten a tetőterasz található. Az előtértől jobbra a 12 m2-es hálószoba, balra a 28 m2-es tágas, világos nappali van, egy légtérben konyha-étkezővel. A fürdő a hálószobából közelíthető meg, a toalett közvetlenül az előtérből nyílik.
A lakás hűtéséről és fűtéséről oldalfali fan-coil rendszer gondoskodik. Riasztórendszer kiépítésre kerül. A hidegburkolatok (konyha, fürdőszoba, közlekedők) alatt padlófűtés kerül elhelyezésre. A lakások hűtését és fűtését H tarifás hőszivattyús rendszer biztosítja, így a lakások energiaellátásának költsége nagyon kedvező.
A lakásokba a műszaki tartalomban szereplő konyhabútorok és gépek kerülnek beépítésre.
A burkolatok és a konyhabútor színe tetszés szerint választható, a kijelölt opciók közül. Megfelelő időben történt megrendelői módosításokra lehetőség van.
A lakás Petschacher Gusztáv tervei alapján készült épület 5.emeletén helyezkedik el, kétszintes, ablakai a csendes belső udvarra néznek.
Kedvező beosztású, az alsó szinten a konyha, nappali és hálószoba, a felső szinten a tetőterasz található. Az előtértől jobbra a 12 m2-es hálószoba, balra a 28 m2-es tágas, világos nappali van, egy légtérben konyha-étkezővel. A fürdő a hálószobából közelíthető meg, a toalett közvetlenül az előtérből nyílik.
A lakás hűtéséről és fűtéséről oldalfali fan-coil rendszer gondoskodik. Riasztórendszer kiépítésre kerül. A hidegburkolatok (konyha, fürdőszoba, közlekedők) alatt padlófűtés kerül elhelyezésre. A lakások hűtését és fűtését H tarifás hőszivattyús rendszer biztosítja, így a lakások energiaellátásának költsége nagyon kedvező.
A lakásokba a műszaki tartalomban szereplő konyhabútorok és gépek kerülnek beépítésre.
A burkolatok és a konyhabútor színe tetszés szerint választható, a kijelölt opciók közül. Megfelelő időben történt megrendelői módosításokra lehetőség van.
Registration Number
P4303-1-01-TE-035
Property Details
Sales
for sale
Legal Status
new
Character
apartment
Construction Method
ytong
Net Size
60.7 m²
Gross Size
76.4 m²
Size of Terrace / Balcony
29.6 m²
Heating
heat pump
Ceiling Height
280 cm
Orientation
North
View
city view
Staircase Type
circular corridor
Condition
Excellent
Condition of Facade
Good
Condition of Staircase
Good
Neighborhood
good transport, central
Year of Construction
2023
Number of Bathrooms
1
Position
street-facing
Water
Available
Gas
Available
Electricity
Available
Sewer
Available
Elevator
available
Rooms
entryway
2.79 m²
room
12.13 m²
bathroom
3.27 m²
toilet
1.69 m²
open-plan living and dining room
27.67 m²
kitchen
5.38 m²
staircase
2.88 m²
entryway
4.17 m²
values.realestate.szobatipus.49
24.65 m²
Ruczek Krisztina
Credit Expert