data_sheet.details.realestate.section.main.otthonstart_flag.label
For sale new construction family house,
P3997-1-04-NA-000
Kőszeg,
106,600,000 Ft
272,000 €
- 125.3m²
- 4 Rooms


Kőszegen új,tégla építésű családi ház eladók
Kőszegen új, tégla építésű családi házak eladók az Alsó körúton. Az ingatlanok minőségi alapanyagok felhasználásával, a jelenlegi előírások betartásával épülnek,
BB energetikai besorolásnak megfelelnek. A lakóingatlan tégla építésű, szigetelt, lapostetős kivitellel, műanyag nyílászárókkal készült.
1 ikerház + 1 önálló családi ház épül egy telekre, önálló kerthasználattal.
Hasznos alapterületek: 571 nm-es saját használatú kertkapcsolat
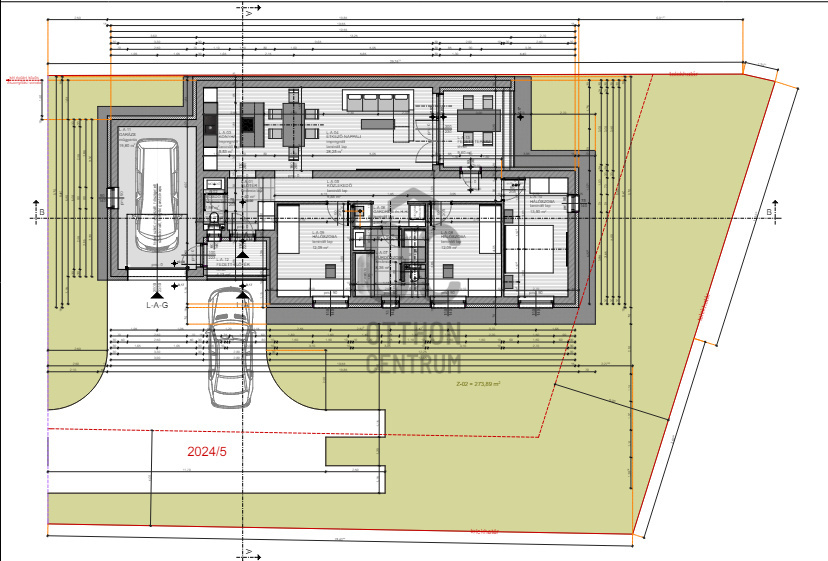
A nettó 98,72 nm -es ingatlan elosztása - földszintes: 3 hálószoba + nappali-konyha-étkező + fürdő-wc, háztartási helyiség, wc-mosdó.
A hálószobák átlagosan 10 nm-esek, a nappali - étkező 28 nm-es a meglévő tervek szerint.
Részben fedett terasz , előtér, 19,8 nm-es garázs, telek a hirdetési árban szerepel !
A szobák laminált lappal burkoltak, a többi helyiség kerámia lappal, illetve impregnált laminált padlóburkolattal szerepel a tervezetben.
Bővebb információért kérem keressen a megadott elérhetőségeken!
Várható átadás: 2026 év vége!
BB energetikai besorolásnak megfelelnek. A lakóingatlan tégla építésű, szigetelt, lapostetős kivitellel, műanyag nyílászárókkal készült.
1 ikerház + 1 önálló családi ház épül egy telekre, önálló kerthasználattal.
Hasznos alapterületek: 571 nm-es saját használatú kertkapcsolat
A nettó 98,72 nm -es ingatlan elosztása - földszintes: 3 hálószoba + nappali-konyha-étkező + fürdő-wc, háztartási helyiség, wc-mosdó.
A hálószobák átlagosan 10 nm-esek, a nappali - étkező 28 nm-es a meglévő tervek szerint.
Részben fedett terasz , előtér, 19,8 nm-es garázs, telek a hirdetési árban szerepel !
A szobák laminált lappal burkoltak, a többi helyiség kerámia lappal, illetve impregnált laminált padlóburkolattal szerepel a tervezetben.
Bővebb információért kérem keressen a megadott elérhetőségeken!
Várható átadás: 2026 év vége!
Registration Number
P3997-1-04-NA-000
Property Details
Sales
for sale
Legal Status
new
Character
house
Construction Method
brick
Net Size
125.3 m²
Gross Size
133 m²
Plot Size
571 m²
Size of Terrace / Balcony
9.6 m²
Heating
Gas circulator
Ceiling Height
275 cm
Number of Levels Within the Property
1
Orientation
South-West
Condition
Excellent
Condition of Facade
Excellent
Neighborhood
quiet, good transport
Year of Construction
2025
Number of Bathrooms
1
Garage
Included in the price
Garage Spaces
1
Water
Available
Gas
Available
Electricity
Available
Sewer
Available
Rooms
bedroom
12.09 m²
bedroom
12.09 m²
bedroom
13.5 m²
open-plan living and dining room
28.25 m²
kitchen
5.53 m²
utility room
2.97 m²
toilet-washbasin
1.98 m²
bathroom-toilet
7.36 m²
entryway
4.4 m²
corridor
9.55 m²

Horváth Szabina
Credit Expert