data_sheet.details.realestate.section.main.otthonstart_flag.label
For sale semi-detached house,
OHH168996
Szeged, Rókus
99,900,000 Ft
255,000 €
- 145m²
- 4 Rooms






















ELADÓ TÉGLA ÉPÍTÉSŰ IKERHÁZ SZEGEDEN, A PULZ UTCÁBAN!
Szeged egyik frekventált, de mégis nyugodt részén, a Pulz utcában eladó egy IKERHÁZ, amely KIVÁLÓ LEHETŐSÉGET NYÚJT CSALÁDOKNAK ÉS VÁLLALKOZÁSOKNAK EGYARÁNT. Az ingatlan sokoldalúsága miatt akár lakóingatlan, akár telephely, székhely céljára is ideális választás lehet.
FŐBB JELLEMZŐK:
*
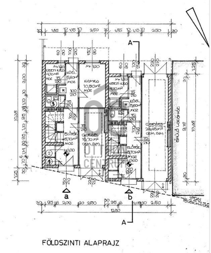
145 M² lakóterület
*
4 SZOBA, de további helyiségek könnyedén átalakíthatók
*
BEÉPÍTHETŐ TETŐTÉR, amely további bővítési lehetőséget biztosít
*
GARÁZS és több egyéb helyiség
*
838 M²-ES TELEK, amely 40%-OS BEÉPÍTHETŐSÉGÉNEK köszönhetően további épületráépítést tesz lehetővé
*
A telken tégla építésű MELLÉKÉPÜLET is található
ÁLLAPOT ÉS MŰSZAKI JELLEMZŐK:
*
Az épület BELSEJE FELÚJÍTANDÓ, így saját igények szerint alakítható
*
A KÜLSŐ NYÍLÁSZÁRÓK MŰANYAGRA LETTEK CSERÉLVE néhány éve
*
A KÜLSŐ HOMLOKZAT JÓ ÁLLAPOTÚ, így nagyobb szerkezeti felújítás nem szükséges
KIVÁLÓ ELHELYEZKEDÉS, SOKOLDALÚ FELHASZNÁLÁSI LEHETŐSÉG!
Az ingatlan mérete és adottságai miatt NEMCSAK CSALÁDOK, HANEM VÁLLALKOZÁSOK SZÁMÁRA IS TÖKÉLETES VÁLASZTÁS, legyen szó irodáról, rendelőről vagy telephelyről.
Ha egy kiváló lehetőségeket rejtő ingatlant keres, amelyet saját igényeire szabhat, NE HABOZZON, HÍVJON MOST!
Registration Number
OHH168996
Property Details
Sales
for sale
Legal Status
used
Character
house
Construction Method
brick
Net Size
145 m²
Plot Size
838 m²
Heating
Gas circulator
Condition
To be renovated
Year of Construction
1980