44,900,000 Ft
119,000 €
- 75m²
- 2 Rooms
Százéves parasztház Kővágóörsön
Kővágóörsön, belterületi, központi elhelyezkedéssel találunk rá erre a több, mint százéves kis parasztházra.
Udvara kőfallal szeparált kis birodalom, egy olyan utcácskában, ahol nincsen átmenő forgalom! Aszfaltos útról lekanyarodva 20 métert kell murvás úton megtenni.
A ház, korából adódóan felújítandó, de jelen pillanatban is a legszebb nyaralások helyszíne egy családnak és barátaiknak.
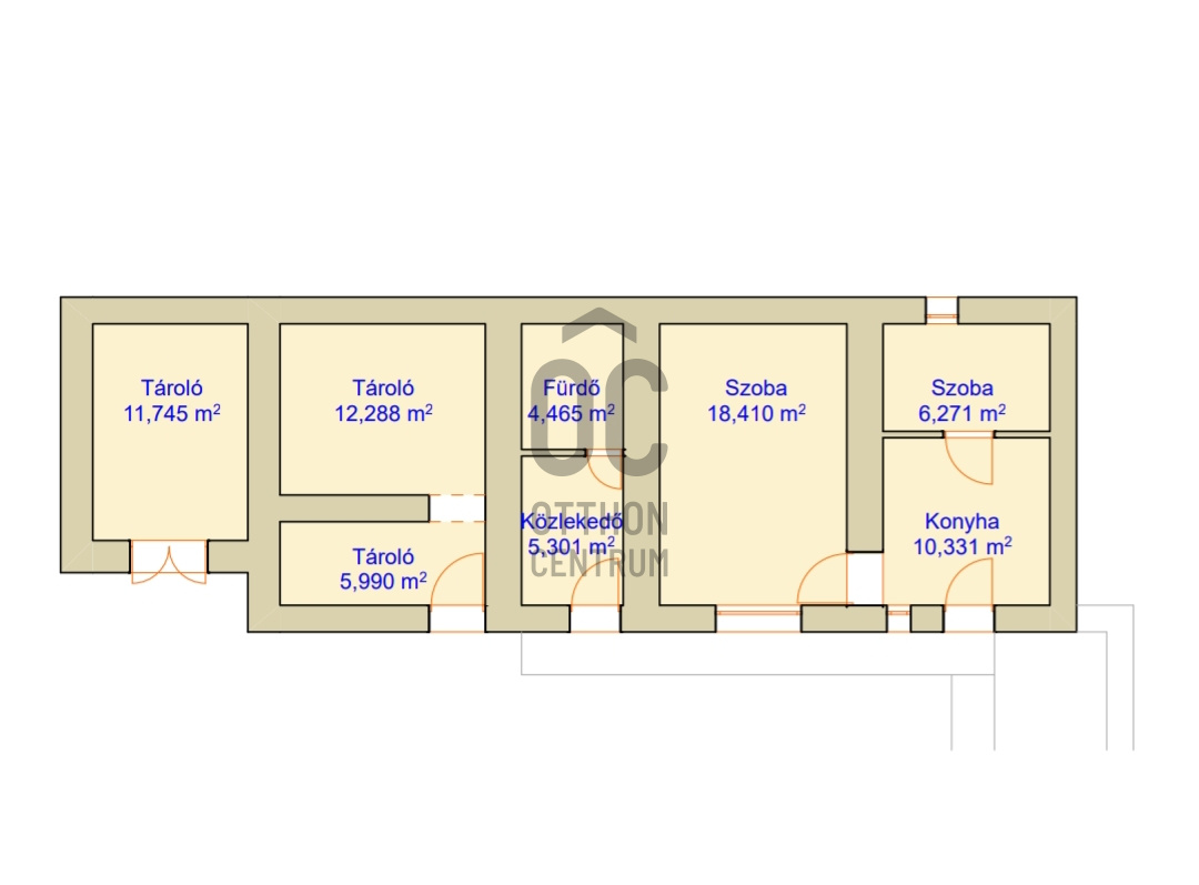
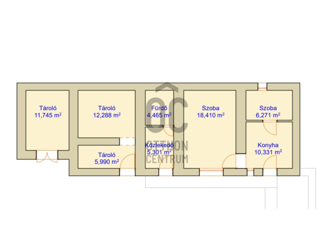
A házhoz tartozó telek 427 nm, a lakóház pedig a tároló melléképületekkel együtt nettó 75 nm. Ez nem változik, ennél nagyobb nem lesz és nem lehet, bár ha kreatívan állunk hozzá, a mostani melléképületekkel könnyedén bővíthetjük ez életteret, hiszen szervesen kapcsolódnak a főépülethez. A telken egy korábban jelen lévő gazdasági épület is jelezve van, amely visszaépíthető.
Kő falazatú, nádtetős épület, amely nem védett, így sokminden alakítható rajta a saját igényekhez mérten.
Padlója jelenleg beton, amely linóleummal fedett, a melegvizet bojler szolgáltatja, fűtéséről régebben a nagyapa által rakott búbos kemence gondoskodott.
Egy nagy lakószoba és egy kisebb hálószoba mellett konyhát, fürdőszobát és 3 tároló helyiséget találunk benne.
Kibővített áram (32 A), vezetékes víz és a telken belül csatorna van.
Ami fontos: "Van vele munka", "Kell rá költeni" ... de ugyanakkor: Autentikus, lelke van, tökéletesen elég egy családnak, a Balaton-felvidék szívében van!
Udvara kőfallal szeparált kis birodalom, egy olyan utcácskában, ahol nincsen átmenő forgalom! Aszfaltos útról lekanyarodva 20 métert kell murvás úton megtenni.
A ház, korából adódóan felújítandó, de jelen pillanatban is a legszebb nyaralások helyszíne egy családnak és barátaiknak.
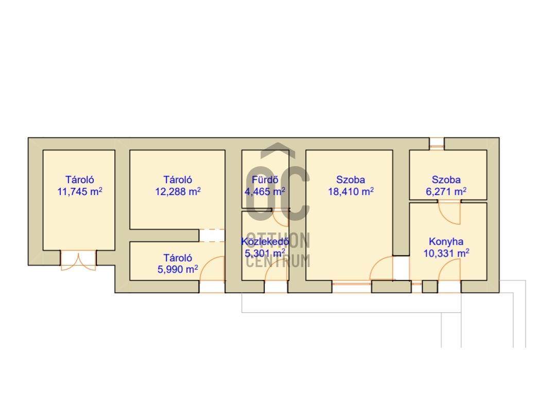
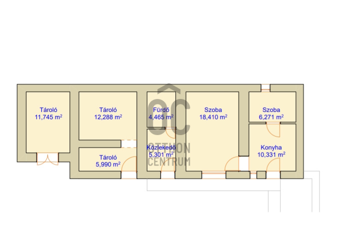
A házhoz tartozó telek 427 nm, a lakóház pedig a tároló melléképületekkel együtt nettó 75 nm. Ez nem változik, ennél nagyobb nem lesz és nem lehet, bár ha kreatívan állunk hozzá, a mostani melléképületekkel könnyedén bővíthetjük ez életteret, hiszen szervesen kapcsolódnak a főépülethez. A telken egy korábban jelen lévő gazdasági épület is jelezve van, amely visszaépíthető.
Kő falazatú, nádtetős épület, amely nem védett, így sokminden alakítható rajta a saját igényekhez mérten.
Padlója jelenleg beton, amely linóleummal fedett, a melegvizet bojler szolgáltatja, fűtéséről régebben a nagyapa által rakott búbos kemence gondoskodott.
Egy nagy lakószoba és egy kisebb hálószoba mellett konyhát, fürdőszobát és 3 tároló helyiséget találunk benne.
Kibővített áram (32 A), vezetékes víz és a telken belül csatorna van.
Ami fontos: "Van vele munka", "Kell rá költeni" ... de ugyanakkor: Autentikus, lelke van, tökéletesen elég egy családnak, a Balaton-felvidék szívében van!
Registration Number
NY012830
Property Details
Sales
for sale
Legal Status
used
Character
vacation home
Type of Vacation Home
house
Construction Method
stone
Net Size
75 m²
Gross Size
90 m²
Plot Size
427 m²
Heating
stove (coal)
Ceiling Height
230 cm
Orientation
West
View
Green view
Condition
To be renovated
Condition of Facade
Average
Neighborhood
quiet, green
Year of Construction
1900
Number of Bathrooms
1
Water
Available
Gas
On the street
Electricity
Available
Sewer
Available
Rooms
room
18.5 m²
room
6.2 m²
open-plan kitchen and dining room
10 m²
Edve János
Credit Expert