96,900,000 Ft
256,000 €
- 53.8m²
- 2 Rooms
- 1st floor
Társasházi lakás, ahol közösségi terek és a privát zónák úgy lettek kialakítva, hogy mindenki számára tökéletes legyen.
Tegye mindennapjait különlegessé...
Eladásra kínáljuk ebben a lenyűgöző, 4 lakásos, újjá épített társasházban átadott lakásokat, amely nemcsak modern, de fenntartható technológiával és élményszerű közösségi terekkel teszi különlegessé a mindennapokat.
Ha valaha is arról álmodott, hogy a nyaralás érzését minden nap átélheti, most valóra válhat ez az álom.
Képzelje el, hogy...
… egy hosszú nap végén kilép a saját, tágas teraszára, ahol a naplemente festi meg az eget. ....
Egy csésze kávéval vagy egy pohár borral a kezében pihen, miközben hallja a madarak csiripelését. A háttérben barátai vagy családtagjai élvezik a kültéri medence frissítő vizét, vagy épp a szaunában lazítanak.
Ez az ingatlan olyan, mintha egy saját privát oázis lenne, ahol minden nap egy új kaland és közös élmény várja.
És ami a legjobb? Mindez a legmodernebb technológia és fenntartható megoldások ölelésében, hogy ne csak Ön, hanem a környezet is jól járjon.
Miért fogja imádni ezt az otthont?
Energiatakarékos technológia – a jövő luxusa:
Ez az ingatlan modern, energiatakarékos megoldásokkal van felszerelve.
A napelemek nemcsak környezettudatos életmódot biztosítanak, hanem alacsony fenntartási költségeket is garantálnak. Így nemcsak Ön és családja élvezheti a kényelmet, hanem a környezetért is sokat tesznek.
Padlófűtés és klímaberendezés gondoskodik arról, hogy mindig az Ön igényeinek megfelelő hőmérséklet legyen, akár forró nyári napokon, akár hűvösebb őszi estéken.
Modern, kulcsrakész lakások, teljes berendezéssel:
Az ingatlanban található négy lakás teljesen berendezett és gépesített, így azonnal költözhető.
Minden lakás ízléses bútorokkal, prémium minőségű berendezésekkel van ellátva, hogy Önnek csak élveznie kelljen az új otthon kényelmét.
A lakások méretei és kialakítása rugalmas, hogy minden igényt kielégítsen:
69,05 m²: Nagyobb családoknak ideális, tágas közösségi terekkel és privát zónákkal a nyugodt pihenéshez.
57,48 m²: Praktikus elrendezés kisebb családok vagy párok számára, akik egy stílusos, mégis kényelmes otthonra vágynak.
65,07 m²: Prémium kivitelezés, nagy terasz, ideális hely a közös pillanatok és összejövetelek számára.
53,87 m²: Kompakt luxus, ahol a privát szféra és a közösségi élmények egyaránt megférnek.
Minden lakáshoz a társasházi kertből 250m tartozik.
Különleges wellness élmények, minden nap:
Az ingatlanhoz tartozó közös kültéri medence és szaunavilág a tökéletes helyszínt biztosítja a relaxáláshoz és a feltöltődéshez.
Akár egy forró nyári nap után csobban a hűs vízben, akár egy fárasztó nap végén lazít a szaunában.
Itt a pihenés és a szórakozás új dimenzióba lép.
Közös kert és tágas felszíni autóbeállók:
Az ingatlanhoz tartozik egy gyönyörű, rendezett közös kert, lehetőség van a családi étkezésekre, közös baráti esték szervezésére vagy egyszerűen csak a csendes pihenésre.
Az ingatlanhoz saját felszíni autóbeállók tartoznak, így Ön és vendégei mindig könnyedén és kényelmesen parkolhatnak.
Nincs többé parkolóhely keresés, és nem kell aggódnia a biztonság miatt sem – itt minden adott, hogy az autója mindig védett helyen legyen.
Biztonságos és kényelmes környezet:
Az ingatlan zárt lépcsőházzal és jól átgondolt biztonsági rendszerrel rendelkezik, így minden lakó nyugodtan élvezheti a mindennapokat.
A közös élmények otthona:
Ez az ingatlan nemcsak egy hely, ahol lakhat – ez a közös élmények és emlékek helyszíne.
Akár a családjával, akár barátaival tölti itt az időt, minden nap új lehetőséget kínál a közös programokra.
A közösségi terek és a privát zónák úgy lettek kialakítva, hogy mindenki számára tökéletes legyen.
Az élet túl rövid ahhoz, hogy lemondjon az olyan élményekről, amelyek minden napot különlegessé tesznek.
Ne várjon tovább – tegye meg az első lépést egy új, izgalmas élet felé....
Tegye mindennapjait különlegessé...
Eladásra kínáljuk ebben a lenyűgöző, 4 lakásos, újjá épített társasházban átadott lakásokat, amely nemcsak modern, de fenntartható technológiával és élményszerű közösségi terekkel teszi különlegessé a mindennapokat.
Ha valaha is arról álmodott, hogy a nyaralás érzését minden nap átélheti, most valóra válhat ez az álom.
Képzelje el, hogy...
… egy hosszú nap végén kilép a saját, tágas teraszára, ahol a naplemente festi meg az eget. ....
Egy csésze kávéval vagy egy pohár borral a kezében pihen, miközben hallja a madarak csiripelését. A háttérben barátai vagy családtagjai élvezik a kültéri medence frissítő vizét, vagy épp a szaunában lazítanak.
Ez az ingatlan olyan, mintha egy saját privát oázis lenne, ahol minden nap egy új kaland és közös élmény várja.
És ami a legjobb? Mindez a legmodernebb technológia és fenntartható megoldások ölelésében, hogy ne csak Ön, hanem a környezet is jól járjon.
Miért fogja imádni ezt az otthont?
Energiatakarékos technológia – a jövő luxusa:
Ez az ingatlan modern, energiatakarékos megoldásokkal van felszerelve.
A napelemek nemcsak környezettudatos életmódot biztosítanak, hanem alacsony fenntartási költségeket is garantálnak. Így nemcsak Ön és családja élvezheti a kényelmet, hanem a környezetért is sokat tesznek.
Padlófűtés és klímaberendezés gondoskodik arról, hogy mindig az Ön igényeinek megfelelő hőmérséklet legyen, akár forró nyári napokon, akár hűvösebb őszi estéken.
Modern, kulcsrakész lakások, teljes berendezéssel:
Az ingatlanban található négy lakás teljesen berendezett és gépesített, így azonnal költözhető.
Minden lakás ízléses bútorokkal, prémium minőségű berendezésekkel van ellátva, hogy Önnek csak élveznie kelljen az új otthon kényelmét.
A lakások méretei és kialakítása rugalmas, hogy minden igényt kielégítsen:
69,05 m²: Nagyobb családoknak ideális, tágas közösségi terekkel és privát zónákkal a nyugodt pihenéshez.
57,48 m²: Praktikus elrendezés kisebb családok vagy párok számára, akik egy stílusos, mégis kényelmes otthonra vágynak.
65,07 m²: Prémium kivitelezés, nagy terasz, ideális hely a közös pillanatok és összejövetelek számára.
53,87 m²: Kompakt luxus, ahol a privát szféra és a közösségi élmények egyaránt megférnek.
Minden lakáshoz a társasházi kertből 250m tartozik.
Különleges wellness élmények, minden nap:
Az ingatlanhoz tartozó közös kültéri medence és szaunavilág a tökéletes helyszínt biztosítja a relaxáláshoz és a feltöltődéshez.
Akár egy forró nyári nap után csobban a hűs vízben, akár egy fárasztó nap végén lazít a szaunában.
Itt a pihenés és a szórakozás új dimenzióba lép.
Közös kert és tágas felszíni autóbeállók:
Az ingatlanhoz tartozik egy gyönyörű, rendezett közös kert, lehetőség van a családi étkezésekre, közös baráti esték szervezésére vagy egyszerűen csak a csendes pihenésre.
Az ingatlanhoz saját felszíni autóbeállók tartoznak, így Ön és vendégei mindig könnyedén és kényelmesen parkolhatnak.
Nincs többé parkolóhely keresés, és nem kell aggódnia a biztonság miatt sem – itt minden adott, hogy az autója mindig védett helyen legyen.
Biztonságos és kényelmes környezet:
Az ingatlan zárt lépcsőházzal és jól átgondolt biztonsági rendszerrel rendelkezik, így minden lakó nyugodtan élvezheti a mindennapokat.
A közös élmények otthona:
Ez az ingatlan nemcsak egy hely, ahol lakhat – ez a közös élmények és emlékek helyszíne.
Akár a családjával, akár barátaival tölti itt az időt, minden nap új lehetőséget kínál a közös programokra.
A közösségi terek és a privát zónák úgy lettek kialakítva, hogy mindenki számára tökéletes legyen.
Az élet túl rövid ahhoz, hogy lemondjon az olyan élményekről, amelyek minden napot különlegessé tesznek.
Ne várjon tovább – tegye meg az első lépést egy új, izgalmas élet felé....
Registration Number
NY012070
Property Details
Sales
for sale
Legal Status
new
Character
vacation home
Type of Vacation Home
apartment
Construction Method
brick
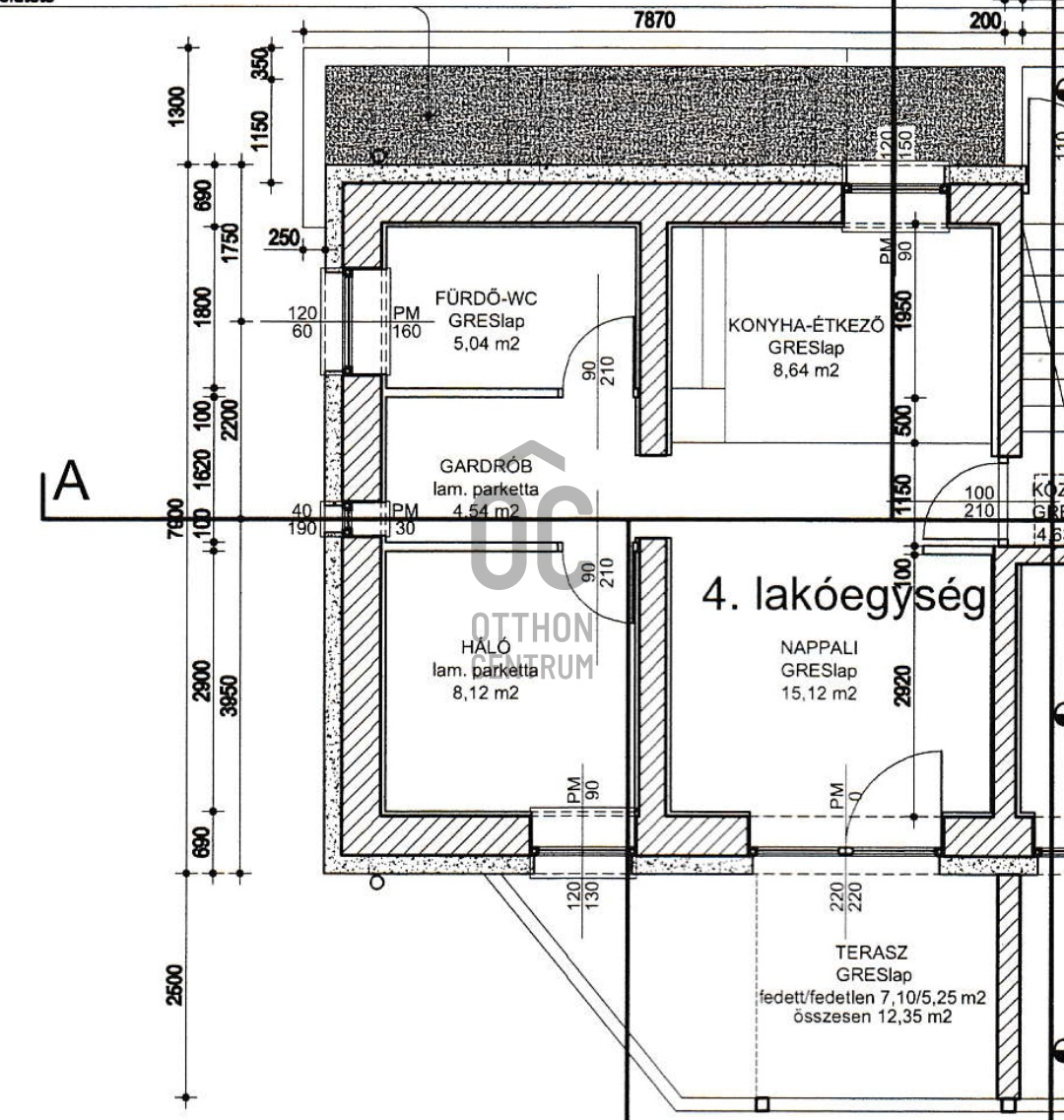
Net Size
53.8 m²
Gross Size
53.8 m²
Size of Terrace / Balcony
12.3 m²
Ceiling Height
268 cm
Orientation
South-West
View
city view, Green view
Staircase Type
enclosed staircase
Condition
Excellent
Condition of Facade
Excellent
Condition of Staircase
Excellent
Neighborhood
good transport, green, central
Year of Construction
2024
Number of Bathrooms
1
Position
garden-facing
Condominium Garden
yes
Water
Available
Electricity
Available
Sewer
Available
Connected to Garden
yes
Storage
Shared
Distance to Waterfront
more than 500 meters
Rooms
terrace
12.32 m²
living room
15.12 m²
bedroom
8.12 m²
wardrobe
4.54 m²
bathroom-toilet
5.04 m²
open-plan kitchen and living room
8.64 m²
Dienes László
Credit Expert