249,900,000 Ft
699,000 €
- 250m²
- 5 Rooms
- ground floor
Premium Home with Garden and Terraces in the Green Area of Pesthidegkút Old Village
In one of the most beautiful and peaceful parts of Budapest’s District II/A, in the charming old village area of Pesthidegkút, we offer for sale this approx. 250 m², three-level semi-detached house with direct garden access, which underwent a complete, premium-quality renovation a few years ago. The property is in move-in ready condition and awaits its new owner.
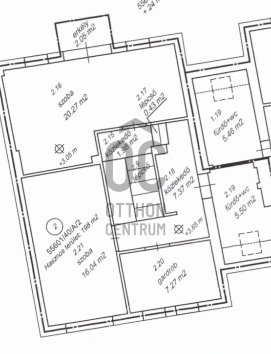
The house offers bright, spacious interiors and a sun-filled layout. On the ground floor you will find the sunny living room, a cozy winter garden overlooking the garden, and a custom-designed kitchen with a kitchen island and premium-quality cabinetry. This level also includes a guest restroom and a room that can function as a guest bedroom or home office.
The upper levels feature several garden-facing bedrooms, multiple bathrooms, walk-in wardrobes, and balconies, providing comfortable living space for every member of the family.
On the lower level there is a garage, laundry room, storage space, and an additional room currently used as a fitness room, making the house highly practical for everyday living.
The approximately 380 m² well-maintained garden offers a true private retreat. It is equipped with an irrigation system, pergola, garden furniture, an outdoor cooking counter, and a traditional cauldron cooking area, making it perfect for family gatherings and friendly get-togethers.
The house features modern mechanical systems, including a condensing boiler, radiator and underfloor heating, as well as inverter heating-cooling air conditioning, ensuring comfort throughout the year.
The neighborhood is quiet and green, yet offers excellent infrastructure. Nearby you will find the Széphalom Shopping Center, international schools, the Gyarmati Dezső Swimming Complex, as well as numerous sports facilities and hiking opportunities. Public transportation is also easily accessible, providing convenient connections to other parts of the city.
This property is an ideal choice for those who wish to combine the proximity of the city with the tranquility of nature, and who are looking for a spacious, tastefully renovated family home.
I look forward to your call! If I am unable to answer, I promise to return your call as soon as possible.
The house offers bright, spacious interiors and a sun-filled layout. On the ground floor you will find the sunny living room, a cozy winter garden overlooking the garden, and a custom-designed kitchen with a kitchen island and premium-quality cabinetry. This level also includes a guest restroom and a room that can function as a guest bedroom or home office.
The upper levels feature several garden-facing bedrooms, multiple bathrooms, walk-in wardrobes, and balconies, providing comfortable living space for every member of the family.
On the lower level there is a garage, laundry room, storage space, and an additional room currently used as a fitness room, making the house highly practical for everyday living.
The approximately 380 m² well-maintained garden offers a true private retreat. It is equipped with an irrigation system, pergola, garden furniture, an outdoor cooking counter, and a traditional cauldron cooking area, making it perfect for family gatherings and friendly get-togethers.
The house features modern mechanical systems, including a condensing boiler, radiator and underfloor heating, as well as inverter heating-cooling air conditioning, ensuring comfort throughout the year.
The neighborhood is quiet and green, yet offers excellent infrastructure. Nearby you will find the Széphalom Shopping Center, international schools, the Gyarmati Dezső Swimming Complex, as well as numerous sports facilities and hiking opportunities. Public transportation is also easily accessible, providing convenient connections to other parts of the city.
This property is an ideal choice for those who wish to combine the proximity of the city with the tranquility of nature, and who are looking for a spacious, tastefully renovated family home.
I look forward to your call! If I am unable to answer, I promise to return your call as soon as possible.
Registration Number
H514737
Property Details
Sales
for sale
Legal Status
used
Character
house
Construction Method
brick
Net Size
250 m²
Gross Size
300 m²
Plot Size
380 m²
Size of Terrace / Balcony
24 m²
Garden Size
250 m²
Heating
Gas circulator
Ceiling Height
300 cm
Number of Levels Within the Property
3
Orientation
East
Staircase Type
enclosed staircase
Condition
Excellent
Condition of Facade
Good
Condition of Staircase
Excellent
Basement
Independent
Neighborhood
quiet, good transport, green
Year of Construction
1990
Number of Bathrooms
2
Position
street-facing
Condominium Garden
yes
Garage
Included in the price
Garage Spaces
1
Water
Available
Gas
Available
Electricity
Available
Sewer
Available
Storage
Independent
Rooms
open-plan kitchen and dining room
27 m²
living room
40 m²
corridor
3 m²
study
7 m²
toilet
2 m²
wardrobe
7 m²
bedroom
20 m²
bedroom
16 m²
bathroom-toilet
6 m²
corridor
8 m²
bathroom-toilet
5 m²
bedroom
12 m²
garage
24 m²
storage
2 m²
storage
3 m²
gym
22 m²
Hertelendiné Szabó Mónika Krisztina
Credit Expert