101,400,000 Ft
269,000 €
- 60m²
- 3 Rooms
- 1st floor
Egyedülálló ajánlat Budapest szívében! Elegáns, 3 szobás lakás a VI. kerület teljesen felújított, történelmi épületében.
Vásárolja meg álmai otthonát, vagy fektessen be egy ritka ingatlanba, amely ötvözi a polgári eleganciát, a legmodernebb technológiát és a kifogástalan infrastruktúrát.
Ritkaság a piacon!
Eladásra kínálunk egy lakást egy teljesen újjáépített épületben Budapest szívében — a történelmi VI. kerületben, az Andrássy út, a Hősök tere és a metróállomás közelében. Az ilyen típusú ingatlanok rendkívül ritkák a piacon!
A lakás bútor nélkül eladó
Az épület teljes körű felújításon esett át:
-Teljesen megújultak az épület gépészeti rendszerei: fűtés, csatornarendszer, elektromos hálózat, gáz
-Modern gázkazán került beépítésre
-Új lift lett telepítve
-Magas minőségű építőanyagokat használtak: új burkolatok, szaniterek, laminált padló, új vagy felújított ablakok és ajtók
Az eredeti épületből csupán a homlokzat maradt meg — minden más a mai kor követelményeinek megfelelően, a kényelem és stílus jegyében került kialakításra.
Lakás jellemzői:
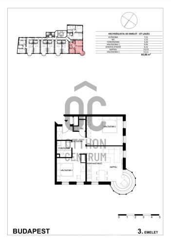
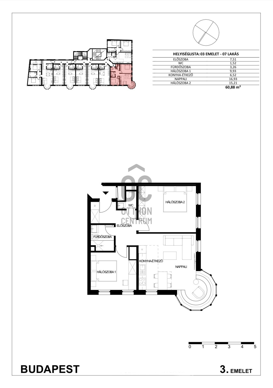
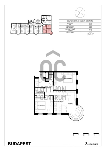
-Alapterület: 60,34m²
-3 külön bejáratú, elszeparált szoba
-A lakás rendkívül napfényes
- Mindegyik szoba saját légkondicionálóval felszerelt
- Minden közmű egyedi mérőórákkal rendelkezik.
- A nappaliban egy klasszikus épületekre jellemző rizalit található, amely különleges bájt kölcsönöz az ingatlannak
-2 wc
-Frissen felújított, azonnal költözhető vagy kiadható állapotban
Ez több mint egy lakás – ez befektetés a kivételes életminőségbe és egy presztízsértékű elhelyezkedésbe.
A lakás három kiemelkedő városrész találkozásánál helyezkedik el:
VI. kerület (Terézváros) – Budapest történelmi és kulturális központja: közvetlen közelben az Operaház, az UNESCO világörökség részét képező Andrássy út, a Hősök tere, exkluzív butikok, színházak, kávézók, múzeumok és a 19. század végi építészeti remekek. A környék a bohém elegancia és a fővárosi kulturális élet szimbóluma.
XIII. kerület (Újlipótváros) – a város egyik leggyorsabban fejlődő kerülete: modern lakóépületek, innovatív irodák, régi rakpartok, hangulatos utcák, trendi éttermek, skandináv stílus, zöld parkok és közvetlen kapcsolat a Dunához.
V. kerület (Belváros) – mindössze 10–15 perc sétára Budapest közigazgatási és turisztikai központjától: Szent István-bazilika, Parlament, Duna-part, Lánchíd, bevásárlóutcák, nemzetközi cégek és bankok irodái.
Ez az elhelyezkedés páratlan kombinációja Budapest belvárosának minden előnyének – a történelmi eleganciától a fejlett városi infrastruktúráig.
További előnyök:
-Gyalogosan elérhető a metró (1-es és 3-as vonalak), valamint busz- és trolimegállók
-Közvetlen közelben a város legjobb kávézói, éttermei, színházai, múzeumai, az Állatkert, a Hősök tere és az Andrássy út
-Pár perc sétára található a WestEnd City Center bevásárlóközpont és a Nyugati pályaudvar
-A Városliget (park) ideális sétákhoz, sportoláshoz és kikapcsolódáshoz
Az ingatlan tehermentes, azonnal birtokba vehető és megtekinthető.
Ne hagyja ki a lehetőséget, hogy Budapest szívében exkluzív ingatlan tulajdonosa legyen!
Eladás Magyarország legnagyobb ingatlanközvetítő irodájától!
Időpont-egyeztetéshez vagy további információkért vegye fel velünk a kapcsolatot még ma!
Ritkaság a piacon!
Eladásra kínálunk egy lakást egy teljesen újjáépített épületben Budapest szívében — a történelmi VI. kerületben, az Andrássy út, a Hősök tere és a metróállomás közelében. Az ilyen típusú ingatlanok rendkívül ritkák a piacon!
A lakás bútor nélkül eladó
Az épület teljes körű felújításon esett át:
-Teljesen megújultak az épület gépészeti rendszerei: fűtés, csatornarendszer, elektromos hálózat, gáz
-Modern gázkazán került beépítésre
-Új lift lett telepítve
-Magas minőségű építőanyagokat használtak: új burkolatok, szaniterek, laminált padló, új vagy felújított ablakok és ajtók
Az eredeti épületből csupán a homlokzat maradt meg — minden más a mai kor követelményeinek megfelelően, a kényelem és stílus jegyében került kialakításra.
Lakás jellemzői:
-Alapterület: 60,34m²
-3 külön bejáratú, elszeparált szoba
-A lakás rendkívül napfényes
- Mindegyik szoba saját légkondicionálóval felszerelt
- Minden közmű egyedi mérőórákkal rendelkezik.
- A nappaliban egy klasszikus épületekre jellemző rizalit található, amely különleges bájt kölcsönöz az ingatlannak
-2 wc
-Frissen felújított, azonnal költözhető vagy kiadható állapotban
Ez több mint egy lakás – ez befektetés a kivételes életminőségbe és egy presztízsértékű elhelyezkedésbe.
A lakás három kiemelkedő városrész találkozásánál helyezkedik el:
VI. kerület (Terézváros) – Budapest történelmi és kulturális központja: közvetlen közelben az Operaház, az UNESCO világörökség részét képező Andrássy út, a Hősök tere, exkluzív butikok, színházak, kávézók, múzeumok és a 19. század végi építészeti remekek. A környék a bohém elegancia és a fővárosi kulturális élet szimbóluma.
XIII. kerület (Újlipótváros) – a város egyik leggyorsabban fejlődő kerülete: modern lakóépületek, innovatív irodák, régi rakpartok, hangulatos utcák, trendi éttermek, skandináv stílus, zöld parkok és közvetlen kapcsolat a Dunához.
V. kerület (Belváros) – mindössze 10–15 perc sétára Budapest közigazgatási és turisztikai központjától: Szent István-bazilika, Parlament, Duna-part, Lánchíd, bevásárlóutcák, nemzetközi cégek és bankok irodái.
Ez az elhelyezkedés páratlan kombinációja Budapest belvárosának minden előnyének – a történelmi eleganciától a fejlett városi infrastruktúráig.
További előnyök:
-Gyalogosan elérhető a metró (1-es és 3-as vonalak), valamint busz- és trolimegállók
-Közvetlen közelben a város legjobb kávézói, éttermei, színházai, múzeumai, az Állatkert, a Hősök tere és az Andrássy út
-Pár perc sétára található a WestEnd City Center bevásárlóközpont és a Nyugati pályaudvar
-A Városliget (park) ideális sétákhoz, sportoláshoz és kikapcsolódáshoz
Az ingatlan tehermentes, azonnal birtokba vehető és megtekinthető.
Ne hagyja ki a lehetőséget, hogy Budapest szívében exkluzív ingatlan tulajdonosa legyen!
Eladás Magyarország legnagyobb ingatlanközvetítő irodájától!
Időpont-egyeztetéshez vagy további információkért vegye fel velünk a kapcsolatot még ma!
Registration Number
H513907
Property Details
Sales
for sale
Legal Status
used
Character
apartment
Construction Method
brick
Net Size
60 m²
Gross Size
60 m²
Heating
central heating
Ceiling Height
250 cm
Number of Levels Within the Property
1
Orientation
South-West
View
city view
Staircase Type
enclosed staircase
Condition
Excellent
Condition of Facade
Excellent
Condition of Staircase
Excellent
Neighborhood
good transport, central
Year of Construction
1970
Number of Bathrooms
2
Position
street-facing
Common Costs
27600
Water
Available
Gas
Available
Electricity
Available
Sewer
Available
Elevator
available
Rooms
entryway
7.46 m²
toilet-washbasin
1.45 m²
bathroom-toilet
3.23 m²
bedroom
9.79 m²
open-plan kitchen and dining room
6.53 m²
living room
16.48 m²
bedroom
15.4 m²
Ruczek Krisztina
Credit Expert