data_sheet.details.realestate.section.main.otthonstart_flag.label
For sale apartment,
H510876
Szentgotthárd
34,900,000 Ft
92,000 €
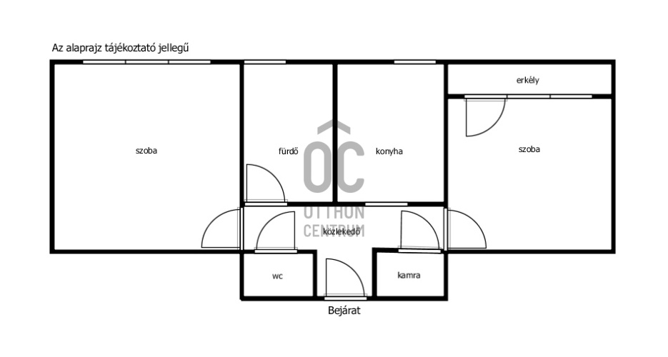
- 51m²
- 2 Rooms
- 4th floor
2 szobás +erkélyes lakás Szentgotthárd szívében
Szentgotthárd, Magyarország legnyugatibb városa, a Dunántúl egyik ékszerdoboza, közvetlenül az osztrák határ mentén, a szlovén határ közelében a vármegye délnyugati csücskében.
Ez a 51 nm-es, 2 szobás lakás ideális választás lehet mindazok számára, akik egy könnyen fenntartható ingatlant szeretnének, vagy befektetési céllal keresnek, esetleg külföldi munkájuk miatt határmenti ingatlant szeretnének vásárolni.
A lakás két tágas szobával rendelkezik, melyek a D-i tájolásnak köszönhetően világosak. Az erkély csodás panorámát kínál a környékre, ahol a reggeli kávéja mellett élvezheti a friss levegőt és a kilátást.
Az ingatlan átlagos/jó állapotban van, így a leendő tulajdonos saját ízlése szerint alakíthatja, a villamoshálózatot cserélték, az ablakok fából készültek, az épület szigetelt. A fűtés távfűtéses, egyedi mérés lehetőségével, amely gazdaságos megoldást kínál a téli hónapokban.
A lakás elhelyezkedése kiváló, hiszen Szentgotthárd központja közelében található, ahol minden fontos szolgáltatás, bolt és intézmény könnyen elérhető. Parkolás közvetlenül a társasház közelében, ingyenesen megoldható.
További információért, megtekintési időpontért hívjonbizalommal!
Hitelre van szüksége? Az Otthon Centrum az ország egyik legnagyobb és legmegbízhatóbb hitelközvetítőjeként, teljes körű és díjmentes hitelügyintézéssel, biztosításkötéssel áll rendelkezésére!
Kérje személyre szabott ajánlatunkat kollégáinktól!
Ez a 51 nm-es, 2 szobás lakás ideális választás lehet mindazok számára, akik egy könnyen fenntartható ingatlant szeretnének, vagy befektetési céllal keresnek, esetleg külföldi munkájuk miatt határmenti ingatlant szeretnének vásárolni.
A lakás két tágas szobával rendelkezik, melyek a D-i tájolásnak köszönhetően világosak. Az erkély csodás panorámát kínál a környékre, ahol a reggeli kávéja mellett élvezheti a friss levegőt és a kilátást.
Az ingatlan átlagos/jó állapotban van, így a leendő tulajdonos saját ízlése szerint alakíthatja, a villamoshálózatot cserélték, az ablakok fából készültek, az épület szigetelt. A fűtés távfűtéses, egyedi mérés lehetőségével, amely gazdaságos megoldást kínál a téli hónapokban.
A lakás elhelyezkedése kiváló, hiszen Szentgotthárd központja közelében található, ahol minden fontos szolgáltatás, bolt és intézmény könnyen elérhető. Parkolás közvetlenül a társasház közelében, ingyenesen megoldható.
További információért, megtekintési időpontért hívjonbizalommal!
Hitelre van szüksége? Az Otthon Centrum az ország egyik legnagyobb és legmegbízhatóbb hitelközvetítőjeként, teljes körű és díjmentes hitelügyintézéssel, biztosításkötéssel áll rendelkezésére!
Kérje személyre szabott ajánlatunkat kollégáinktól!
Registration Number
H510876
Property Details
Sales
for sale
Legal Status
used
Character
apartment
Construction Method
brick
Net Size
51 m²
Gross Size
51 m²
Size of Terrace / Balcony
3.5 m²
Heating
individual district heating
Ceiling Height
275 cm
Orientation
South
Staircase Type
enclosed staircase
Condition
Average
Condition of Facade
Good
Condition of Staircase
Good
Neighborhood
good transport, central
Year of Construction
1975
Number of Bathrooms
1
Position
street-facing
Common Costs
10000
Water
Available
Gas
Available
Electricity
Available
Sewer
Available
Storage
Shared
Rooms
room
17.15 m²
room
12.79 m²
kitchen
7.16 m²
bathroom
4.69 m²
pantry
0.84 m²
toilet
1.05 m²
corridor
5.55 m²
balcony
3.5 m²
Csejtey Krisztina
Credit Expert