154,999,000 Ft
406,000 €
- 109m²
- 5 Rooms
ZSÁMBÉK PREMIER LOKÁCIÓ: 2023-as Építésű, AA+ Energetikájú Luxus Otthon – Azonnal Költözhető!
Szeretne egy új építésű házat, de nem akar éveket várni a kivitelezésre? Zsámbék legfelkapottabb, új parcellázású részén eladó ez a minden igényt kielégítő, 2023-ban átadott, gyakorlatilag érintetlen prémium családi ház.
Ez az ingatlan nem kompromisszumokról, hanem a tökéletes kényelemről és a zéró rezsiről szól.
AZ INGATLAN SZÁMOKBAN
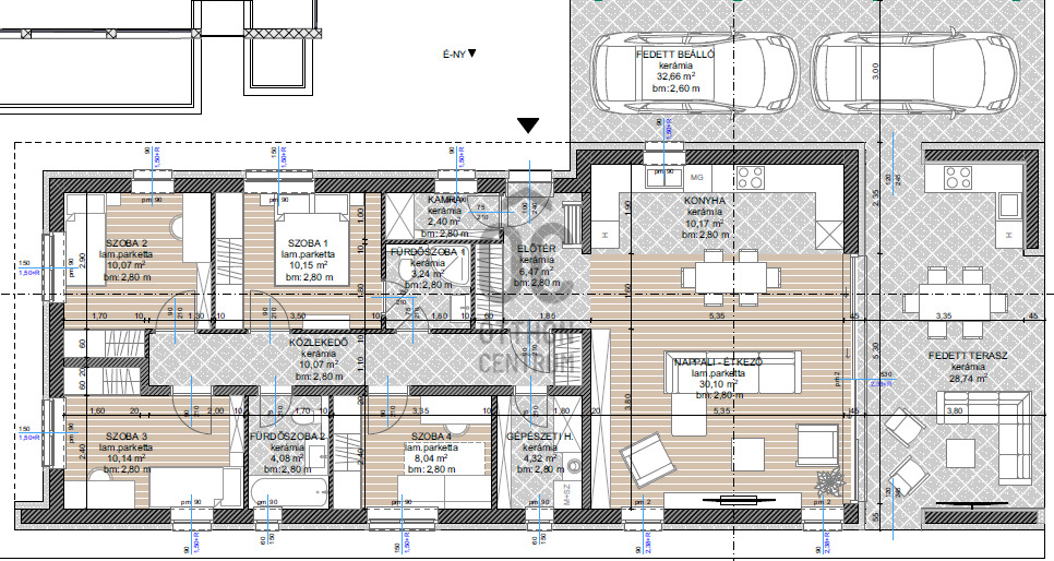
Ház: 109 m² nettó lakótér | Nappali + 4 hálószoba | 2 fürdőszoba.
Telek: 715 m² | Gondozásmentes, parkosított.
Garázs: 42 m² (kétállásos) + 3 udvari beálló.
Terasz: 29 m² fedett relaxációs zóna.
PRÉMIUM ÉLETÉRZÉS ÉS ELRENDEZÉS A tágas amerikai konyhás nappali mellett 4 teljes értékű hálószoba kapott helyet. A szülői háló saját fürdőszobával biztosítja az intim szférát. Az enteriőrt az elegáns antracit nyílászárók és beltéri ajtók, valamint a tágas terek teszik modernné és időtállóvá.
TECHNOLÓGIA ÉS ENERGIAHATÉKONYSÁG (Fenntartás: Szinte ingyen!) A ház műszaki tartalma messze túlmutat a piaci átlagon:
Falazat: 30-as Porotherm + 20 cm grafitos homlokzati szigetelés + 30 cm födémszigetelés.
Gépészet: Panasonic hőszivattyú (padlófűtés + HMV) helyiségenkénti vezérléssel.
Vízlágyító: Központi rendszer védi a gépészetet és csaptelepeket a vízkőtől.
Nyílászárók: 3 rétegű üvegezés, elektromos alumínium redőnyökkel és pliszé szúnyoghálóval.
Hűtés: 2 db nagyteljesítményű klíma gondoskodik a nyári melegről.
KERT – AHOL A PIHENÉSÉ A FŐSZEREP Felejtse el a hétvégi fűnyírást! A kertet robotfűnyíró és automata öntözőrendszer tartja karban.
Travertin mészkővel burkolt kerítés, antracit alumínium betétekkel.
Játszótér / Medence előkészítés: 30 m² minőségi műfű.
Kerti partikhoz: 5 m² térkövezett tűzrakóhely.
Külön kerti tároló a szerszámoknak.
BIZTONSÁG: Kiépített kamerarendszer és riasztó védi értékeit.
KINEK AJÁNLOM? Olyan családoknak, akik a kompromisszummentes minőséget keresik, és értékelik, hogy egy új háznál nem kell a kivitelezőkkel küzdeni – csak beköltözni és élvezni a luxust.
Az ingatlan tehermentes, rövid határidővel költözhető. Hívjon még ma, mert ez a minőség ezen a környéken ritka kincs!
Ez az ingatlan nem kompromisszumokról, hanem a tökéletes kényelemről és a zéró rezsiről szól.
AZ INGATLAN SZÁMOKBAN
Ház: 109 m² nettó lakótér | Nappali + 4 hálószoba | 2 fürdőszoba.
Telek: 715 m² | Gondozásmentes, parkosított.
Garázs: 42 m² (kétállásos) + 3 udvari beálló.
Terasz: 29 m² fedett relaxációs zóna.
PRÉMIUM ÉLETÉRZÉS ÉS ELRENDEZÉS A tágas amerikai konyhás nappali mellett 4 teljes értékű hálószoba kapott helyet. A szülői háló saját fürdőszobával biztosítja az intim szférát. Az enteriőrt az elegáns antracit nyílászárók és beltéri ajtók, valamint a tágas terek teszik modernné és időtállóvá.
TECHNOLÓGIA ÉS ENERGIAHATÉKONYSÁG (Fenntartás: Szinte ingyen!) A ház műszaki tartalma messze túlmutat a piaci átlagon:
Falazat: 30-as Porotherm + 20 cm grafitos homlokzati szigetelés + 30 cm födémszigetelés.
Gépészet: Panasonic hőszivattyú (padlófűtés + HMV) helyiségenkénti vezérléssel.
Vízlágyító: Központi rendszer védi a gépészetet és csaptelepeket a vízkőtől.
Nyílászárók: 3 rétegű üvegezés, elektromos alumínium redőnyökkel és pliszé szúnyoghálóval.
Hűtés: 2 db nagyteljesítményű klíma gondoskodik a nyári melegről.
KERT – AHOL A PIHENÉSÉ A FŐSZEREP Felejtse el a hétvégi fűnyírást! A kertet robotfűnyíró és automata öntözőrendszer tartja karban.
Travertin mészkővel burkolt kerítés, antracit alumínium betétekkel.
Játszótér / Medence előkészítés: 30 m² minőségi műfű.
Kerti partikhoz: 5 m² térkövezett tűzrakóhely.
Külön kerti tároló a szerszámoknak.
BIZTONSÁG: Kiépített kamerarendszer és riasztó védi értékeit.
KINEK AJÁNLOM? Olyan családoknak, akik a kompromisszummentes minőséget keresik, és értékelik, hogy egy új háznál nem kell a kivitelezőkkel küzdeni – csak beköltözni és élvezni a luxust.
Az ingatlan tehermentes, rövid határidővel költözhető. Hívjon még ma, mert ez a minőség ezen a környéken ritka kincs!
Registration Number
H510498
Property Details
Sales
for sale
Legal Status
used
Character
house
Construction Method
brick
Net Size
109 m²
Gross Size
109 m²
Plot Size
715 m²
Size of Terrace / Balcony
28.5 m²
Heating
heat pump
Ceiling Height
280 cm
Orientation
North-East
Condition
Excellent
Condition of Facade
Excellent
Year of Construction
2023
Number of Bathrooms
2
Garage
Included in the price
Garage Spaces
2
Water
Available
Electricity
Available
Sewer
Available
Storage
Independent
Rooms
garage
42 m²
entryway
6.5 m²
pantry
2.4 m²
kitchen
10.2 m²
open-plan living and dining room
30.1 m²
corridor
10 m²
boiler room
4.3 m²
bedroom
8 m²
bedroom
10.15 m²
bedroom
10 m²
bedroom
1.1 m²
bathroom-toilet
3.2 m²
bathroom-toilet
4 m²
terrace
28.7 m²