data_sheet.details.realestate.section.main.otthonstart_flag.label
For sale family house, H510087
Zalaegerszeg, Csácsi

76,000,000 Ft

198,000 €

  • 89m²
  • 4 Rooms

Revived home on classic foundations!

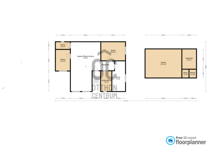
I am offering for sale a reimagined, under renovation family house with a living room + 3 rooms in the Csács area of Zalaegerszeg, which has the following features: - The property is located on a flat area of 1022 m2. The spacious building has an area of 89 m2. - The house was originally built on a concrete foundation with brick walls, to which an extension was added using the same technique (in 2024). - The entire roof has been newly covered (with battens and tiles). - The façade of the house is not insulated; its insulation and painting will be the responsibility of the new owner. - Among the utilities, electricity (rewired + H tariff introduced), water (pipes modernized), and sewage are in place. Gas is available on the property. - Heating is provided by a solid fuel boiler (a 1000-liter buffer tank makes it more comfortable), with heat distribution via underfloor heating. Additionally, two heating-cooling air conditioners ensure a pleasant temperature in the apartment. - The windows and doors are made of wood (newly installed). - The communal areas of the house have ceramic floor tiles, while the flooring in the rooms has not yet been completed, but this will be done in the near future. - The living spaces have been freshly painted and feature a suspended ceiling. - One of the rooms has a built-in wardrobe. - The kitchen furniture is equipped (dishwasher and oven installed; the cooktop is missing). - In the bathroom, some sanitary ware (toilet, urinal) and a towel radiator have been purchased. - A camera system has been installed in the property. - As part of the house, a washroom, laundry room, boiler room, and a two-car park have been created as an extension. - The arrangement of the yard and garden is left to the imagination of the new owner. I recommend this property to those who combine tradition with modern elements that meet all needs. It does not bother them if the exterior is still taking shape; in fact, they welcome the idea that the final touches reflect their vision. They appreciate that they can almost immediately move into a renewed suburban environment. If you would like to learn more about this property or have any questions, please do not hesitate to contact us with confidence. Your satisfaction is the most important thing for us, and we are happy to assist you in making the best decision. Our office provides comprehensive services to our clients seeking properties. We offer professional advice, free assistance with CSOK (home purchase support) and loan administration, preparation of energy certificates, and assistance from a lawyer at favorable rates!

Registration Number

H510087

Property Details

Sales
for sale
Legal Status
used
Character
house
Construction Method
brick
Net Size
89 m²
Gross Size
140 m²
Plot Size
1,022 m²
Heating
mixed circulator
Ceiling Height
266 cm
Orientation
South
Condition
Excellent
Condition of Facade
Average
Year of Construction
1970
Number of Bathrooms
1
Garage
Included in the price
Number of Covered Parking Spots
2
Water
Available
Electricity
Available
Sewer
Available

Rooms

room
10.8 m²
room
16 m²
room
12.74 m²
open-plan kitchen and dining room
37 m²
pantry
3.6 m²
bathroom-toilet
7.6 m²
laundry room
1.9 m²
toilet
2 m²
garage
37.2 m²
boiler room
9.9 m²

From Our Office Listings - Zalaegerszeg - Eötvös utca

for sale family house

Index image
data_sheet.details.realestate.section.main.otthonstart_flag.label
33

for sale family house

Index image
data_sheet.details.realestate.section.main.otthonstart_flag.label
18

for sale family house

Index image
data_sheet.details.realestate.section.main.otthonstart_flag.label
12

for sale vacation home

Index image
11

for sale apartment

Index image
data_sheet.details.realestate.section.main.otthonstart_flag.label
21

for sale apartment

Index image
data_sheet.details.realestate.section.main.otthonstart_flag.label
16

for sale apartment

Index image
data_sheet.details.realestate.section.main.otthonstart_flag.label
19

for sale family house

Index image
data_sheet.details.realestate.section.main.otthonstart_flag.label
17