data_sheet.details.realestate.section.main.otthonstart_flag.label
For sale family house, H508858
Törtel

32,000,000 Ft

84,000 €

  • 67m²
  • 2 Rooms
Exclusive Contract

Otthon Startra alkalmas családi ház Törtelen

Képzeld el, hogy egy csendes, zöldövezeti környezetben találod magad, ahol minden adott ahhoz, hogy megvalósítsd álmaid otthonát vagy befektetési lehetőségedet! Ez a használt ház Pest vármegye szívében, Törtel városában vár rád, ahol a nyugalom és a természet közelsége találkozik a modern életstílussal. Az ingatlan 67 nm alapterületű, két tágas szobával rendelkezik, ideális választás fiatal felnőttek számára, akik szeretnék élvezni a csendes, mégis élhető környezetet. A házhoz tartozik egy 974 nm-es telek, amely lehetőséget ad a bővítésre, így könnyedén alakíthatod a teret saját ízlésed szerint. Az épületben lévő 2 szoba falazata beton alapra tégla, többi épületrész vályog falazatú. A tégla rész külső szigetelést is kapott. A 12 nm-es terasz ideális helyszín a reggeli kávézáshoz vagy a barátokkal való összejövetelekhez, miközben a rendezett kertben a kisállatok is szabadon mozoghatnak. Az ingatlan tehermentes, így gyorsan költözhető, és az Otthon Start támogatás is elérhető, ami még vonzóbbá teszi a vásárlást. A ház fűtése gáz cirkóval és vegyes tüzelésű kazánnal, a hűtés pedig klímával megoldott, így a klíma mindig kellemes lesz. A környék biztonságos és csendes, ideális a pihenésre és a feltöltődésre. A közlekedési lehetőségek is kiválóak: a buszmegálló csupán pár perc sétára található, így könnyedén elérheted a közeli városokat, vagy a fővárost is. Ez az ingatlan nem csupán egy ház, hanem egy lehetőség arra, hogy egy olyan otthont teremts magadnak, ahol a mindennapok örömteliek és kényelmesek lehetnek. Gazdálkodásra, vállalkozásra alkalmas nagy melléképületek és utcára nyíló garázs. Igény esetén zártkerti szántó is vásárolható mellé a közelben. Ha kérdéseid lennének, vagy szeretnéd megtekinteni ezt a gyönyörű ingatlant, bátran keresd bizalommal! Ne habozz, hiszen a piacon lévő ingatlanok gyorsan fogynak, és ez a lehetőség nem tart örökké!

Registration Number

H508858

Property Details

Sales
for sale
Legal Status
used
Character
house
Construction Method
mixed masonry
Net Size
67 m²
Gross Size
67 m²
Plot Size
974 m²
Size of Terrace / Balcony
12 m²
Heating
Gas circulator
Ceiling Height
270 cm
Orientation
South
Condition
Average
Condition of Facade
Excellent
Neighborhood
quiet, good transport
Year of Construction
1974
Number of Bathrooms
1
Garage
Included in the price
Garage Spaces
1
Water
Available
Gas
Available
Electricity
Available
Sewer
Available
Storage
Independent

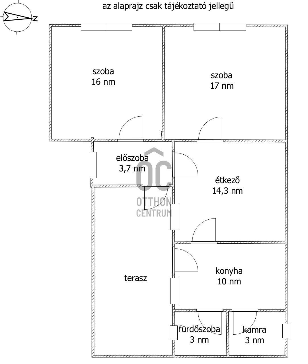
Rooms

room
16 m²
room
17 m²
dining room
14.3 m²
entryway
3.7 m²
kitchen
10 m²
bathroom-toilet
3 m²

From Our Office Listings - Albertirsa

eladó családi ház

Index image
Elérhető Otthon Start hitellel
16

for sale family house

Index image
data_sheet.details.realestate.section.main.otthonstart_flag.label
12

eladó lakás

Index image
Elérhető Otthon Start hitellel
24

eladó családi ház

Index image
Elérhető Otthon Start hitellel
32

for sale family house

Index image
data_sheet.details.realestate.section.main.otthonstart_flag.label
22

for sale family house

Index image
data_sheet.details.realestate.section.main.otthonstart_flag.label
30

for sale family house

Index image
data_sheet.details.realestate.section.main.otthonstart_flag.label
22

for sale family house

Index image
data_sheet.details.realestate.section.main.otthonstart_flag.label
28

for sale family house

Index image
data_sheet.details.realestate.section.main.otthonstart_flag.label
23