140,000,000 Ft
360,000 €
- 81m²
- 2 Rooms
- 3rd floor


















Stylish, spacious apartment in the heart of the city
For sale is a 81 m², two-bedroom apartment on the third floor of one of the best-maintained, lift-equipped buildings on Teréz Körút. The apartment is distinguished by its generous living spaces and large windows, which fill the rooms with natural light throughout the day. The vibrancy of the city is just a few steps away, yet the property offers a surprisingly peaceful and quiet atmosphere.
About the Property:
The 81 m² layout is efficiently designed, with two separate bedrooms, making the apartment ideal as a private home or an investment.
The spacious living room and large windows create a bright, airy environment that can be easily adapted to suit individual needs.
About the Building:
The building is a well-maintained, classic residential property, preserving its original elegance while being consistently cared for and modernized.
The lift-equipped staircase is tidy and clean, and the residents form a quiet, considerate community.
Both the exterior and interior of the building are in good condition, ensuring that the apartment is part of a stable and well-kept environment.
About the Neighborhood:
Oktogon and Nyugati tér are just a few minutes’ walk away, with tram lines 4 and 6, the metro, and several bus routes easily accessible. Shops, restaurants, cafés, and essential services are all within walking distance, making daily life convenient.
For those who appreciate the energy of the city but also value inner calm and a stylish home, this apartment represents a perfect choice.
We offer customized mortgage solutions tailored to individual needs. Our bank-independent Loan Center compares offers from all banks and financial institutions in the country, free of charge, to find the best option for you.
Our experienced team is available by appointment, including after regular working hours, to assist you personally.
About the Property:
The 81 m² layout is efficiently designed, with two separate bedrooms, making the apartment ideal as a private home or an investment.
The spacious living room and large windows create a bright, airy environment that can be easily adapted to suit individual needs.
About the Building:
The building is a well-maintained, classic residential property, preserving its original elegance while being consistently cared for and modernized.
The lift-equipped staircase is tidy and clean, and the residents form a quiet, considerate community.
Both the exterior and interior of the building are in good condition, ensuring that the apartment is part of a stable and well-kept environment.
About the Neighborhood:
Oktogon and Nyugati tér are just a few minutes’ walk away, with tram lines 4 and 6, the metro, and several bus routes easily accessible. Shops, restaurants, cafés, and essential services are all within walking distance, making daily life convenient.
For those who appreciate the energy of the city but also value inner calm and a stylish home, this apartment represents a perfect choice.
We offer customized mortgage solutions tailored to individual needs. Our bank-independent Loan Center compares offers from all banks and financial institutions in the country, free of charge, to find the best option for you.
Our experienced team is available by appointment, including after regular working hours, to assist you personally.
Registration Number
H508745
Property Details
Sales
for sale
Legal Status
used
Character
apartment
Construction Method
brick
Net Size
81 m²
Gross Size
81 m²
Heating
Gas circulator
Ceiling Height
365 cm
Orientation
North-East
View
city view
Staircase Type
suspended corridor
Condition
Good
Condition of Facade
Good
Condition of Staircase
Good
Neighborhood
good transport, central
Year of Construction
1887
Number of Bathrooms
1
Position
street-facing
Common Costs
40000
Water
Available
Gas
Available
Electricity
Available
Sewer
Available
Elevator
available
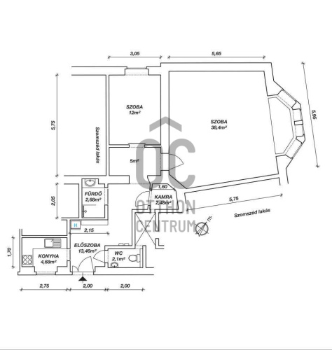
Rooms
room
38.4 m²
room
12 m²
entryway
13.46 m²
bathroom
2.68 m²
kitchen
4.68 m²
toilet
2.1 m²
pantry
2.48 m²
corridor
5 m²