data_sheet.details.realestate.section.main.otthonstart_flag.label
For sale apartment, H508235
Makó

59,900,000 Ft

156,000 €

  • 60m²
  • 2 Rooms
  • ground floor
Exclusive Contract

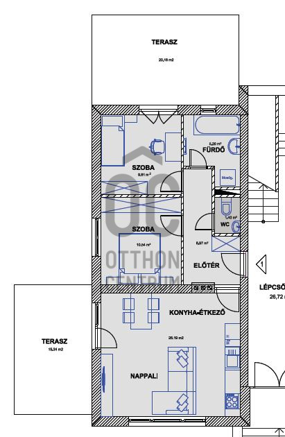
Ground floor apartment in Makó available for moving in 2026.

Dear Interested Party! Currently, transformation and renovation works are underway in Makó, at the Liget Residential Park, which will result in a completely renewed, modern ground-floor apartment! This means that you will be among the first to take possession of this bright, practically arranged home – in brand new condition. The property is located on Liget Street, in a closed stairwell building with only 16 apartments. The city center is accessible in just 3 minutes by car, 5 minutes by bicycle, and approximately 17 minutes on foot, making all important places easily reachable. Shopping options, a kindergarten, a school, and a bus stop are just a few hundred meters away, which truly adds to the convenience of everyday life. The 60 m² apartment features two rooms, a living room–kitchen–dining area, an entrance hall, a bathroom with a bathtub, and a separate toilet. The interior finishes will be renewed: laminate flooring will be installed in the rooms, while tiles will be placed in the entrance hall and wet areas. The apartment comes with two garden-connected terraces – one measuring 15.24 m², accessible from the living room–kitchen–dining area, and the other measuring 20.18 m², accessible from one of the rooms – ensuring outdoor relaxation year-round. The apartment will be handed over unfurnished, without built-in appliances, but the necessary outlets and connection points will be pre-installed, allowing the new owner to easily furnish it according to their taste. The entire electrical, water, and sewage network is new, and gas is not connected to the apartment. Heating is provided by a central heating system powered by gas, through radiators equipped with temperature controls, each apartment having its own individual heat meter, so each resident pays for their own consumption. Hot water is supplied by a modern, energy-efficient smart boiler. The apartment will also have air conditioning installed, and the plastic, three-layer thermal insulated windows will guarantee efficient operation. Parking on the street is free, but if needed, a private parking space can be purchased within the property boundaries for an additional cost. A bicycle storage area is available in the courtyard of the building. After the completion of the works, the apartment will be available for possession by May 31, 2026, at the latest. For detailed technical content and payment schedule, our office will provide further information. Don't miss out on this new home – call now or schedule an appointment for a personal meeting! Learn more about Makó here: http://mako.hu/makoi-seta/ Be aware of your finances before committing! Our independent mortgage broker is available to assist you free of charge. We also support our buyers with a professional and reasonably priced legal background during the contract signing process. #homecentermako #makorealestate #for saleapartment #makofor saleapartment #real estate #homecenter #real estate market #home #hagymatikum #forsale #oc #loan #ocmako #insurance #realestate #withyouateverystep #homesweethome #realestatemediation #webuilddreams #moving #renovatedapartment

Registration Number

H508235

Property Details

Sales
for sale
Legal Status
used
Character
apartment
Construction Method
brick
Net Size
60 m²
Gross Size
72 m²
Size of Terrace / Balcony
35 m²
Heating
central heating
Ceiling Height
290 cm
Number of Levels Within the Property
2
Orientation
North
View
city view
Staircase Type
enclosed staircase
Condition
Good
Condition of Facade
Good
Condition of Staircase
Good
Neighborhood
quiet, good transport
Year of Construction
1980
Number of Bathrooms
1
Position
street-facing
Water
Available
Electricity
Available
Sewer
Available
Connected to Garden
yes

Rooms

room
9.81 m²
room
10.54 m²
open-plan kitchen and living room
26.19 m²
entryway
6.97 m²
bathroom
5.2 m²
toilet
1.4 m²
Csirik Nikoletta
Csirik Nikoletta

Credit Expert

From Our Office Listings - Makó

for sale apartment

Index image
data_sheet.details.realestate.section.main.otthonstart_flag.label
7

for sale family house

Index image
data_sheet.details.realestate.section.main.otthonstart_flag.label
49

for sale family house

Index image
52

for sale family house

Index image
data_sheet.details.realestate.section.main.otthonstart_flag.label
49

for sale family house

Index image
data_sheet.details.realestate.section.main.otthonstart_flag.label
50

for sale apartment

Index image
data_sheet.details.realestate.section.main.otthonstart_flag.label
7

for sale apartment

Index image
data_sheet.details.realestate.section.main.otthonstart_flag.label
7

for sale apartment

Index image
26

for sale family house

Index image
data_sheet.details.realestate.section.main.otthonstart_flag.label
46

for sale family house

Index image
data_sheet.details.realestate.section.main.otthonstart_flag.label
48

for rent commercial property

Index image
28

for sale apartment

Index image
data_sheet.details.realestate.section.main.otthonstart_flag.label
7