data_sheet.details.realestate.section.main.otthonstart_flag.label
For sale family house,
H508127
Tolna
41,900,000 Ft
110,000 €
- 92m²
- 3 Rooms
In the center of Tolna, a two-generation family house for sale.
In the center of Tolna, a two-generation family house is for sale.
I recommend this mixed construction family house to those looking to cohabitate, those moving separately, and those considering starting a business, as it offers numerous opportunities for its new owner.
The main features of the property:
- Excellent location: almost everything is available within a few minutes' walk
- The plot area is nearly 500 sqm
- The house itself is 95 sqm
- Some of the windows have already been replaced with plastic, while the others are wooden
- Heating is provided by gas convectors
- Cooling is provided by air conditioning
- Power supply is 3*10 A
- Connected to the sewer system
- The roof was renewed a few years ago
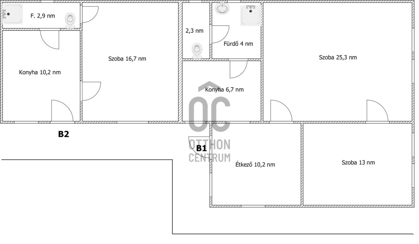
- A unique feature of the house is that it has been divided into two sections:
- The front section includes two rooms, a dining room, a kitchen, and a bathroom (~ 65 sqm)
- The back section contains a kitchen, a bathroom, and a room (~ 30 sqm), creating opportunities for accommodating elderly parents or returning children, as well as starting a business (hair salon, beauty salon, nail design, massage, etc.).
Take a look and decide how you would utilize this well-maintained family house. You can request an appointment for viewing at the provided phone numbers.
Comprehensive financial solutions management is free of charge: * Our bank-independent loan center competitively evaluates offers from all banks and financial institutions at no cost. * You only need to talk to our colleague, and then select the most suitable long-term option from the evaluated offers. * Our expert, with over 20 years of professional experience, awaits you with consumer-friendly home loans tailored to individual needs, baby waiting loans, and comprehensive CSOK management. * By appointment only.
In the center of Tolna, a two-generation family house is for sale.
I recommend this mixed construction family house to those looking to cohabitate, those moving separately, and those considering starting a business, as it offers numerous opportunities for its new owner.
The main features of the property:
- Excellent location: almost everything is available within a few minutes' walk
- The plot area is nearly 500 sqm
- The house itself is 95 sqm
- Some of the windows have already been replaced with plastic, while the others are wooden
- Heating is provided by gas convectors
- Cooling is provided by air conditioning
- Power supply is 3*10 A
- Connected to the sewer system
- The roof was renewed a few years ago
- A unique feature of the house is that it has been divided into two sections:
- The front section includes two rooms, a dining room, a kitchen, and a bathroom (~ 65 sqm)
- The back section contains a kitchen, a bathroom, and a room (~ 30 sqm), creating opportunities for accommodating elderly parents or returning children, as well as starting a business (hair salon, beauty salon, nail design, massage, etc.).
Take a look and decide how you would utilize this well-maintained family house. You can request an appointment for viewing at the provided phone numbers.
Comprehensive financial solutions management is free of charge: * Our bank-independent loan center competitively evaluates offers from all banks and financial institutions at no cost. * You only need to talk to our colleague, and then select the most suitable long-term option from the evaluated offers. * Our expert, with over 20 years of professional experience, awaits you with consumer-friendly home loans tailored to individual needs, baby waiting loans, and comprehensive CSOK management. * By appointment only.
In the center of Tolna, a two-generation family house is for sale.
Registration Number
H508127
Property Details
Sales
for sale
Legal Status
used
Character
house
Construction Method
mixed masonry
Net Size
92 m²
Gross Size
92 m²
Plot Size
496 m²
Heating
gas convector
Ceiling Height
250 cm
Orientation
East
Condition
Average
Condition of Facade
Average
Neighborhood
quiet, good transport, central
Year of Construction
1950
Number of Bathrooms
2
Water
Available
Gas
Available
Electricity
Available
Sewer
Available
Storage
Independent
Rooms
entryway
10.2 m²
room
25.27 m²
room
13 m²
kitchen
6.67 m²
bathroom
3.95 m²
toilet
2.14 m²
open-plan kitchen and dining room
10.24 m²
room
16.68 m²
bathroom-toilet
2.87 m²
Fábián Sándorné
Credit Expert