69,000,000 Ft
183,000 €
- 46m²
- 3 Rooms
- ground floor
Felújított, belső kétszintes ingatlan a Liget közelében
Eladásra kínálok egy több funkcióra is hasznosítható ingatlant. Legutóbb irodaként üzemelt, de lakás célra is megfelelő lehet. Műhely besorolású, 3%-os hitellel nem kompatibilis.
Ingatlanról:
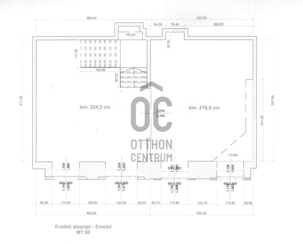
- 46 nm alapterületű, eredetileg 5m-es belmagasság
- jelenleg belső kétszintes, 2x46 nm
- 2,10 és 2,25 m belmagasság
-teljeskörűen felújított
-cirkó fűtés
-műanyag, törés- és belátásgátló ablakokkal
-jelenleg 2 wc-s mellékhelyiség van kialakítva, de a vevő igényei szerint 1 fürdőszoba kialakítása lehetséges az egyik wc helyén, illetve a tároló helyiség átalakításával
-utcai bejáratos
-közvetlen szomszéd nincs.
A társasház rendezett, homlokzata felújított.
Közlekedés:
- Trolik max. 3 perc sétára: 70, 74, 78, 79
- Keleti pályaudvar 9 perc sétára
Jöjjön el megnézni és tegyen bátran ajánlatot! Várom hívását!
Ingatlanról:
- 46 nm alapterületű, eredetileg 5m-es belmagasság
- jelenleg belső kétszintes, 2x46 nm
- 2,10 és 2,25 m belmagasság
-teljeskörűen felújított
-cirkó fűtés
-műanyag, törés- és belátásgátló ablakokkal
-jelenleg 2 wc-s mellékhelyiség van kialakítva, de a vevő igényei szerint 1 fürdőszoba kialakítása lehetséges az egyik wc helyén, illetve a tároló helyiség átalakításával
-utcai bejáratos
-közvetlen szomszéd nincs.
A társasház rendezett, homlokzata felújított.
Közlekedés:
- Trolik max. 3 perc sétára: 70, 74, 78, 79
- Keleti pályaudvar 9 perc sétára
Jöjjön el megnézni és tegyen bátran ajánlatot! Várom hívását!
Registration Number
H508113
Property Details
Sales
for sale
Legal Status
used
Character
commercial
Type of Business Property
part of building
Construction Method
brick
Net Size
46 m²
Gross Size
92 m²
Above-Ground Net Size
46 m²
Heating
Gas circulator
Ceiling Height
230 cm
Number of Levels Within the Property
2
Orientation
North-East
Staircase Type
circular corridor
Condition
Good
Condition of Facade
Good
Condition of Staircase
Good
Basement
Independent
Year of Construction
1910
Number of Bathrooms
2
Position
street-facing
Common Costs
30000
Water
Available
Gas
Available
Electricity
Available
Sewer
Available
Possible Functions
retail, hospitality unit, office, office and showroom or shop, office and warehouse, showroom, showroom and service or warehouse
Utilization
vacant
Lueff Péter
Credit Expert