data_sheet.details.realestate.section.main.otthonstart_flag.label
For sale family house,
H507982
Budapest XVII. kerület, Rákosliget
94,900,000 Ft
244,000 €
- 90m²
- 3 Rooms


















Igazi ritkaság Rákosligeten
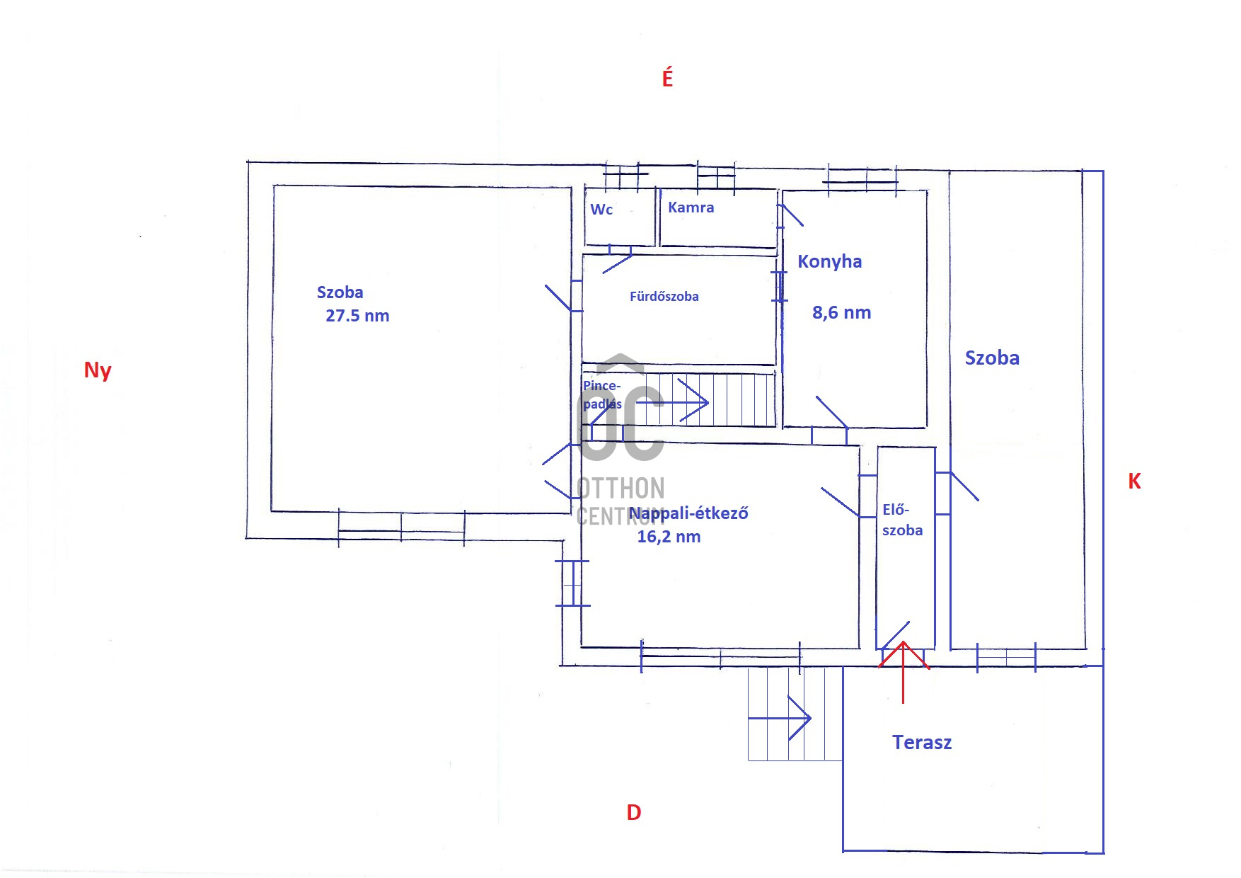
XVII. kerület kiemelt, egyik legjobb részén, Rákosligeten, ezen belül is a Régiakadémiatelepen kínálunk megvásárlásra egy szép 721 nm-es, kb. 25 méter széles telken álló nagypolgári házat. Ez az ingatlan több szempontból is különleges értéket képvisel: aki szeretné megőrizni ezt a nagypolgári jelleget, annak igazi kincs ez a lakóépület, elegáns, nagyvonalú ingatlant lehet belőle varázsolni egy teljeskörű felújítással. A házban két külön nyíló szoba, egy nappali-étkező, nagy konyha, kamra, fürdőszoba, előszoba, pince kapott helyet, a bejárat egy napos, kertre néző teraszról nyílik. A terasz alatt pince-tároló található.
Aki viszont kifejezetten jó környéken keres építési telket, annak is kiváló választás, mivel a kerületben üres telek jó környéken már nincs, a jelenlegi lakóépület lebontásával egy új ház épülhet. A telek szélessége lehetővé teszi egy földszintes lakóépület kialakítását is, a beépíthetősége 25%, a telek összközműves, déli tájolású.
A környék kifejezetten csendes, rendezett lakóházakkal beépített. Kiváló ellátottságú terület, tömegközlekedés a Gyöngytyúk, utcán, Ligetsoron, Ferihegyi úton, több buszjárat megállója pár perc sétára, vonat állomás szintén a közelben van. Továbbá iskola (Gregor általános iskola), óvoda, orvosi rendelő, bevásárlási lehetőségek (hentes, pék, SPAR) gyalog is kényelmesen elérhetők.
Az ingatlan üres, tehermentes, rövid időn belül birtokba vehető.
Aki viszont kifejezetten jó környéken keres építési telket, annak is kiváló választás, mivel a kerületben üres telek jó környéken már nincs, a jelenlegi lakóépület lebontásával egy új ház épülhet. A telek szélessége lehetővé teszi egy földszintes lakóépület kialakítását is, a beépíthetősége 25%, a telek összközműves, déli tájolású.
A környék kifejezetten csendes, rendezett lakóházakkal beépített. Kiváló ellátottságú terület, tömegközlekedés a Gyöngytyúk, utcán, Ligetsoron, Ferihegyi úton, több buszjárat megállója pár perc sétára, vonat állomás szintén a közelben van. Továbbá iskola (Gregor általános iskola), óvoda, orvosi rendelő, bevásárlási lehetőségek (hentes, pék, SPAR) gyalog is kényelmesen elérhetők.
Az ingatlan üres, tehermentes, rövid időn belül birtokba vehető.
Registration Number
H507982
Property Details
Sales
for sale
Legal Status
used
Character
house
Construction Method
brick
Net Size
90 m²
Gross Size
100 m²
Plot Size
721 m²
Heating
gas convector
Ceiling Height
310 cm
Orientation
South
Condition
To be renovated
Condition of Facade
Average
Basement
Independent
Neighborhood
quiet, good transport, green
Year of Construction
1936
Number of Bathrooms
1
Water
Available
Gas
Available
Electricity
Available
Sewer
Available
Storage
Independent
Rooms
living room
16 m²
room
20 m²
room
16 m²
kitchen
8 m²

Torday Tibor
Credit Expert