249,900,000 Ft
643,000 €
- 320m²
- 7 Rooms



























Otthon és vállalkozás egy fedél alatt
Budapest 16. kerületében, Rákosszentmihály csendes, biztonságos részén 2 külön bejáratú épületből álló ingatlan eladó, amely ideális választás családi otthon és üzleti vállalkozások számára is. A 320 nm-es alapterülettel rendelkező ingatlan 1082 nm-es, sík telken helyezkedik el. Mindkét épület a korábbi, svájci tulajdonos által magas precizitással megépített, szerkezetileg kifogástalan és időtálló állapotban várja új tulajdonosát. Az ingatlan elrendezése rendkívül praktikus, kiválóan alkalmas nagyobb családok, vagy akár több generáció együttélésére, illetve vállalkozás működtetésére is.
Az épületek falazata kívül-belül hőszigetelt (10 cm Nikecell, 38 cm tégla, 5 cm kőzetgyapot, hő-és párazáró fólia, 2,5 cm falemez). Fűtéséről és a melegvízről megbízható, karbantartott Vaillant gázkazán gondoskodik. Elektromos hálózat: 3*25A + H-Tarifa, 3*10A a klímákhoz. Rezsi: a víz-gáz-villanyra az elmúlt év átlagát tekintve összesen 30.000Ft/hó.
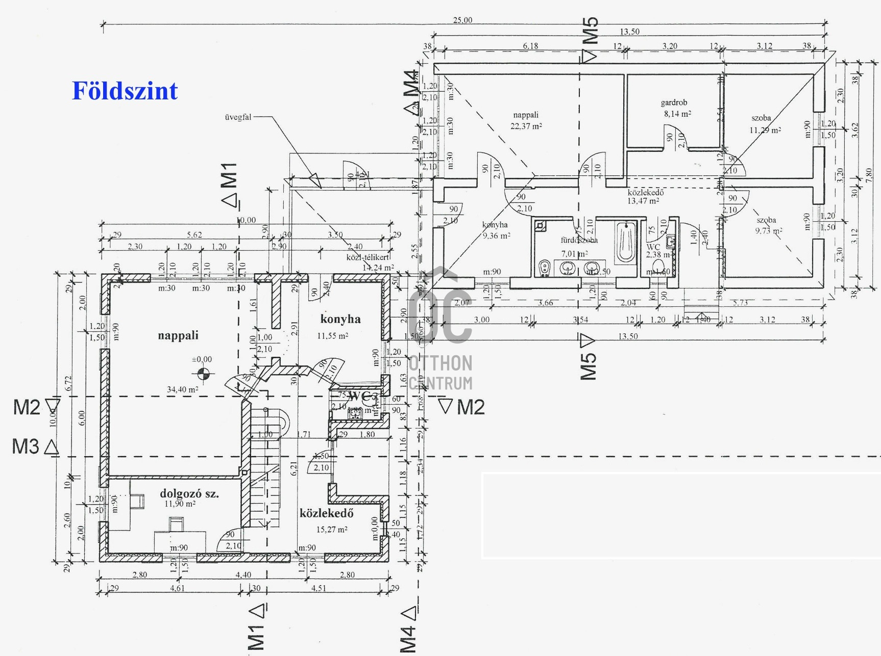
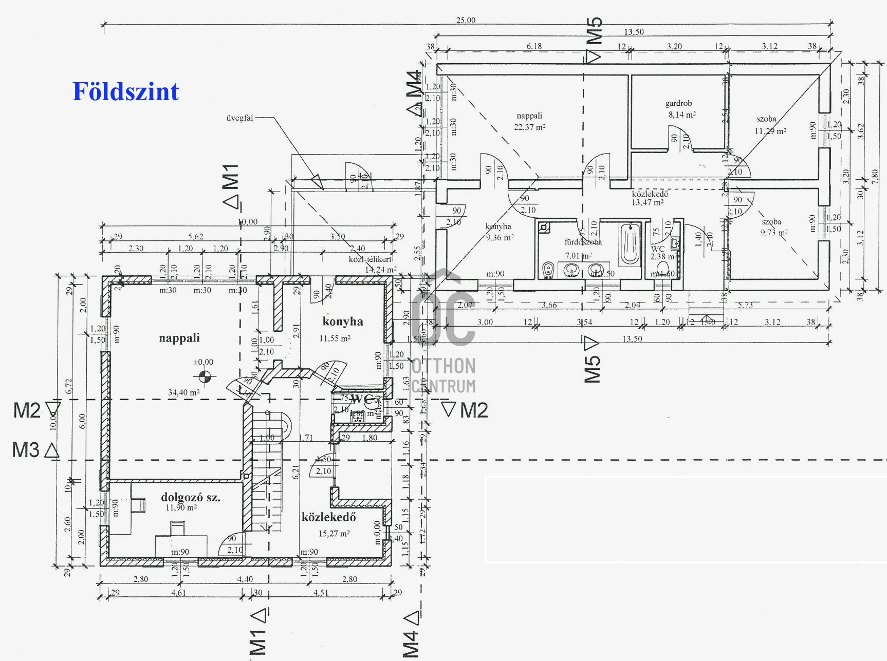
A 223 nm-es, 3 szintes épület jellemzői:
-Porotherm falazó elem betongerendás födémmel
-minőségi Bramac cseréptető
-kétrétegű üvegezett, fa nyílászárók
-a földszinten 80 nm lakótér (nappali, dolgozó- vagy hálószoba, külön konyha, wc kézmosóval, előszoba elosztású)
-az emelet nettó 63 nm (3 külön nyíló hálószoba, fürdőszoba).
A szuterén szint jellemzői:
-80 nm-en éléskamra, mosókonyha/gépészet, jelenleg műhely, szoba
-természetes fényt is kap és jól szellőztethető
-fűthető, klimatizált és körbejárható
A 97 nm-es, különálló épület jellemzői:
-külön bejárat
-fafödémes szerkezet
-minőségi Bramac cseréptető
-jól szigetelő, műanyag nyílászárók
-modern fűtési-hűtési rendszer
-közmű fogyasztás almérő szerint
-tágas, teraszra néző nappali
-padlófűtés, radiátor és korszerű klímák.
Kert, udvar:
-2 férőhelyes, téglaépítésű garázs (30 nm), távvezérelt kapuval
-15 nm-es tároló kerti szerszámoknak
-térkövezett kocsibeálló
-automata csepegtetőrendszer és öntöző almérővel ellátva
-ásott kút
-veteményes kert, fiatal gyümölcsfák bőséges terméssel.
Környék:
Csendes utcák, újszerű és karbantartott családi házak nagy kertekkel, egyre több fiatal családdal. Összetartó és jól szituált lakóközösség jellemzi a környéket.
M0 autópálya alig 20 km
Vásárlás:Pólus, Ázsia Center , Lidl kb. 5 percre van autóval
Rekreáció: uszoda, teniszpálya, edzőterem, Szilas-patak kerékpár út
Iskolák, óvodák
Az ingatlan rövid időn belül költözhető, tehermentes.
Átépítési igény esetén rendelkezésre áll egy díjnyertes tervező által készített koncepcióterv is.
Bővebb információ vagy megtekintés esetén várom hívását.
Az épületek falazata kívül-belül hőszigetelt (10 cm Nikecell, 38 cm tégla, 5 cm kőzetgyapot, hő-és párazáró fólia, 2,5 cm falemez). Fűtéséről és a melegvízről megbízható, karbantartott Vaillant gázkazán gondoskodik. Elektromos hálózat: 3*25A + H-Tarifa, 3*10A a klímákhoz. Rezsi: a víz-gáz-villanyra az elmúlt év átlagát tekintve összesen 30.000Ft/hó.
A 223 nm-es, 3 szintes épület jellemzői:
-Porotherm falazó elem betongerendás födémmel
-minőségi Bramac cseréptető
-kétrétegű üvegezett, fa nyílászárók
-a földszinten 80 nm lakótér (nappali, dolgozó- vagy hálószoba, külön konyha, wc kézmosóval, előszoba elosztású)
-az emelet nettó 63 nm (3 külön nyíló hálószoba, fürdőszoba).
A szuterén szint jellemzői:
-80 nm-en éléskamra, mosókonyha/gépészet, jelenleg műhely, szoba
-természetes fényt is kap és jól szellőztethető
-fűthető, klimatizált és körbejárható
A 97 nm-es, különálló épület jellemzői:
-külön bejárat
-fafödémes szerkezet
-minőségi Bramac cseréptető
-jól szigetelő, műanyag nyílászárók
-modern fűtési-hűtési rendszer
-közmű fogyasztás almérő szerint
-tágas, teraszra néző nappali
-padlófűtés, radiátor és korszerű klímák.
Kert, udvar:
-2 férőhelyes, téglaépítésű garázs (30 nm), távvezérelt kapuval
-15 nm-es tároló kerti szerszámoknak
-térkövezett kocsibeálló
-automata csepegtetőrendszer és öntöző almérővel ellátva
-ásott kút
-veteményes kert, fiatal gyümölcsfák bőséges terméssel.
Környék:
Csendes utcák, újszerű és karbantartott családi házak nagy kertekkel, egyre több fiatal családdal. Összetartó és jól szituált lakóközösség jellemzi a környéket.
M0 autópálya alig 20 km
Vásárlás:Pólus, Ázsia Center , Lidl kb. 5 percre van autóval
Rekreáció: uszoda, teniszpálya, edzőterem, Szilas-patak kerékpár út
Iskolák, óvodák
Az ingatlan rövid időn belül költözhető, tehermentes.
Átépítési igény esetén rendelkezésre áll egy díjnyertes tervező által készített koncepcióterv is.
Bővebb információ vagy megtekintés esetén várom hívását.
Registration Number
H506220
Property Details
Sales
for sale
Legal Status
used
Character
house
Construction Method
brick
Net Size
320 m²
Gross Size
320 m²
Plot Size
1,082 m²
Size of Terrace / Balcony
21.2 m²
Garden Size
650 m²
Heating
gas boiler
Ceiling Height
270 cm
Number of Levels Within the Property
3
Orientation
South-East
Condition
Good
Condition of Facade
Good
Basement
Independent
Neighborhood
quiet, green
Year of Construction
2000
Number of Bathrooms
2
Condominium Garden
yes
Garage
Included in the price
Garage Spaces
2
Water
Available
Gas
Available
Electricity
Available
Sewer
Available
Multi-Generational
yes
Storage
Independent
Rooms
living room
34.4 m²
kitchen
11.55 m²
toilet-washbasin
1.85 m²
study
11.9 m²
corridor
15.27 m²
bedroom
15.38 m²
bedroom
10.99 m²
bedroom
10.83 m²
bathroom-toilet
7.97 m²
corridor
15.62 m²
terrace
6.21 m²
living room
22.37 m²
kitchen
9.36 m²
bedroom
11.29 m²
bedroom
9.73 m²
bathroom
7 m²
toilet-washbasin
2.38 m²
wardrobe
8.14 m²
corridor
13.47 m²
other room
21.58 m²
utility room
31.92 m²
pantry
11.32 m²
boiler room
13.91 m²
garage
30 m²

Lueff Péter
Credit Expert