data_sheet.details.realestate.section.main.otthonstart_flag.label
For sale family house, H505306
Beregdaróc

13,500,000 Ft

35,000 €

  • 97m²
  • 3 Rooms
Exclusive Contract

Beregdarócon – 3 szobás ház eladó!

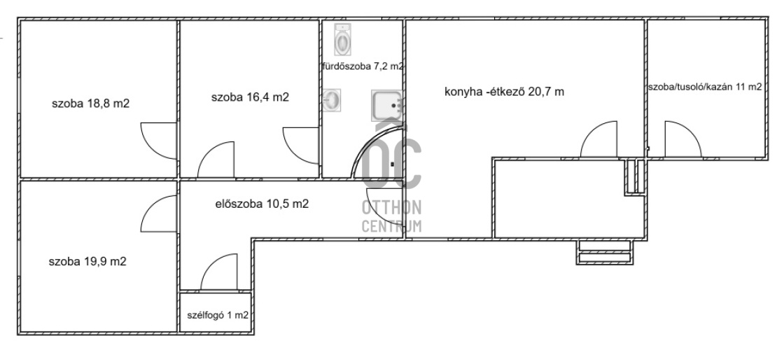
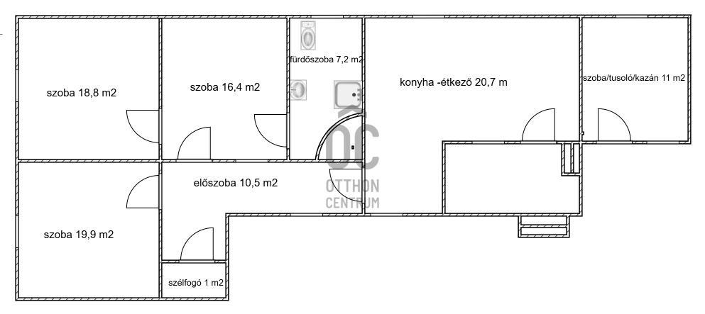
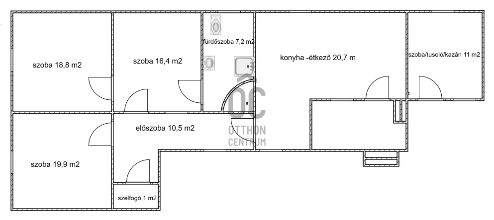
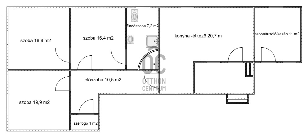
Beregdaróc csendes és barátságos településén kínálunk eladásra egy kivételes lehetőséget, amely ideális választás lehet családok számára. Az ingatlan nettó 97 nm alapterületű, három tágas szobával rendelkezik, így bőséges teret biztosít az otthonos életvitelhez. A fürdőszoba tusolóval , sarokkáddal rendelkezik, amely minden igényt kielégít. A ház állapota jó, így azonnal költözhető, a fűtésről gázkonvektor illetve vegyestüzelésű kazán gondoskodik, amely gazdaságos megoldást jelent a téli hónapokban. A nagy udvar ideális helyszín lehet gyermekek számára a játékra, vagy akár kertészkedésre is. Itt még hosszan lenyúló melléképületek találhatóak , mögötte diófákkal beültetve.
A ház elhelyezkedése kiváló, hiszen a környék csendes, biztonságos, így a nyugodt életvitel kedvelőinek is ideális választás. Beregdaróc közlekedési lehetőségei is kedvezőek, a település jól megközelíthető autóval, de a tömegközlekedés is biztosított, így a közeli városok könnyen elérhetők.
Kérdés esetén hívjon!

Registration Number

H505306

Property Details

Sales
for sale
Legal Status
used
Character
house
Construction Method
mixed masonry
Net Size
97 m²
Gross Size
116 m²
Plot Size
2,892 m²
Heating
gas convector
Ceiling Height
270 cm
Orientation
North
Condition
Good
Condition of Facade
Good
Neighborhood
quiet, good transport
Year of Construction
1970
Number of Bathrooms
1
Water
Available
Gas
Available
Electricity
Available

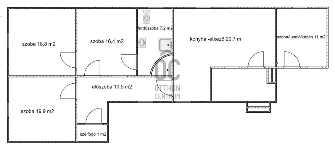
Rooms

room
18.8 m²
room
19.9 m²
room
16.4 m²
entryway
10.5 m²
bathroom-toilet
7.2 m²
entryway
2.2 m²
open-plan kitchen and dining room
207 m²

From Our Office Listings - Vásárosnamény

for sale family house

Index image
data_sheet.details.realestate.section.main.otthonstart_flag.label
17

for sale family house

Index image
data_sheet.details.realestate.section.main.otthonstart_flag.label
23

for sale family house

Index image
data_sheet.details.realestate.section.main.otthonstart_flag.label
30

for sale family house

Index image
data_sheet.details.realestate.section.main.otthonstart_flag.label
13

for sale family house

Index image
data_sheet.details.realestate.section.main.otthonstart_flag.label
11