data_sheet.details.realestate.section.main.otthonstart_flag.label
For sale apartment,
H504242
Hévíz
89,900,000 Ft
231,000 €
- 76m²
- 3 Rooms
- 1st floor













KIEMELT MEGBÍZÁS AZ OTTHON CENTRUM KÍNÁLATÁBAN!
HÉVÍZ KEDVELT UTCÁJÁBAN, ÚJSZERŰ LAKÁS ELADÓ!
Az ingatlan főbb jellemzői:
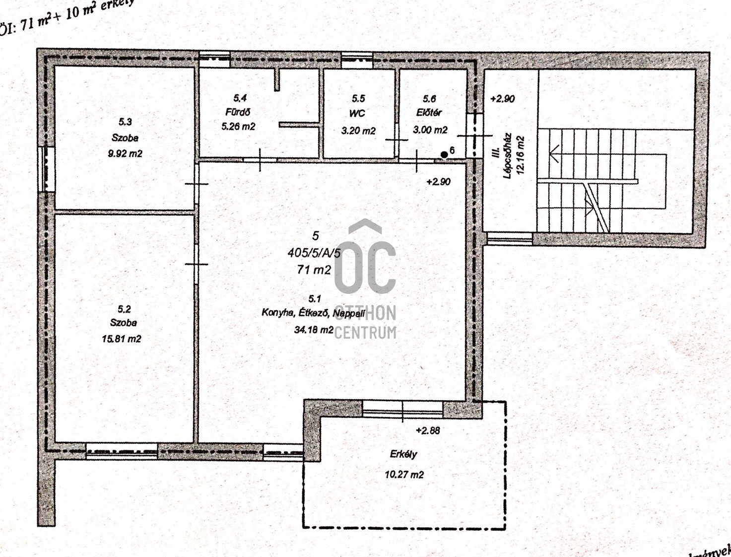
-lakófelület 71nm, terasz 10nm
-a társasház 2021ben épült
-fűtés elektromos fűtőszőnyeggel megoldott
-a lakás az első emeleten található
-a teraszról panoráma tárul elénk
-kiváló belső elosztás
-különleges födém kialakítás növeli a teret
-a lakáshoz egy parkoló tartozik
-a ház egy zsák utcában található, kellemes környezetben
Amennyiben felkeltette érdeklődését és további kérdés merül fel, hívjon vagy írjon bizalommal!
HÉVÍZ KEDVELT UTCÁJÁBAN, ÚJSZERŰ LAKÁS ELADÓ!
Az ingatlan főbb jellemzői:
-lakófelület 71nm, terasz 10nm
-a társasház 2021ben épült
-fűtés elektromos fűtőszőnyeggel megoldott
-a lakás az első emeleten található
-a teraszról panoráma tárul elénk
-kiváló belső elosztás
-különleges födém kialakítás növeli a teret
-a lakáshoz egy parkoló tartozik
-a ház egy zsák utcában található, kellemes környezetben
Amennyiben felkeltette érdeklődését és további kérdés merül fel, hívjon vagy írjon bizalommal!
Registration Number
H504242
Property Details
Sales
for sale
Legal Status
used
Character
apartment
Construction Method
brick
Net Size
76 m²
Gross Size
81 m²
Size of Terrace / Balcony
10 m²
Heating
other
Ceiling Height
260 cm
Number of Levels Within the Property
1
Orientation
South-West
Staircase Type
enclosed staircase
Condition
Excellent
Condition of Facade
Excellent
Condition of Staircase
Excellent
Year of Construction
2021
Number of Bathrooms
1
Position
courtyard-facing
Water
Available
Gas
On the street
Electricity
Available
Sewer
Available
Rooms
open-plan kitchen and living room
1 m²
room
1 m²
room
1 m²
bathroom
1 m²
toilet
1 m²