245,000,000 Ft
642,000 €
- 80m²
- 3 Rooms
- 2nd floor
5.kerület Lipótvárosban, a Hild tér szomszédságában 3 szobás, ERKÉLYES LUXUSLAKÁS eladó!
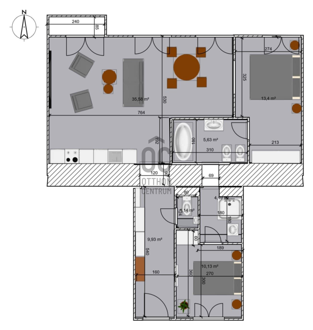
Megvételre kínálok az V. kerület Lipótvárosban, a Hild tér szomszédságában, pár perc sétára a Lánchídtól, 80 m2-es nappali + 2 hálószobás, duplakomfortos, 2. emeleti, erkélyes luxuslakás eladó. Az ingatlan prémium minőségű felújításon esett át, melynek során a legkiválóbb minőségű anyagokat használták fel, a lakás minden részletében az eleganciát tükrözi.
Az ingatlan amerikai konyhás nappalival rendelkezik, az erkély illetve a fő hálószoba a csendes Mérleg utcára néz, míg a második hálószoba a nyugodt belső udvarra nyílik. Mindkét hálószobához külön fürdőszoba tartozik, a fő hálószobához egy elegáns káddal, WC-vel és bidével felszerelt fürdő kapcsolódik, míg a második hálószobához egy modern zuhanyzós. A lakásban külön vendég WC is található. Az ingatlan prémium minőségű bútorokkal és gépekkel együtt eladó, így az új tulajdonos azonnal beköltözhet egy teljesen felszerelt, exkluzív otthonba. A teljes körű felújítás során új fa nyílászárók lettek beépítve, valamint minden víz- és villanyvezetékek cserélve lett. Designer csillárok, beépített szekrények, minőségi szaniterek és prémium burkolatok kerültek beépítésre. A 4 méteres belmagasság és a chevron mintás tölgyfa parketta különleges, elegáns hangulatot kölcsönöz az otthonnak. A konyha teljesen gépesített, AEG márkájú készülékekkel felszerelt: mosogatógép, hűtő fagyasztóval, sütő, főzőlap, páraelszívó és mosógép is rendelkezésre áll. Az ingatlan kényelmét három légkondicionáló és automata sötétítők biztosítják. A fűtés házközponti, a közös költség víz nélküli díja 33.104 Ft havonta.
A társasház Hild József híres magyar építész egyik remekműve. Az épület az 1800-as években épült, és azóta számos felújításon esett át, megőrizve eredeti szépségét és eleganciáját. A ház sarokház, két bejárata is van, két lépcsőházból is megközelíthető!
Ez a lakás nem csak otthonként, hanem befektetésként is tökéletes választás azok számára, akik a belvárosi luxust és kényelmet keresik. Az ingatlan minden részlete a legmagasabb színvonalat képviseli, így garantáltan megfelel a legigényesebb vásárlók elvárásainak is.
Az ingatlan amerikai konyhás nappalival rendelkezik, az erkély illetve a fő hálószoba a csendes Mérleg utcára néz, míg a második hálószoba a nyugodt belső udvarra nyílik. Mindkét hálószobához külön fürdőszoba tartozik, a fő hálószobához egy elegáns káddal, WC-vel és bidével felszerelt fürdő kapcsolódik, míg a második hálószobához egy modern zuhanyzós. A lakásban külön vendég WC is található. Az ingatlan prémium minőségű bútorokkal és gépekkel együtt eladó, így az új tulajdonos azonnal beköltözhet egy teljesen felszerelt, exkluzív otthonba. A teljes körű felújítás során új fa nyílászárók lettek beépítve, valamint minden víz- és villanyvezetékek cserélve lett. Designer csillárok, beépített szekrények, minőségi szaniterek és prémium burkolatok kerültek beépítésre. A 4 méteres belmagasság és a chevron mintás tölgyfa parketta különleges, elegáns hangulatot kölcsönöz az otthonnak. A konyha teljesen gépesített, AEG márkájú készülékekkel felszerelt: mosogatógép, hűtő fagyasztóval, sütő, főzőlap, páraelszívó és mosógép is rendelkezésre áll. Az ingatlan kényelmét három légkondicionáló és automata sötétítők biztosítják. A fűtés házközponti, a közös költség víz nélküli díja 33.104 Ft havonta.
A társasház Hild József híres magyar építész egyik remekműve. Az épület az 1800-as években épült, és azóta számos felújításon esett át, megőrizve eredeti szépségét és eleganciáját. A ház sarokház, két bejárata is van, két lépcsőházból is megközelíthető!
Ez a lakás nem csak otthonként, hanem befektetésként is tökéletes választás azok számára, akik a belvárosi luxust és kényelmet keresik. Az ingatlan minden részlete a legmagasabb színvonalat képviseli, így garantáltan megfelel a legigényesebb vásárlók elvárásainak is.
Registration Number
H504072
Property Details
Sales
for sale
Legal Status
used
Character
apartment
Construction Method
brick
Net Size
80 m²
Gross Size
80 m²
Size of Terrace / Balcony
3 m²
Heating
unmetered central heating
Ceiling Height
400 cm
Number of Levels Within the Property
1
Orientation
North-West
Staircase Type
suspended corridor
Condition
Excellent
Condition of Facade
Good
Condition of Staircase
Good
Neighborhood
quiet, good transport, central
Year of Construction
1890
Number of Bathrooms
2
Position
street-facing
Common Costs
33104
Water
Available
Electricity
Available
Sewer
Available
Elevator
available
Rooms
entryway
9.93 m²
bedroom
10.13 m²
bathroom-toilet
4.19 m²
bedroom
13.4 m²
bathroom-toilet
5.63 m²
open-plan kitchen and living room
35.58 m²
balcony
3 m²
Gerber Dorottya
Credit Expert