data_sheet.details.realestate.section.main.otthonstart_flag.label
For sale family house,
H502329
Majosháza
129,000,000 Ft
329,000 €
- 146m²
- 6 Rooms































Kétgenerációs családi ház eladó Majosházán – Budapesttől csupán 25 percre!
Felújított, 6 szobás otthon nagy telekkel – választható burkolatokkal, befejezési lehetőséggel!
Kivételes lehetőség Majosháza frekventált, mégis csendes részén!
Ez a kétgenerációs családi ház ideális választás összeköltözőknek, nagycsaládosoknak, vagy akár befektetésre is!
Ingatlan főbb jellemzői:
Telek: 1.262 m² – parkosításra, kertészkedésre, vagy további építkezésre is kiváló
Lakótér: 147 m² – két külön bejáratú szinttel, akár két lakásként is használható
Összesen:
6 szoba |2 konyha + étkező | 4 fürdőszoba | 4 WC
külső tároló, terasz, előszoba
Elosztás:
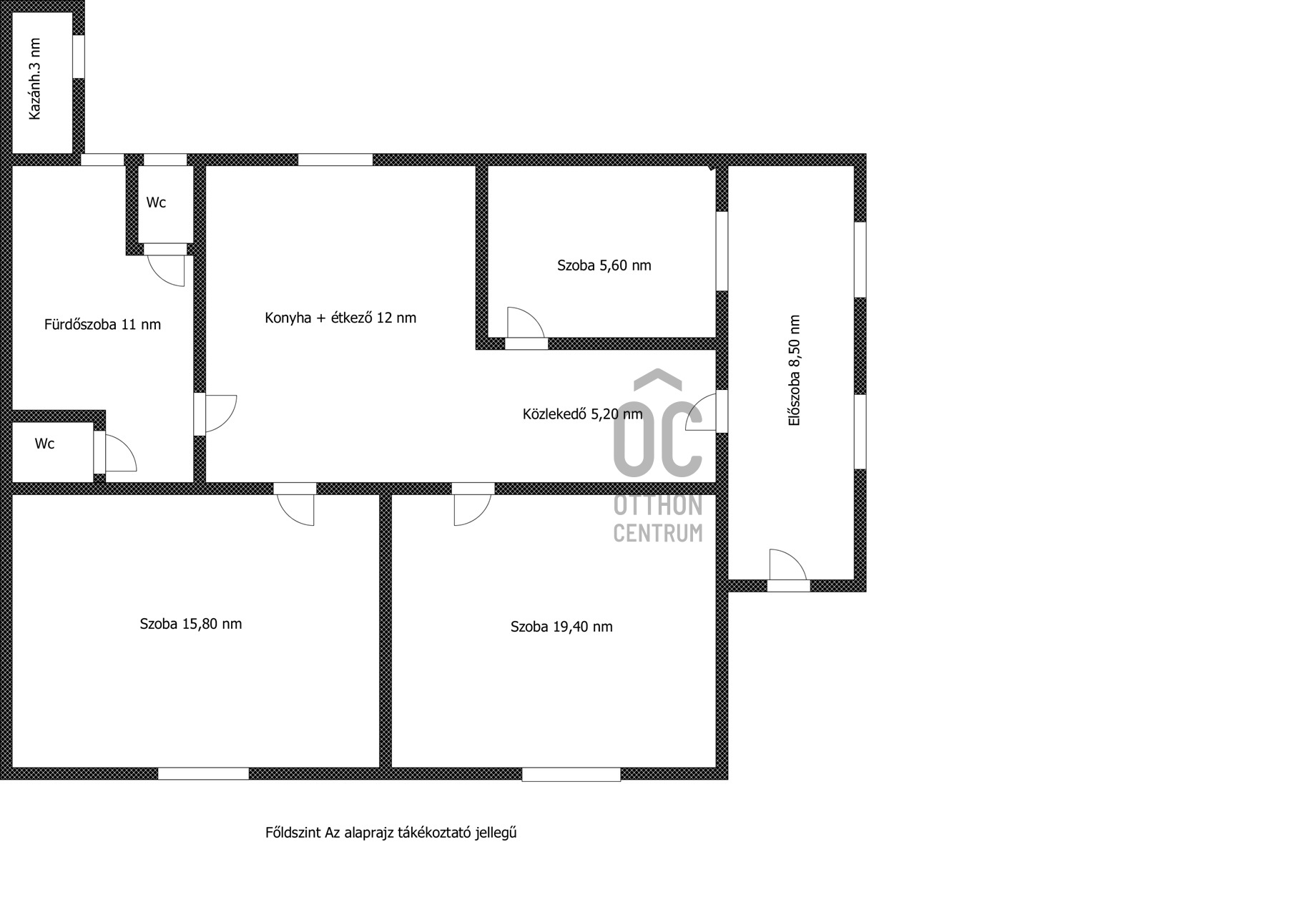
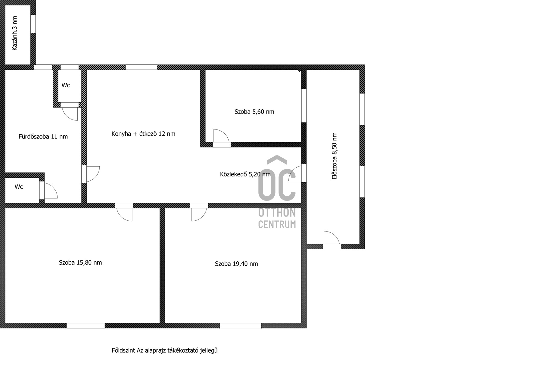
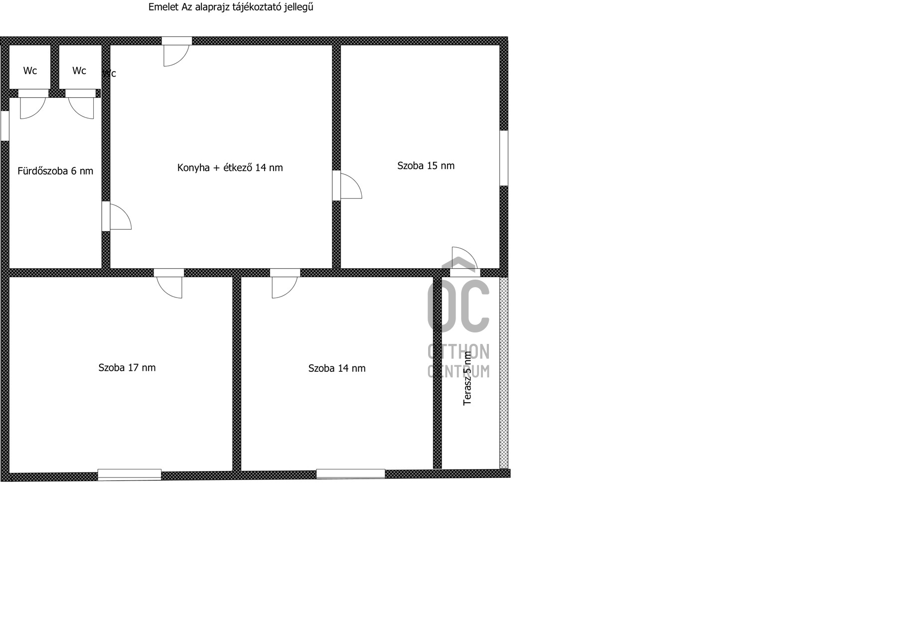
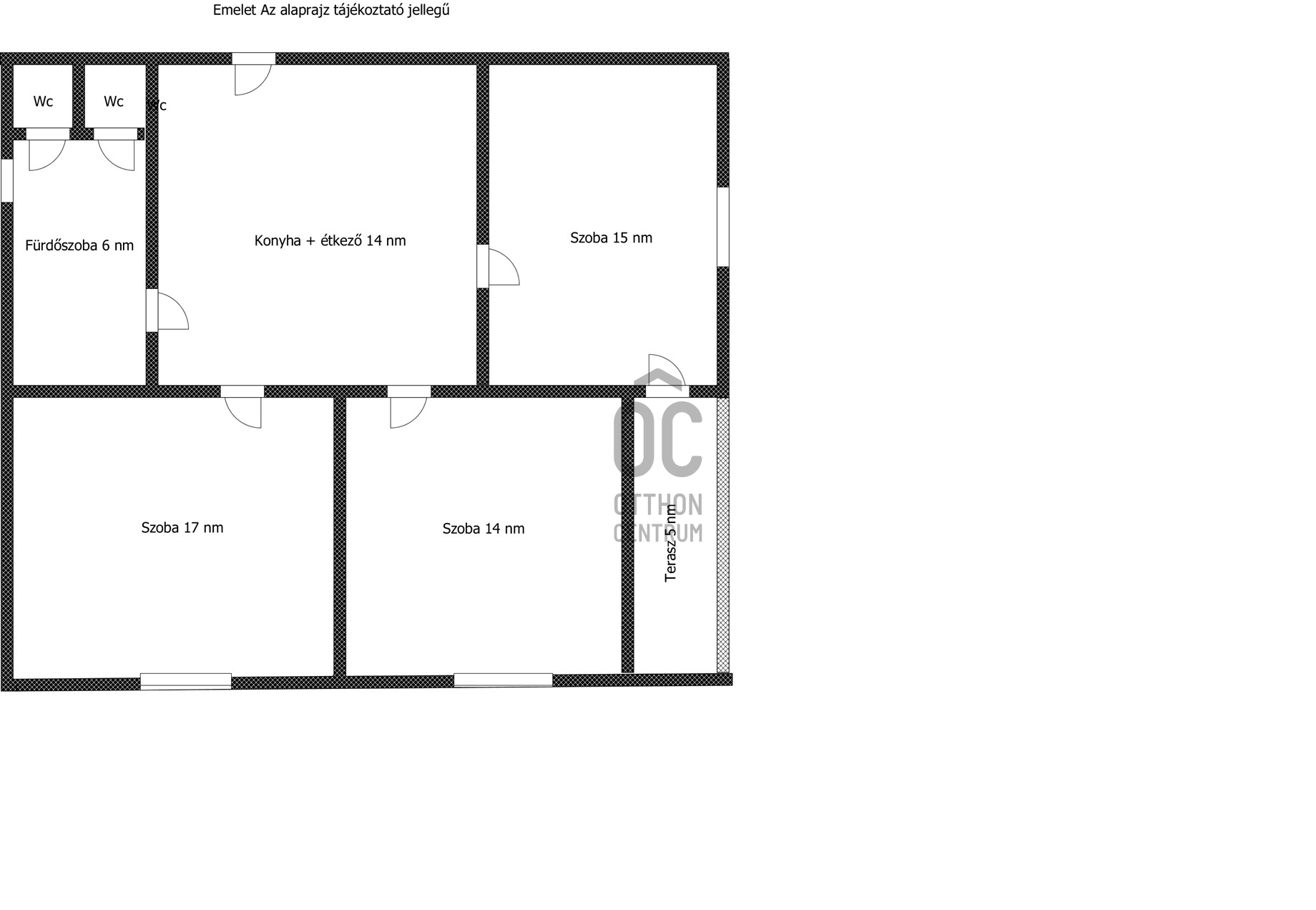
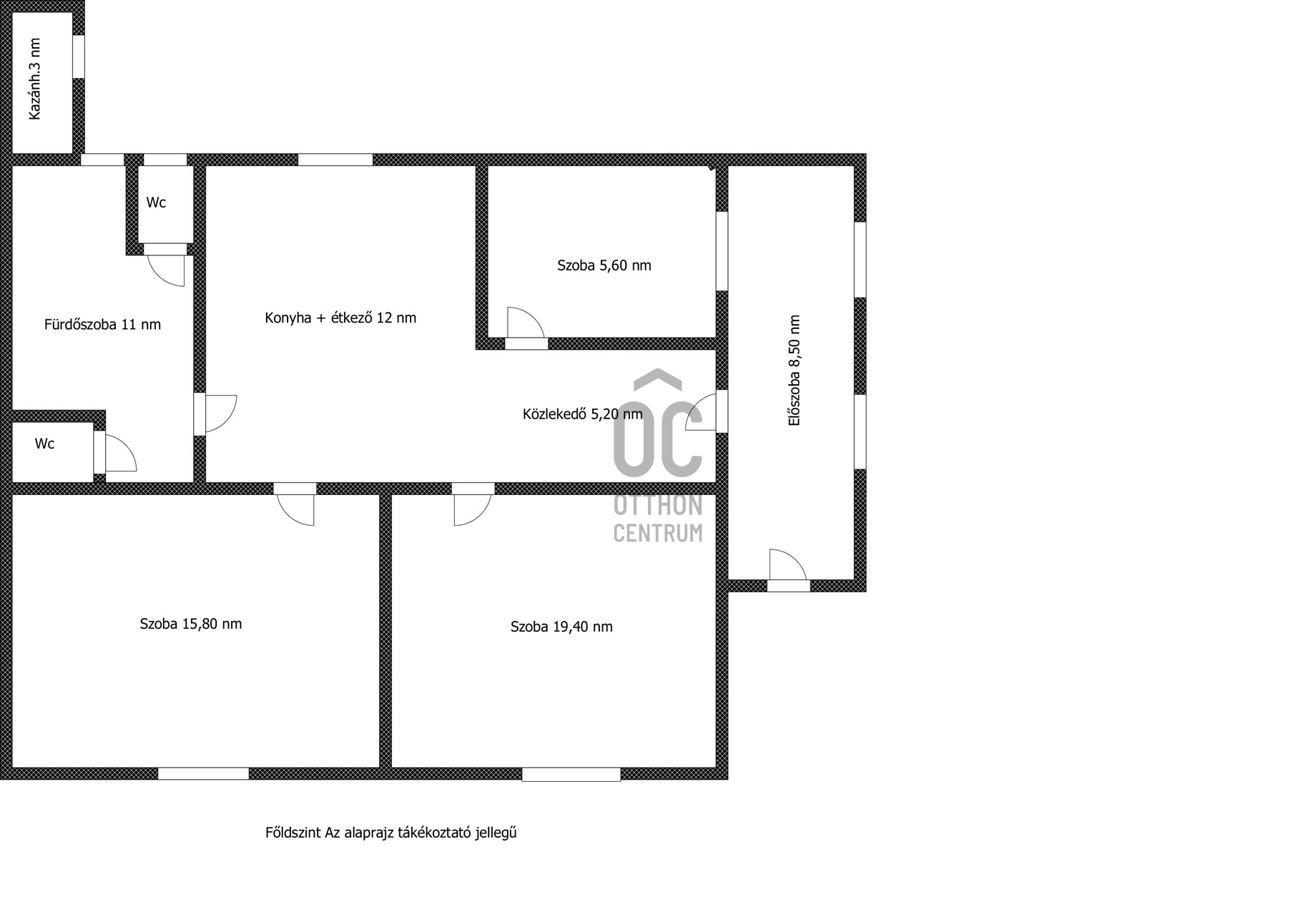
Földszint (80,6 m²):
3 szoba
konyha + étkező
2 tusolós fürdőszoba, 2 WC
előszoba + külső tároló
padlófűtés + hűtő-fűtő klíma
H-tarifás villanyóra
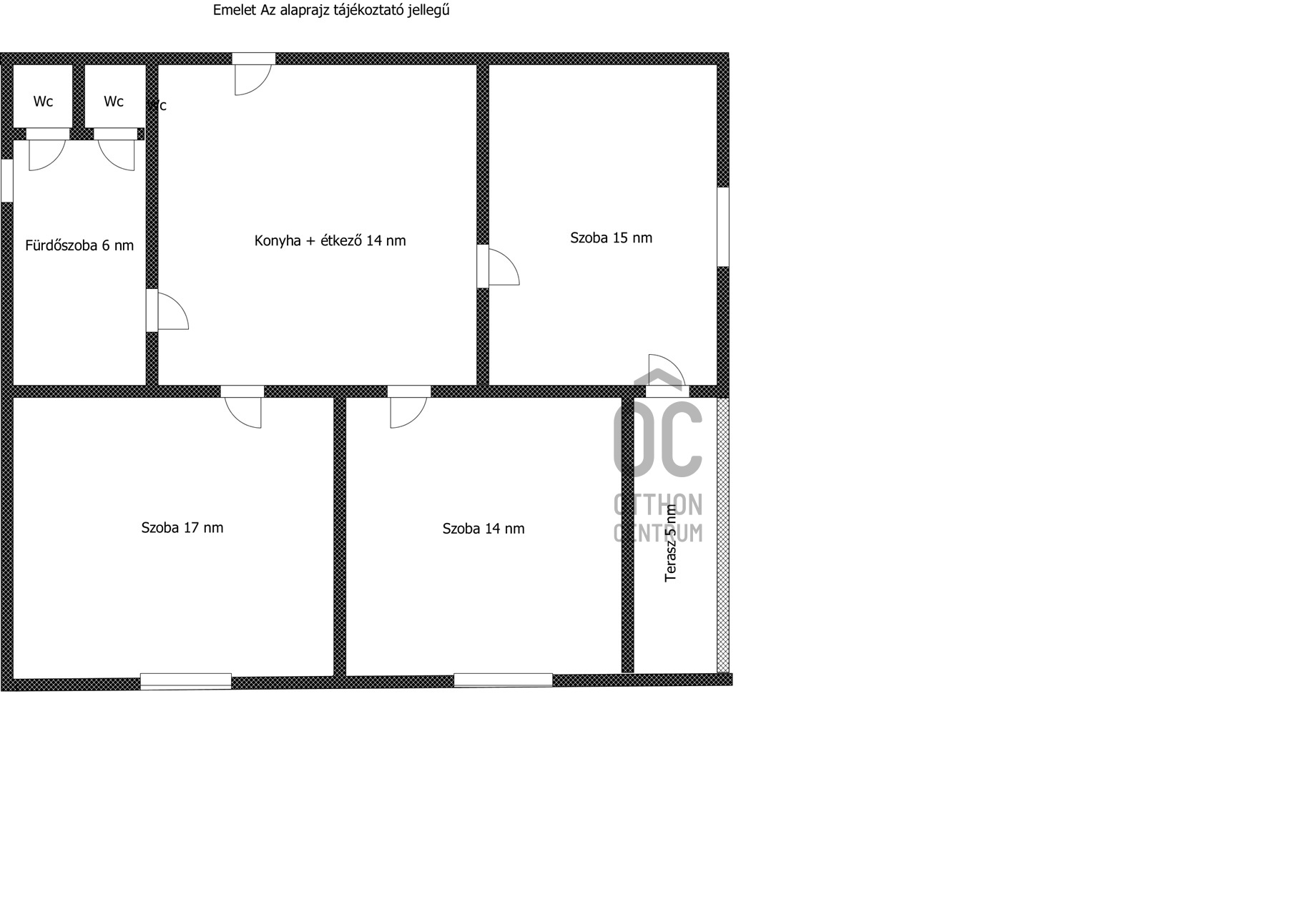
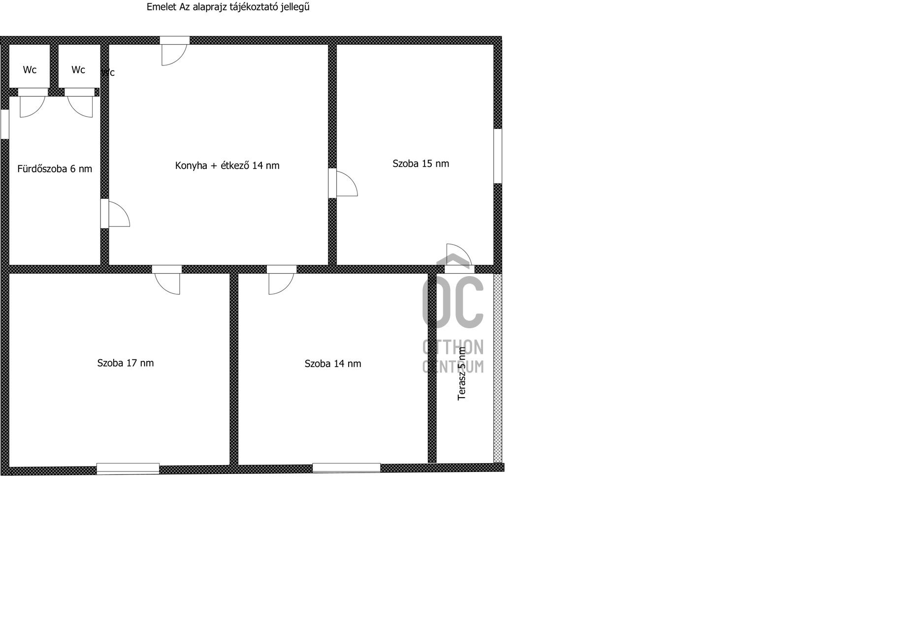
Emelet (66 m²):
külön bejárattal!
3 szoba
konyha + étkező
2 tusolós fürdőszoba, 2 WC
terasz
radiátoros fűtés + klíma
Felújítás és kivitelezés:
Az ingatlan teljes körű felújításon esett át – befejező munkák jelenleg is zajlanak
Vételár a jelenlegi készültségre értendő – tartalmazza a kazánt is
Burkolatok, szaniterek még választhatók az új tulajdonos ízlése szerint!
Kulcsrakész kivitelezés lehetséges – egyeztetés alapján, vételár módosul
Kert és környezet:
Nagyméretű kert – alkalmas akár új építésre vagy bővítésre is
Csendes, családias környék
Majosháza gyorsan fejlődő település – új házak, infrastruktúra, szolgáltatások
A közelben: óvoda, bölcsőde, iskola, üzletek
Dunapart közelsége – természet, kikapcsolódás pár percnyire!
Támogatás és finanszírozás:
Családi támogatás (CSOK Plusz) igénybe vehető
Teljes körű, díjmentes hitelügyintézéssel segítjük vásárlóinkat
Ne maradjon le erről a sokoldalú lehetőségről!
Hívjon most, tekintse meg az ingatlant, és alakítsa saját ízlése szerint!
Tágas, napfényes, kétgenerációs – és még mindig testre szabható!
Felújított, 6 szobás otthon nagy telekkel – választható burkolatokkal, befejezési lehetőséggel!
Kivételes lehetőség Majosháza frekventált, mégis csendes részén!
Ez a kétgenerációs családi ház ideális választás összeköltözőknek, nagycsaládosoknak, vagy akár befektetésre is!
Ingatlan főbb jellemzői:
Telek: 1.262 m² – parkosításra, kertészkedésre, vagy további építkezésre is kiváló
Lakótér: 147 m² – két külön bejáratú szinttel, akár két lakásként is használható
Összesen:
6 szoba |2 konyha + étkező | 4 fürdőszoba | 4 WC
külső tároló, terasz, előszoba
Elosztás:
Földszint (80,6 m²):
3 szoba
konyha + étkező
2 tusolós fürdőszoba, 2 WC
előszoba + külső tároló
padlófűtés + hűtő-fűtő klíma
H-tarifás villanyóra
Emelet (66 m²):
külön bejárattal!
3 szoba
konyha + étkező
2 tusolós fürdőszoba, 2 WC
terasz
radiátoros fűtés + klíma
Felújítás és kivitelezés:
Az ingatlan teljes körű felújításon esett át – befejező munkák jelenleg is zajlanak
Vételár a jelenlegi készültségre értendő – tartalmazza a kazánt is
Burkolatok, szaniterek még választhatók az új tulajdonos ízlése szerint!
Kulcsrakész kivitelezés lehetséges – egyeztetés alapján, vételár módosul
Kert és környezet:
Nagyméretű kert – alkalmas akár új építésre vagy bővítésre is
Csendes, családias környék
Majosháza gyorsan fejlődő település – új házak, infrastruktúra, szolgáltatások
A közelben: óvoda, bölcsőde, iskola, üzletek
Dunapart közelsége – természet, kikapcsolódás pár percnyire!
Támogatás és finanszírozás:
Családi támogatás (CSOK Plusz) igénybe vehető
Teljes körű, díjmentes hitelügyintézéssel segítjük vásárlóinkat
Ne maradjon le erről a sokoldalú lehetőségről!
Hívjon most, tekintse meg az ingatlant, és alakítsa saját ízlése szerint!
Tágas, napfényes, kétgenerációs – és még mindig testre szabható!
Registration Number
H502329
Property Details
Sales
for sale
Legal Status
used
Character
house
Construction Method
mixed masonry
Net Size
146 m²
Gross Size
200 m²
Plot Size
1,262 m²
Heating
gas boiler
Ceiling Height
270 cm
Number of Levels Within the Property
2
Orientation
South-East
Condition
Good
Condition of Facade
Good
Basement
Independent
Neighborhood
quiet, green
Year of Construction
1990
Number of Bathrooms
2
Water
Available
Gas
Available
Electricity
Available
Sewer
Available
Multi-Generational
yes
Storage
Independent
Distance to Waterfront
500 meters
Rooms
entryway
8.5 m²
corridor
5.2 m²
room
5.6 m²
open-plan kitchen and dining room
12 m²
bathroom-toilet
11 m²
room
15.8 m²
room
19.5 m²
storage
3 m²
open-plan kitchen and dining room
14 m²
room
15 m²
room
14 m²
room
17 m²
bathroom-toilet
6 m²
terrace
5 m²

Joó Krisztina
Credit Expert