253,800,000 Ft
653,000 €
- 141m²
- 4 Rooms
- 2nd floor





















Stílus, lokáció, befektetés – egy lakás, amely életérzést ad!
Fektessen be a jövőbe egy exkluzív belvárosi lakás megvásárlásával, amely nem csupán egy ingatlan, hanem egy életstílus megtestesítője is!
A Belső Erzsébetváros szívében, a híres New York Kávéház közvetlen közelében található ez a frissen felújított, 141 nm-es, kiváló állapotú lakás, amely ideális választás lehet azok számára, akik értékelik a prémium kivitelezést és a modern kényelmet.
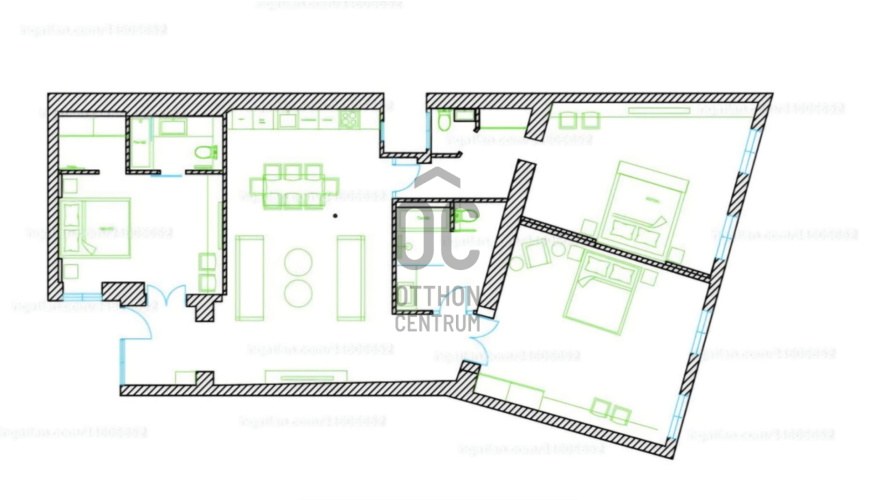
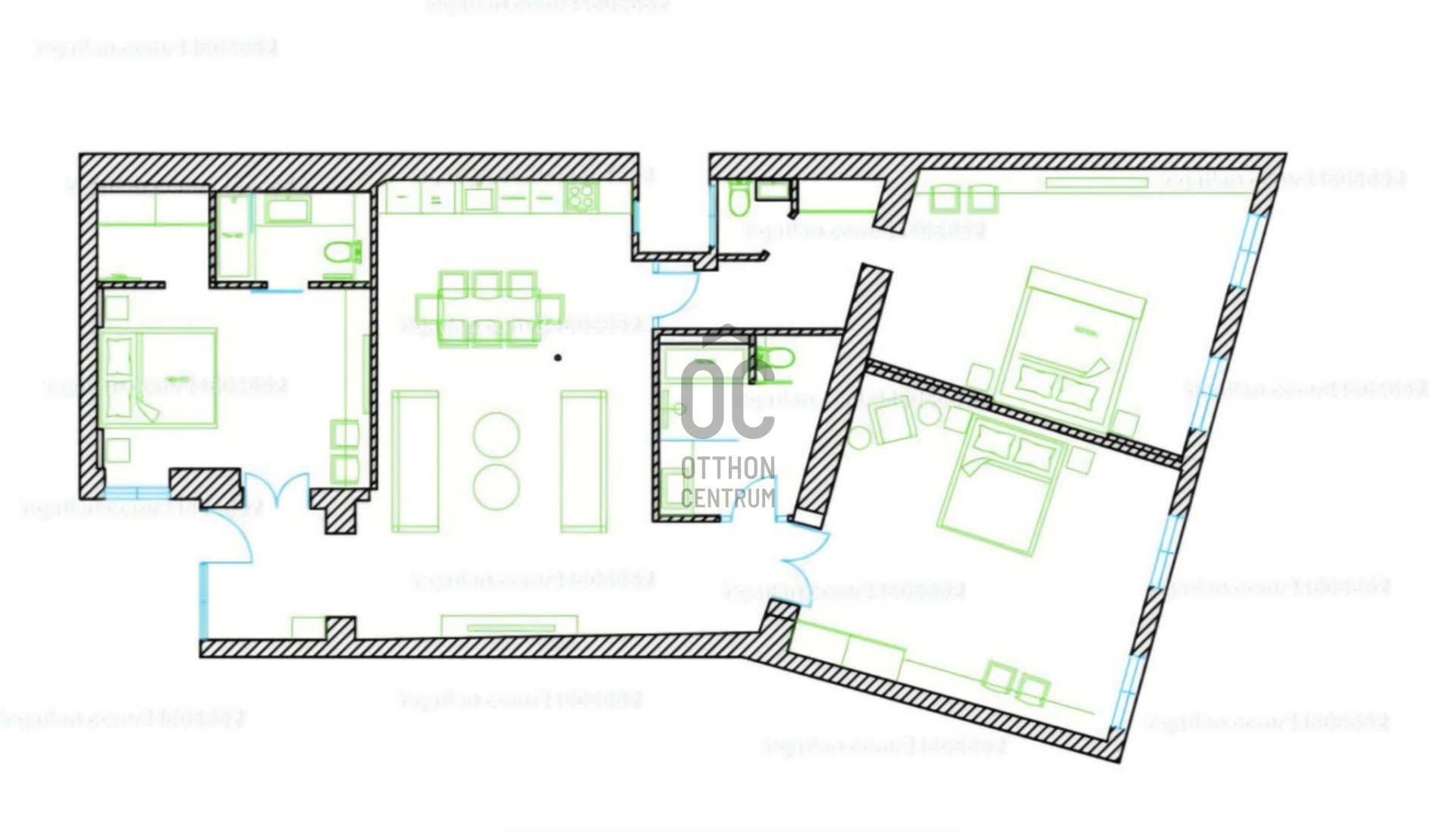
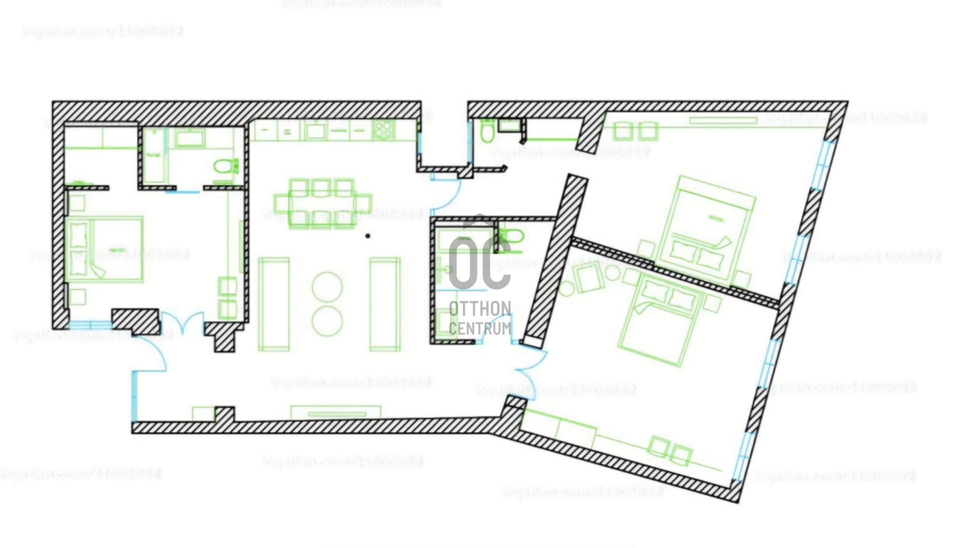
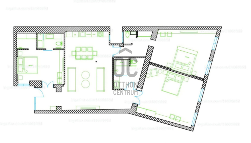
A lakásban négy tágas szoba található, melyek között a nappali is helyet kapott, ahol a beépített bútorok és szekrények eleganciát és praktikusságot kölcsönöznek a térnek.
Az amerikai konyha a családi és baráti összejövetelek tökéletes színhelyévé válik, míg a hangulatos világítás varázslatos atmoszférát teremt.
A két fürdőszoba és a különálló WC kényelmes megoldást biztosít nagyobb családok vagy több lakó számára is.
A teljes berendezés és vadonatúj bútorzat az ár részét képezi, így az új tulajdonosnak már csak a személyes tárgyait kell hoznia.
A lakás elhelyezkedése páratlan, a környék ellátottsága kiváló, mindössze néhány lépésre találhatóak a legfontosabb szolgáltatások, boltok és éttermek, kávézók.
A közlekedési csomópont közelsége miatt a kitűnő közlekedés mindenki számára biztosítja a gyors és kényelmes eljutást a város bármely pontjára. A tömegközlekedési lehetőségek széles választéka, beleértve a buszokat, villamosokat és metrókat, megkönnyíti a mindennapokat, így a lakás ideális választás lehet azok számára is, akik aktív városi életet élnek.
A lakás tehermentes, így azonnal birtokba vehető, és az új tulajdonosok számára azonnali lehetőséget kínál a bérbeadásra vagy a saját otthonként való használatra.
Ne hagyja ki ezt a páratlan lehetőséget, hogy egy világos, tágas és modern belvárosi lakás tulajdonosa legyen, amely minden igényt kielégít.
Ha bármilyen kérdése van az ingatlannal kapcsolatban, vagy szeretné megtekinteni a lakást, bizalommal kereshet minket.
Az Ön elégedettsége a legfontosabb számunkra, és örömmel segítünk minden információval, amire szüksége lehet.
Ismerje meg közelebbről ezt a kivételes ingatlant, és tapasztalja meg a belvárosi életstílus előnyeit!
A Belső Erzsébetváros szívében, a híres New York Kávéház közvetlen közelében található ez a frissen felújított, 141 nm-es, kiváló állapotú lakás, amely ideális választás lehet azok számára, akik értékelik a prémium kivitelezést és a modern kényelmet.
A lakásban négy tágas szoba található, melyek között a nappali is helyet kapott, ahol a beépített bútorok és szekrények eleganciát és praktikusságot kölcsönöznek a térnek.
Az amerikai konyha a családi és baráti összejövetelek tökéletes színhelyévé válik, míg a hangulatos világítás varázslatos atmoszférát teremt.
A két fürdőszoba és a különálló WC kényelmes megoldást biztosít nagyobb családok vagy több lakó számára is.
A teljes berendezés és vadonatúj bútorzat az ár részét képezi, így az új tulajdonosnak már csak a személyes tárgyait kell hoznia.
A lakás elhelyezkedése páratlan, a környék ellátottsága kiváló, mindössze néhány lépésre találhatóak a legfontosabb szolgáltatások, boltok és éttermek, kávézók.
A közlekedési csomópont közelsége miatt a kitűnő közlekedés mindenki számára biztosítja a gyors és kényelmes eljutást a város bármely pontjára. A tömegközlekedési lehetőségek széles választéka, beleértve a buszokat, villamosokat és metrókat, megkönnyíti a mindennapokat, így a lakás ideális választás lehet azok számára is, akik aktív városi életet élnek.
A lakás tehermentes, így azonnal birtokba vehető, és az új tulajdonosok számára azonnali lehetőséget kínál a bérbeadásra vagy a saját otthonként való használatra.
Ne hagyja ki ezt a páratlan lehetőséget, hogy egy világos, tágas és modern belvárosi lakás tulajdonosa legyen, amely minden igényt kielégít.
Ha bármilyen kérdése van az ingatlannal kapcsolatban, vagy szeretné megtekinteni a lakást, bizalommal kereshet minket.
Az Ön elégedettsége a legfontosabb számunkra, és örömmel segítünk minden információval, amire szüksége lehet.
Ismerje meg közelebbről ezt a kivételes ingatlant, és tapasztalja meg a belvárosi életstílus előnyeit!
Registration Number
H501420
Property Details
Sales
for sale
Legal Status
used
Character
apartment
Construction Method
brick
Net Size
141 m²
Gross Size
141 m²
Heating
other
Ceiling Height
360 cm
Orientation
North-East
Staircase Type
circular corridor
Condition
Excellent
Condition of Facade
Good
Condition of Staircase
Good
Neighborhood
good transport, central
Year of Construction
1886
Number of Bathrooms
2
Position
street-facing
Common Costs
23970
Water
Available
Gas
Available
Electricity
Available
Sewer
Available
Elevator
available
Rooms
open-plan kitchen and living room
38 m²
bedroom
26 m²
bedroom
30 m²
bedroom
20 m²
bathroom-toilet
6 m²
bathroom-toilet
8 m²
toilet-washbasin
4 m²
entryway
5 m²
wardrobe
3 m²