data_sheet.details.realestate.section.main.otthonstart_flag.label
For sale family house,
H492348
Zalakaros
79,900,000 Ft
204,000 €
- 182m²
- 8 Rooms











































A family house with 4 separate apartments for sale in Zalakaros.
Zalakaros has something that fewer cities possess: one of the best thermal waters in Europe, a spa that offers relaxation and leisure to guests of all generations, and a wonderful small-town atmosphere. The diversity of nature, the forests, the vineyards, and the valley of Lake Balaton provide an unparalleled environment, clean air, and opportunities for hiking and sports for visitors. In the Zalakaros area, attractions await those who arrive, such as the natural and historical values of Lake Balaton, the sights of Zalavár, the Cyril and Methodius monument, the Bison Reserve in Kápolnapuszta, and Kányavári Island. Nearby Nagykanizsa and Keszthely offer further recreational and cultural opportunities for visitors! In this spa town, I am offering for sale a family house consisting of four separate apartments. Property features: - Located on a 933 m² plot. - All utilities are connected. - Heating and hot water supply are provided by a gas boiler, with water storage capacity. - Built in the 2000s, made of brick, with a tiled roof. - The windows are made of plastic. - In excellent condition, having hosted guests as recently as last year. - Two apartments have been created on both the ground floor and the first floor. - Each unit includes a living room + dining area + kitchen, bedroom, and bathroom. - Thus, it has 8 rooms and 4 bathrooms. - Each unit is easily accessible separately from the staircase. - The property is perfect for business purposes, as it has recently hosted guests. Our office provides a full range of services to our clients seeking assistance. We offer professional advice, free assistance with home purchase subsidies (CSOK) and loan processing, preparation of energy certificates, and support with a lawyer at favorable rates!
Registration Number
H492348
Property Details
Sales
for sale
Legal Status
used
Character
house
Construction Method
brick
Net Size
182 m²
Gross Size
223 m²
Plot Size
933 m²
Size of Terrace / Balcony
31 m²
Heating
Gas circulator
Ceiling Height
265 cm
Number of Levels Within the Property
1
Orientation
South
Condition
Excellent
Condition of Facade
Excellent
Neighborhood
quiet, green
Year of Construction
2000
Number of Bathrooms
4
Water
Available
Gas
Available
Electricity
Available
Sewer
Available
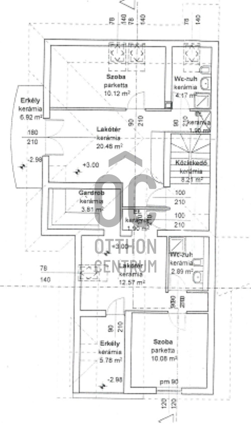
Rooms
entryway
8.04 m²
pantry
3.38 m²
open-plan kitchen and dining room
14.37 m²
bathroom-toilet
3.91 m²
entryway
2.86 m²
room
12.96 m²
living room
18.9 m²
entryway
1.87 m²
room
10.8 m²
bathroom
3.06 m²
boiler room
8.01 m²
terrace
17 m²
corridor
8.21 m²
open-plan kitchen and living room
20.46 m²
entryway
1.9 m²
room
10.12 m²
bathroom
4.17 m²
wardrobe
3.81 m²
entryway
1.9 m²
open-plan kitchen and living room
12.57 m²
room
10.08 m²
balcony
14 m²

Horváth Szabina
Credit Expert