219,000,000 Ft
559,000 €
- 1,000m²
- 5 Rooms


























Tuzsér családi ház, lottózó, rendezvényközpont
Megvételre kínálok Tuzséron, központi helyen jó forgalommal rendelkező vendéglátó egységet, több funkciós épületkomplexumot, mely jelenleg családi házként, totó lottózóként, pizzériázóként, valamint rendezvényközpontként üzemel. Az épület első részében a földszinten cukrászda és pizzériázó, illetve totó lottózó, az emeleten igényes rendezvényterem található.
Az épület másik részében egy kétszintes nagyon modern és praktikus lakrészt alakítottak ki. Alatta a félszuterén részen dupla rendezvény terem (80 fő+táncterem) található, amely hangszigetelt funkcióval rendelkezik.
A két lakrészt tágas reprezentatív galéria köti össze. A földszinti helyiségeket (a nappalit a hálószobát a dolgozószobát és a sarokkádas wc fürdőszobát) privát konditerem és szauna vizesblokkal egészíti ki.
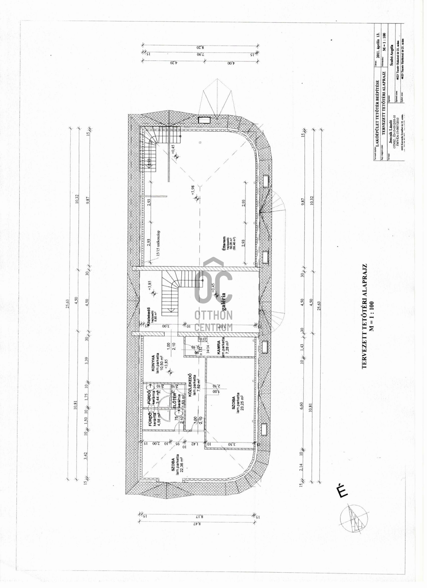
A tetőtérben három hálószoba, egy tea konyha, továbbá egy wc- fürdőszoba áll rendelkezésre.
A rendezett, térkövezett udvaron egy különálló épületben a földszinten garázs, kazánház, mellette raktár-tároló, fölötte az emeleten egy további rendezvényterem várja a vendégeket, ami igény szerint panzióvá is átalakítható. Mögötte, a fedett beállóra 70KW -os napelem rendszert építettek ki, mellette több funkciós kemence található.
A nyílászárók hőszigetelt műanyagból készültek, a hűtésről-fűtésről a napelemek által termelt megújuló energia gondoskodik.
Az épület komplexumban minden fontosabb helységbe inverteres újszerű klímákat szereltek fel, ezen kívül az épület fűtése központi fűtéssel, padlófűtéssel kiegészítve is megoldható.
A meleg vízről napkollektorok gondoskodnak.
Az épület akár több generációs család számára biztosíthat modern és magas színvonalú lakhatást és biztos jövedelmet.
Tuzsér családi ház, lottózó, rendezvényközpont
Az épület másik részében egy kétszintes nagyon modern és praktikus lakrészt alakítottak ki. Alatta a félszuterén részen dupla rendezvény terem (80 fő+táncterem) található, amely hangszigetelt funkcióval rendelkezik.
A két lakrészt tágas reprezentatív galéria köti össze. A földszinti helyiségeket (a nappalit a hálószobát a dolgozószobát és a sarokkádas wc fürdőszobát) privát konditerem és szauna vizesblokkal egészíti ki.
A tetőtérben három hálószoba, egy tea konyha, továbbá egy wc- fürdőszoba áll rendelkezésre.
A rendezett, térkövezett udvaron egy különálló épületben a földszinten garázs, kazánház, mellette raktár-tároló, fölötte az emeleten egy további rendezvényterem várja a vendégeket, ami igény szerint panzióvá is átalakítható. Mögötte, a fedett beállóra 70KW -os napelem rendszert építettek ki, mellette több funkciós kemence található.
A nyílászárók hőszigetelt műanyagból készültek, a hűtésről-fűtésről a napelemek által termelt megújuló energia gondoskodik.
Az épület komplexumban minden fontosabb helységbe inverteres újszerű klímákat szereltek fel, ezen kívül az épület fűtése központi fűtéssel, padlófűtéssel kiegészítve is megoldható.
A meleg vízről napkollektorok gondoskodnak.
Az épület akár több generációs család számára biztosíthat modern és magas színvonalú lakhatást és biztos jövedelmet.
Tuzsér családi ház, lottózó, rendezvényközpont
Registration Number
H487830
Property Details
Sales
for sale
Legal Status
used
Character
house
Construction Method
brick
Net Size
1,000 m²
Gross Size
1,100 m²
Plot Size
2,800 m²
Heating
renewable
Ceiling Height
284 cm
Number of Levels Within the Property
3
Orientation
South-East
Condition
Good
Condition of Facade
Good
Basement
Independent
Neighborhood
good transport, green, central
Year of Construction
2005
Number of Bathrooms
2
Garage
Included in the price
Garage Spaces
1
Number of Covered Parking Spots
3
Water
Available
Gas
Available
Electricity
Available
Sewer
Available
Multi-Generational
yes
Storage
Independent
Rooms
shop
39.3 m²
kitchen
13 m²
warehouse
4 m²
entryway
32.2 m²
living room
23.7 m²
room
19.4 m²
bathroom-toilet
12.7 m²
study
13.8 m²
other room
60 m²
entryway
10.5 m²
bedroom
12 m²
bathroom-toilet
10 m²
bedroom
12 m²
bedroom
12 m²