249,000,000 Ft
660,000 €
- 200.9m²
- 5 Rooms
Örökpanorámás ÁLOMHÁZ a természet szívében, mely akár egy KIS BIRTOKká bővíthető!
Eladásra kínálunk Kőszegdoroszlón egy 2022-ben épült, minden igénynek megfelelő, 200 nm-es, 1650 nm területen fekvő exkluzív családi házat.
Szeretne egy saját kis birtokot?? Itt az is valóra váltható!! Az 1650 nm-es terület további belterületi, összközműves telkekkel bővíthető, így összességük ~8700 nm-t alkot. (A területek egyenként is megvásárolhatóak.)
Ha minden álma, hogy a naplementéket egy pohár finom bor mellett csodálja meg ennek az impozáns épületnek a teraszáról, vagy hűvösebb napokon a nappaliból, egy puha takaró alól, akkor egészen biztos lehet benne, hogy megtalálta a tökéleteset: ÁLMAI OTTHONÁT!
Itt a természet és az ember végtelen harmóniában élhet egy csendes, nyugodt környezetben, közvetlen az erdő és annak sokszínű élővilága mellett. Világhírű itt a kristálytiszta alpesi levegő nyugtató és gyógyító hatása. Az impozáns, luxus kivitelezésű ház tökéletesen illeszkedik a tájba.
A Kőszegi-hegységre nézve lenyűgöző kilátásban lehet részünk, látványos túrákat tehetünk, útba ejtve a legszebb kilátókat, vadregényes erdőket és bővizű forrásokat.
A határ-közeli település hatalmas előnye Ausztria közelsége: 15 perc autóutat megtéve már a gyönyörű Rohonci-tónál, 25 perc alatt pedig Burgenland csodás lankáin, borvidékein járhatunk. A település olyan, mintha egy mesebeli tájra csöppent volna a látogató: végtelenbe nyúló lankás mezők, erdők, hegyek világa.
Magyarország egyik leghangulatosabb kisvárosa, Kőszeg pár kilométer távolságra elérhető, ahol nagyszerű rendezvények, iskola, óvoda, egészségügyi intézmény és számos kereskedelmi, vendéglátó- és szolgáltató egység található.
Szombathely, a Nyugat Királynőjének is nevezett, országunk legrégebbi városa is elérhető 15 perces autóúttal. Középkori hangulattal, mesés belvárossal és számos történelmi épülettel várja az idelátogatókat.
-Egy természetes otthon az energiatakarékosság és környezettudatosság jegyében-
Az ingatlan nagypaneles készház, minősített, kizárólag természetes anyagok felhasználásával készült. A külső és belső falakban egyaránt nagy térfogat-sűrűségű szigetelést alkalmaztak, amely a jó hőszigetelés mellett rendkívül jó hőtárolást és kiváló hangszigetelést eredményez. Télen kiváló energiamegtakarítás, nyáron kitűnő hővédelem. Falszerkezetei páradiffúzió tekintetében nyitott rendszerek, ez összhangban áll a fa tartóváz természetes tulajdonságaival és egyúttal egészséges, kellemes belső klímát biztosít lakói számára. Vázszerkezete minősített, gyalult, műszárított, hossztoldott ausztriai lucfenyő. A ház szerkezete kimagaslóan földrengésbiztos. A beépített anyagok tulajdonságai lehetővé teszik az úgynevezett „lélegző” rendszer kialakítását, ezáltal a fal-, födém- és tetőszerkezet teljes átszellőzését, ami a tartó faváz hosszú élettartamát garantálja. Külső felületkezelése ún. hőszigetelő vakolatrendszerrel készült, ez egy prémium kategóriás, légáteresztő hőszigetelés. (50 év szerkezeti garancia!) A tető napelemmel ellátott.
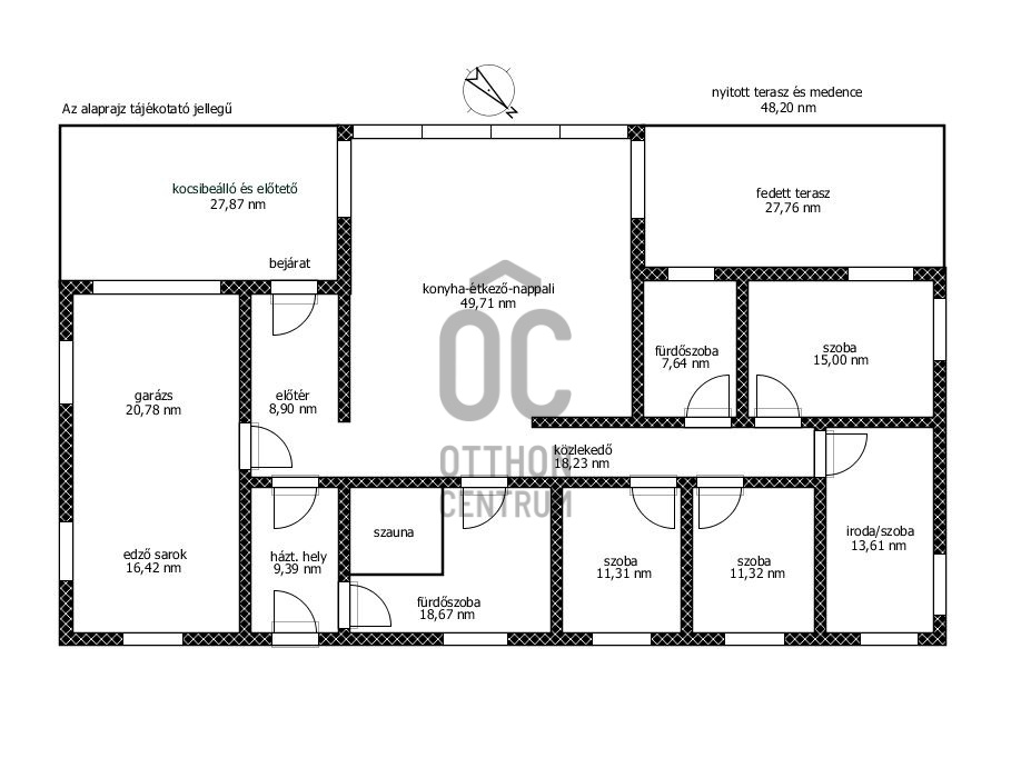
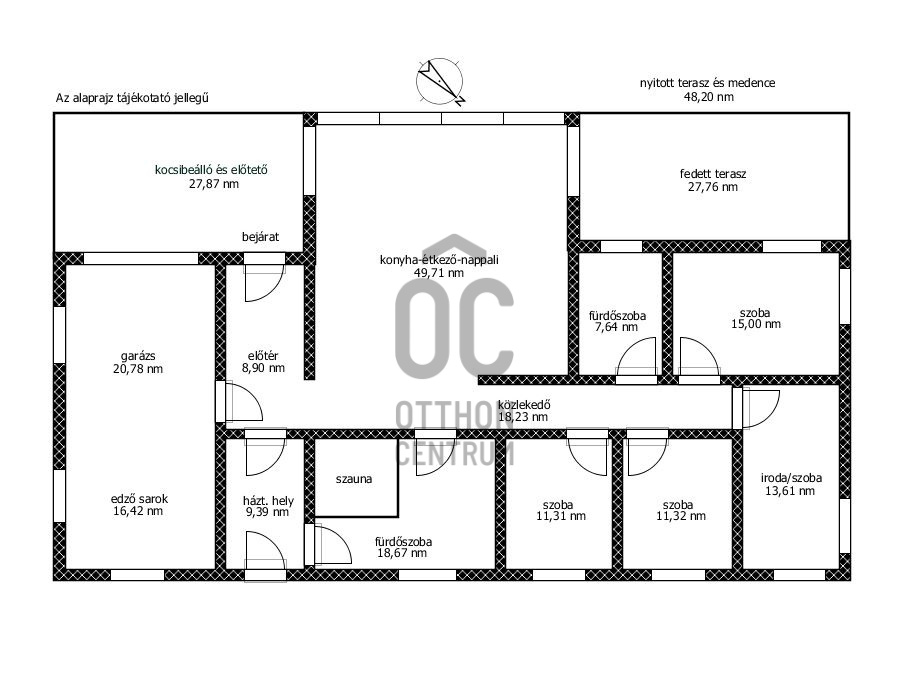
A ház lelkét egy impozáns, nyitott födémes konyha-étkező-nappali alkotja, melyből a faltól-falig tartó, három rétegű műanyag, óriási üvegfelületnek köszönhetően csodálatos panoráma tárul elénk a Kőszegi-hegységre. A DNY-i tájolás nappal napfényben fürdő, világos, tágas tereket kölcsönöz, az esti órákban pedig a bíborszínű naplementében gyönyörködhetünk. Egyedileg tervezett, gépesített konyhabútor került beépítésre, edzett üveg hátfallal, Lechner kvarckő munkapulttal. Az otthon hangulatát tovább fokozza az itt elhelyezett kandalló kályha, mely a hideg téli napokban meghitt melegséget áraszt.
A további helyiségek a közlekedőből nyílnak, négy szoba, mind külön, telefonról irányítható wifi-s termosztáttal ellátott. A házban két, exkluzív bútorokkal felszerelt fürdőszoba van: egyik fürdőkáddal és zuhanyzóval, másik zuhanyzóval és egy 6-8 személyes finn szaunával, pihenőrésszel kialakítva. Mindemellett helyet kapott egy háztartási helyiség, beépített, gépesített bútorral. Az ingatlan tetőtere további lehetőségként beépíthető.
Az otthon fűtéséről elektromos padlófűtés és elektromos radiátorok gondoskodnak, hűtését légkondicionálók biztosítják.
Az egész épületet a prémium minőségű anyagok használata és a precíz kivitelezés jellemzi.
Az ingatlan nívóját tovább emeli egy fedett Compass Ceramic Pools sós vizes, fűthető-hűthető úszómedence, mely vantage automata medencetisztító rendszerrel és exkluzív világítással felszerelt. (40 év garancia!)
Lehetőség van nyitott kocsibeálló és fűthető garázs használatára is, ezt a mintegy 37,2 nm-es terület teszi lehetővé. Jelenleg egy edzősarkot is kialakítottak a teljes helykihasználás érdekében.
Egy 6332 nm-es terület -melyen belül a ház is elhelyezkedik- teljesen körbekerített, elektromos kapuval ellátott. Közel 850 nm térkövezett, ami magában foglalja a fedett és nyitott teraszt is.
•Az ingatlanban található bútorzat megegyezés tárgyát képezi!•
••Igény szerint a meglévő telek, az ingatlan mögött elterülő erdővel (további 3770 nm) is bővíthető.••
Jöjjön el és tekintsük meg együtt ezt a gyönyörű környezetben lévő, minőségi anyagokkal ellátott, impozáns megjelenésű álomházat! Az Ön leendő otthonát!
•Műszaki tartalom•
- Cata szénszűrős páraelszívó
- Gorenje: hűtő, főzőlap, sütő
- AEG mosogatógép
- Brilliancy ioncserés vízlágyító
- PurePro fordított ozmózisos víztisztító
- Midea klíma, szárítógép
- Whirlpool mosógép
- Blanco csaptelep, mosogatótálca
- Romotop Aledo kandallókályha
- egyedi prémium festett konyhabútor
- Lechner kvarckő munkapult
- egyedi prémium beépített bútorok
- Novabell Norgestone olasz prémium járólap
- Hangsgrohe szaniterek
- Hörmann prémium garázskapu
- Acer kapunyitó
- SCALA2 szivattyú
- Huawei inverter, napelem
- 20.000 l-es esővíz-gyűjtő tartály
- kültéri kamerarendszer
Hitelre van szüksége? Az Otthon Centrum az ország egyik legnagyobb és legmegbízhatóbb hitelközvetítőjeként, teljes körű és díjmentes hitel ügyintézéssel, biztosításkötéssel áll rendelkezésére! Kérje személyre szabott ajánlatunkat Kollégáinktól!
Válassza ki az Önnek legmegfelelőbbet!
eladó ingatlan Kőszegdoroszló
eladó családi ház Kőszegdoroszló
eladó ingatlan Vas megye
eladó családi ház Vas megye
családi ház Kőszegdoroszló
exkluzív családi ház Vas megye
luxus ingatlan Vas megye
luxus ingatlan Kőszegdoroszló
luxus ház Vas megye
luxus ház Kőszegdoroszló
Szeretne egy saját kis birtokot?? Itt az is valóra váltható!! Az 1650 nm-es terület további belterületi, összközműves telkekkel bővíthető, így összességük ~8700 nm-t alkot. (A területek egyenként is megvásárolhatóak.)
Ha minden álma, hogy a naplementéket egy pohár finom bor mellett csodálja meg ennek az impozáns épületnek a teraszáról, vagy hűvösebb napokon a nappaliból, egy puha takaró alól, akkor egészen biztos lehet benne, hogy megtalálta a tökéleteset: ÁLMAI OTTHONÁT!
Itt a természet és az ember végtelen harmóniában élhet egy csendes, nyugodt környezetben, közvetlen az erdő és annak sokszínű élővilága mellett. Világhírű itt a kristálytiszta alpesi levegő nyugtató és gyógyító hatása. Az impozáns, luxus kivitelezésű ház tökéletesen illeszkedik a tájba.
A Kőszegi-hegységre nézve lenyűgöző kilátásban lehet részünk, látványos túrákat tehetünk, útba ejtve a legszebb kilátókat, vadregényes erdőket és bővizű forrásokat.
A határ-közeli település hatalmas előnye Ausztria közelsége: 15 perc autóutat megtéve már a gyönyörű Rohonci-tónál, 25 perc alatt pedig Burgenland csodás lankáin, borvidékein járhatunk. A település olyan, mintha egy mesebeli tájra csöppent volna a látogató: végtelenbe nyúló lankás mezők, erdők, hegyek világa.
Magyarország egyik leghangulatosabb kisvárosa, Kőszeg pár kilométer távolságra elérhető, ahol nagyszerű rendezvények, iskola, óvoda, egészségügyi intézmény és számos kereskedelmi, vendéglátó- és szolgáltató egység található.
Szombathely, a Nyugat Királynőjének is nevezett, országunk legrégebbi városa is elérhető 15 perces autóúttal. Középkori hangulattal, mesés belvárossal és számos történelmi épülettel várja az idelátogatókat.
-Egy természetes otthon az energiatakarékosság és környezettudatosság jegyében-
Az ingatlan nagypaneles készház, minősített, kizárólag természetes anyagok felhasználásával készült. A külső és belső falakban egyaránt nagy térfogat-sűrűségű szigetelést alkalmaztak, amely a jó hőszigetelés mellett rendkívül jó hőtárolást és kiváló hangszigetelést eredményez. Télen kiváló energiamegtakarítás, nyáron kitűnő hővédelem. Falszerkezetei páradiffúzió tekintetében nyitott rendszerek, ez összhangban áll a fa tartóváz természetes tulajdonságaival és egyúttal egészséges, kellemes belső klímát biztosít lakói számára. Vázszerkezete minősített, gyalult, műszárított, hossztoldott ausztriai lucfenyő. A ház szerkezete kimagaslóan földrengésbiztos. A beépített anyagok tulajdonságai lehetővé teszik az úgynevezett „lélegző” rendszer kialakítását, ezáltal a fal-, födém- és tetőszerkezet teljes átszellőzését, ami a tartó faváz hosszú élettartamát garantálja. Külső felületkezelése ún. hőszigetelő vakolatrendszerrel készült, ez egy prémium kategóriás, légáteresztő hőszigetelés. (50 év szerkezeti garancia!) A tető napelemmel ellátott.
A ház lelkét egy impozáns, nyitott födémes konyha-étkező-nappali alkotja, melyből a faltól-falig tartó, három rétegű műanyag, óriási üvegfelületnek köszönhetően csodálatos panoráma tárul elénk a Kőszegi-hegységre. A DNY-i tájolás nappal napfényben fürdő, világos, tágas tereket kölcsönöz, az esti órákban pedig a bíborszínű naplementében gyönyörködhetünk. Egyedileg tervezett, gépesített konyhabútor került beépítésre, edzett üveg hátfallal, Lechner kvarckő munkapulttal. Az otthon hangulatát tovább fokozza az itt elhelyezett kandalló kályha, mely a hideg téli napokban meghitt melegséget áraszt.
A további helyiségek a közlekedőből nyílnak, négy szoba, mind külön, telefonról irányítható wifi-s termosztáttal ellátott. A házban két, exkluzív bútorokkal felszerelt fürdőszoba van: egyik fürdőkáddal és zuhanyzóval, másik zuhanyzóval és egy 6-8 személyes finn szaunával, pihenőrésszel kialakítva. Mindemellett helyet kapott egy háztartási helyiség, beépített, gépesített bútorral. Az ingatlan tetőtere további lehetőségként beépíthető.
Az otthon fűtéséről elektromos padlófűtés és elektromos radiátorok gondoskodnak, hűtését légkondicionálók biztosítják.
Az egész épületet a prémium minőségű anyagok használata és a precíz kivitelezés jellemzi.
Az ingatlan nívóját tovább emeli egy fedett Compass Ceramic Pools sós vizes, fűthető-hűthető úszómedence, mely vantage automata medencetisztító rendszerrel és exkluzív világítással felszerelt. (40 év garancia!)
Lehetőség van nyitott kocsibeálló és fűthető garázs használatára is, ezt a mintegy 37,2 nm-es terület teszi lehetővé. Jelenleg egy edzősarkot is kialakítottak a teljes helykihasználás érdekében.
Egy 6332 nm-es terület -melyen belül a ház is elhelyezkedik- teljesen körbekerített, elektromos kapuval ellátott. Közel 850 nm térkövezett, ami magában foglalja a fedett és nyitott teraszt is.
•Az ingatlanban található bútorzat megegyezés tárgyát képezi!•
••Igény szerint a meglévő telek, az ingatlan mögött elterülő erdővel (további 3770 nm) is bővíthető.••
Jöjjön el és tekintsük meg együtt ezt a gyönyörű környezetben lévő, minőségi anyagokkal ellátott, impozáns megjelenésű álomházat! Az Ön leendő otthonát!
•Műszaki tartalom•
- Cata szénszűrős páraelszívó
- Gorenje: hűtő, főzőlap, sütő
- AEG mosogatógép
- Brilliancy ioncserés vízlágyító
- PurePro fordított ozmózisos víztisztító
- Midea klíma, szárítógép
- Whirlpool mosógép
- Blanco csaptelep, mosogatótálca
- Romotop Aledo kandallókályha
- egyedi prémium festett konyhabútor
- Lechner kvarckő munkapult
- egyedi prémium beépített bútorok
- Novabell Norgestone olasz prémium járólap
- Hangsgrohe szaniterek
- Hörmann prémium garázskapu
- Acer kapunyitó
- SCALA2 szivattyú
- Huawei inverter, napelem
- 20.000 l-es esővíz-gyűjtő tartály
- kültéri kamerarendszer
Hitelre van szüksége? Az Otthon Centrum az ország egyik legnagyobb és legmegbízhatóbb hitelközvetítőjeként, teljes körű és díjmentes hitel ügyintézéssel, biztosításkötéssel áll rendelkezésére! Kérje személyre szabott ajánlatunkat Kollégáinktól!
Válassza ki az Önnek legmegfelelőbbet!
eladó ingatlan Kőszegdoroszló
eladó családi ház Kőszegdoroszló
eladó ingatlan Vas megye
eladó családi ház Vas megye
családi ház Kőszegdoroszló
exkluzív családi ház Vas megye
luxus ingatlan Vas megye
luxus ingatlan Kőszegdoroszló
luxus ház Vas megye
luxus ház Kőszegdoroszló
Registration Number
H475130
Property Details
Sales
for sale
Legal Status
used
Character
house
Construction Method
prefabricated
Net Size
200.9 m²
Gross Size
200.9 m²
Plot Size
1,650 m²
Size of Terrace / Balcony
75.9 m²
Heating
renewable
Ceiling Height
269 cm
Orientation
South-West
View
Green view
Condition
Excellent
Condition of Facade
Excellent
Neighborhood
quiet, green
Year of Construction
2022
Number of Bathrooms
2
Garage
Included in the price
Garage Spaces
2
Water
Available
Electricity
Available
Sewer
Available
Rooms
open-plan kitchen and living room
49.71 m²
room
15 m²
room
13.61 m²
room
11.32 m²
room
11.31 m²
bathroom-toilet
18.67 m²
bathroom-toilet
7.64 m²
entryway
8.9 m²
utility room
9.39 m²
corridor
18.23 m²
garage
20.78 m²
other room
16.42 m²
Csejtey Krisztina
Credit Expert