29,900,000 Ft
77,000 €
- 760m²
 
            
                                                             
            
                                                             
            
                                                             
            
                                                             
            
                                                             
            
                                                             
            
                                                            Szigetmonostor újépítésű részén eladó egy építési engedéllyel rendelkező lakóövezeti, összközműves telek!
Az Ófalu és Horány közt létrejött újépítésű részen helyezkedik el, 500méterre óvodától, bölcsödétől.Szentendre és Dunakeszi irányába is egyelő távolságra az autós révektől.
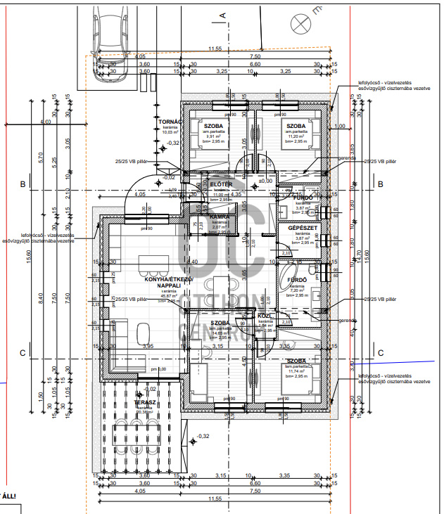
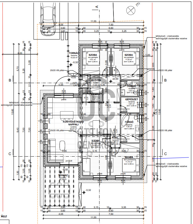
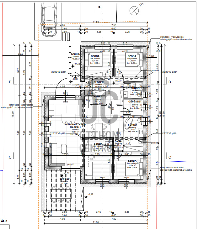
A telek lakóövezeti, összközműves, 760nm-es, sík és aszfaltozott utca mellett helyezkedik el.Egy 122nm-es egyszintes családi ház építési terveivel rendelkezik. Ezekkel együtt eladó.A családi ház megépítése opcionálisan megoldható.
További kérdés és a megtekintéssel kapcsolatban hívjon bizalommal a hét minden napján!
                    Az Ófalu és Horány közt létrejött újépítésű részen helyezkedik el, 500méterre óvodától, bölcsödétől.Szentendre és Dunakeszi irányába is egyelő távolságra az autós révektől.
A telek lakóövezeti, összközműves, 760nm-es, sík és aszfaltozott utca mellett helyezkedik el.Egy 122nm-es egyszintes családi ház építési terveivel rendelkezik. Ezekkel együtt eladó.A családi ház megépítése opcionálisan megoldható.
További kérdés és a megtekintéssel kapcsolatban hívjon bizalommal a hét minden napján!
Registration Number
DTK045868
                Property Details
Sales
                                        for sale
                                                                                                                                                Legal Status
                                        used
                                                                                                                                                Character
                                        plot
                                                                                                                                                                                                                                                                                                                                                                                                                                Type of Land
                                        Developmental plot
                                                                                                                                                                                                                                                                                                                                                            Net Size
                                        760 m²
                                                                                                                                                Gross Size
                                        760 m²
                                                                                                                                                Plot Size
                                        760 m²
                                                                                                                                                                                                                                                                                                                                                                                                                                                                                                                                                                                                                                                                                                                                                                                                                                                                                                                                                                                                                                                                                                                                        Basement
                                        values.realestate.pince.1
                                                                                                                                                                                                                                                                                                                                                                                                                                                                                                                                                                                                                                                                                                                                                                                                                                                                                                                                                                                                Gas
                                        On the street
                                                                                                                                                                                                                    Sewer
                                        On the street
                                                                                                                                                                                                                                                                                        Connected to Garden
                                        yes
                                                                                                                                                                                                                    Storage
                                        Independent
                                                                                                                                                                                                                                         
            
                            Korcsog Melinda
Credit Expert
 
                    
                 
                         
                         
                         
                         
                         
                         
                         
                    
                 
                 
                 
                 
                 
                 
                 
                 
                 
                 
                 
                