310,000,000 Ft
803,000 €
- 386m²
- 9 Rooms
XVIII. KERÜLET BÓKAY-KERT SZÍVÉBEN!
XVIII. kerület közkedvelt részén a Bókay kert szomszédságában eladó egy otthonos, hangulatos, nettó 386 nm-es, bruttó 456 nm-es, körbejárható, önálló családi ház.
A családi otthon különlegessége, hogy jelen állapotában a három szinten, három teljeskörűen kialakított teljes értékű lakásból áll.
Az épület nem utcafronti, körbejárható családi ház.
Az ingatlan tájolását tekintve előnyös, mert ablakai mind a négy égtájra nyílnak, ezáltal világos és hangulatos az épület.
Az ház teher-, per-, jog- és igénymentes, hitelezhető.
A telek össz mérete 745 nm.
Az ingatlanhoz séta közelben több üzlet (Lidl Spar, Aldi, DM, stb.) és általános iskola, óvoda és bölcsőde, illetve rendelőintézet valamint buszmegálló található. Bármely busszal az M3-as metróvonal 10 perc alatt elérhető. Az M0 autóút negyedórán belül elérhető.
A családi otthonban kialakításra került egy földszinti, illetve egy első emeleti és a műszakilag hozzá tartozó tetőtéri részből álló önálló lakás.
A ház szuterén részén egy 106 nm-es pince húzódik, mely külső és belső lépcsőtéren egyaránt megközelíthető.
Vállalkozás, illetve garázs céljára egyaránt alkalmas a szuterén.
Az ingatlan 2000-ben épült. A jelenleg is zajló felújítási munkák várhatóan 2025. évben illetve 2026. év első negyedévében érnek véget.
A földszinti lakás hasznos alapterülete: 93 nm, a terasz: 42 nm, és a saját pince rész 33 nm.
Az emeleti lakás hasznos alapterülete: 143 nm, a saját szuterén rész: 73,67 nm.
A telek végében egy 44 nm-es épület található, mely választása szerint akár az Öné is lehet!
Az ingatlan 1 szoba plusz amerikai konyhás nappaliból, kis előtérből és zuhanyzós fürdő WC helységből áll.
A fűtést és a meleg vizet kondenzációs kazán biztosítja.
Az egész épületre jellemző műszaki adatok:
- az épület 15 cm szigeteléssel ellátott
- a nyílászárók műanyag típusúak, redőnnyel és szúnyoghálóval ellátva
- a földszinten a melegvíz ellátását villanybojler biztosítja, a fűtést 3 db klíma látja el, melyek nyáron hűtenek is
- az első emeleten és a tetőtéren kondenzációs kazán biztosítja a fűtést és a meleg vizet, valamint egy napkollektor is üzemel
- a villanyvezeték rézcsővel kiépített,
- a vízvezetékek cseréje megtörtént,
- minden helyiség felújított,
- a tető zsindellyel borított,
- a földszinti lakás belmagassága, 2,8 m az emeleti lakás belmagassága: 2,6 m,
- a térburkolatok kövesek,
- a lakásokban a szobák parkettásak, a közlekedő helyiségek és a vizesblokkok járólaposak
- az utcafronton több autó parkolására van lehetőség.
A konyhabútor kivitelezése mindhárom lakásban az új tulajdonos feladata!
A földszint:
A földszinti rész tágas közlekedőből, önállóan nyíló kettő darab keleti tájolású 15 nm-es és 12 nm-es szobából, illetve egy zuhanyzós fürdőszobából és külön WC helyiségből áll. A keleti tájolású konyhához, az egy légterű a 28 nm-es nappali tartozik, mely nyugati fekvésű. A nappali a 42 nm-es terasszal kapcsolatos.
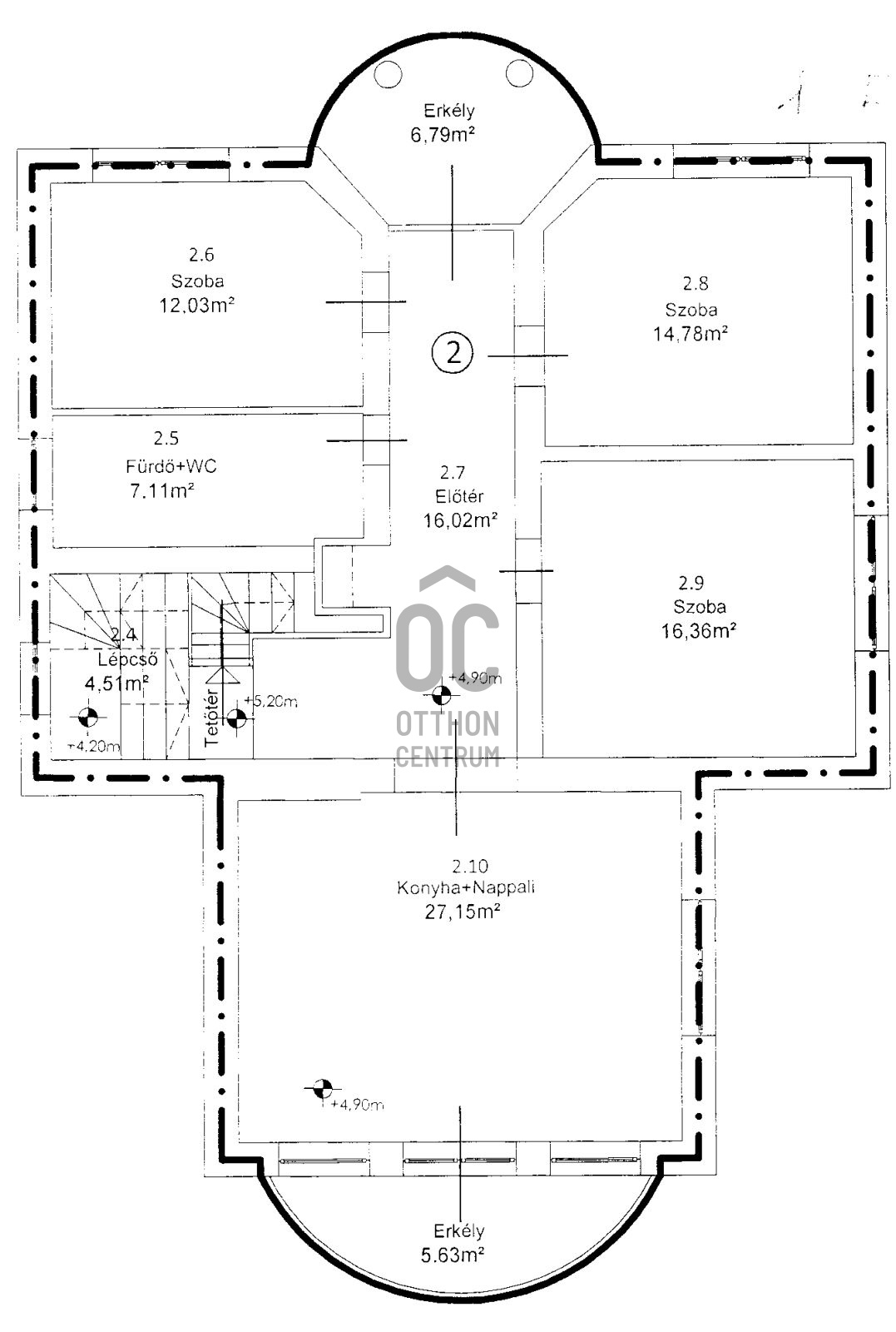
Első emelet, és tetőtér:
Az első emeleten a nyugati tájolású 27 nm-es amerikai konyhás nappali mellett három szoba került kialakításra, melyből a 16 nm-es déli, a 15 nm-es és a 12 nm-es szoba déli tájolású. A zuhanyzós fürdőszoba WC-vel együtt nyugati fekvésű, illetve külön kialakításra került egy WC helyiség is. A közlekedő igen tágas, a szobák önállóan nyílnak (egyik sem zsákszoba!). Az emeleti részen két terasz is található, egyik keleti (kisebb és utcafronti), a másik nyugati tájolású (nagyobb és kertre néző), mindkettő kényelmes elrendezésű.
A tetőtérben található két nagyobb és egy kisebb helyiség, melyben, konyha is kialakításra kerül.. A tetőtérben kialakításra került egy zuhanyzós fürdőszoba WC-vel együtt.
Az ingatlan méretét tekintve, alkalmas több generáció összeköltözésére, vállalkozás üzemeltetésére.
Amennyiben felkeltette érdeklődését, és úgy érzi, hogy a hirdetéssel rátalált ideális otthonára, további információért és megtekintéssel kapcsolatban keressen bizalommal!
Jöjjön el és tekintse meg leendő otthonát, várom megtisztelő hívását!
XVIII. kerület közkedvelt részén a Bókay kert szomszédságában eladó egy otthonos, hangulatos, nettó 386 nm-es, bruttó 456 nm-es, körbejárható, önálló családi ház.
A családi otthon különlegessége, hogy jelen állapotában a három szinten, három teljeskörűen kialakított teljes értékű lakásból áll.
Az épület nem utcafronti, körbejárható családi ház.
Az ingatlan tájolását tekintve előnyös, mert ablakai mind a négy égtájra nyílnak, ezáltal világos és hangulatos az épület.
Az ház teher-, per-, jog- és igénymentes, hitelezhető.
A telek össz mérete 745 nm.
Az ingatlanhoz séta közelben több üzlet (Lidl Spar, Aldi, DM, stb.) és általános iskola, óvoda és bölcsőde, illetve rendelőintézet valamint buszmegálló található. Bármely busszal az M3-as metróvonal 10 perc alatt elérhető. Az M0 autóút negyedórán belül elérhető.
A családi otthonban kialakításra került egy földszinti, illetve egy első emeleti és a műszakilag hozzá tartozó tetőtéri részből álló önálló lakás.
A ház szuterén részén egy 106 nm-es pince húzódik, mely külső és belső lépcsőtéren egyaránt megközelíthető.
Vállalkozás, illetve garázs céljára egyaránt alkalmas a szuterén.
Az ingatlan 2000-ben épült. A jelenleg is zajló felújítási munkák várhatóan 2025. évben illetve 2026. év első negyedévében érnek véget.
A földszinti lakás hasznos alapterülete: 93 nm, a terasz: 42 nm, és a saját pince rész 33 nm.
Az emeleti lakás hasznos alapterülete: 143 nm, a saját szuterén rész: 73,67 nm.
A telek végében egy 44 nm-es épület található, mely választása szerint akár az Öné is lehet!
Az ingatlan 1 szoba plusz amerikai konyhás nappaliból, kis előtérből és zuhanyzós fürdő WC helységből áll.
A fűtést és a meleg vizet kondenzációs kazán biztosítja.
Az egész épületre jellemző műszaki adatok:
- az épület 15 cm szigeteléssel ellátott
- a nyílászárók műanyag típusúak, redőnnyel és szúnyoghálóval ellátva
- a földszinten a melegvíz ellátását villanybojler biztosítja, a fűtést 3 db klíma látja el, melyek nyáron hűtenek is
- az első emeleten és a tetőtéren kondenzációs kazán biztosítja a fűtést és a meleg vizet, valamint egy napkollektor is üzemel
- a villanyvezeték rézcsővel kiépített,
- a vízvezetékek cseréje megtörtént,
- minden helyiség felújított,
- a tető zsindellyel borított,
- a földszinti lakás belmagassága, 2,8 m az emeleti lakás belmagassága: 2,6 m,
- a térburkolatok kövesek,
- a lakásokban a szobák parkettásak, a közlekedő helyiségek és a vizesblokkok járólaposak
- az utcafronton több autó parkolására van lehetőség.
A konyhabútor kivitelezése mindhárom lakásban az új tulajdonos feladata!
A földszint:
A földszinti rész tágas közlekedőből, önállóan nyíló kettő darab keleti tájolású 15 nm-es és 12 nm-es szobából, illetve egy zuhanyzós fürdőszobából és külön WC helyiségből áll. A keleti tájolású konyhához, az egy légterű a 28 nm-es nappali tartozik, mely nyugati fekvésű. A nappali a 42 nm-es terasszal kapcsolatos.
Első emelet, és tetőtér:
Az első emeleten a nyugati tájolású 27 nm-es amerikai konyhás nappali mellett három szoba került kialakításra, melyből a 16 nm-es déli, a 15 nm-es és a 12 nm-es szoba déli tájolású. A zuhanyzós fürdőszoba WC-vel együtt nyugati fekvésű, illetve külön kialakításra került egy WC helyiség is. A közlekedő igen tágas, a szobák önállóan nyílnak (egyik sem zsákszoba!). Az emeleti részen két terasz is található, egyik keleti (kisebb és utcafronti), a másik nyugati tájolású (nagyobb és kertre néző), mindkettő kényelmes elrendezésű.
A tetőtérben található két nagyobb és egy kisebb helyiség, melyben, konyha is kialakításra kerül.. A tetőtérben kialakításra került egy zuhanyzós fürdőszoba WC-vel együtt.
Az ingatlan méretét tekintve, alkalmas több generáció összeköltözésére, vállalkozás üzemeltetésére.
Amennyiben felkeltette érdeklődését, és úgy érzi, hogy a hirdetéssel rátalált ideális otthonára, további információért és megtekintéssel kapcsolatban keressen bizalommal!
Jöjjön el és tekintse meg leendő otthonát, várom megtisztelő hívását!
Registration Number
DHZ085332
Property Details
Sales
for sale
Legal Status
used
Character
house
Construction Method
brick
Net Size
386 m²
Gross Size
386 m²
Plot Size
745 m²
Size of Terrace / Balcony
47.6 m²
Heating
Gas circulator
Ceiling Height
260 cm
Number of Levels Within the Property
3
Orientation
East
Condition
Excellent
Condition of Facade
Excellent
Year of Construction
2000
Number of Bathrooms
3
Position
courtyard-facing
Water
Available
Gas
Available
Electricity
Available
Sewer
Available
Rooms
living room
28 m²
terrace
42 m²
open-plan kitchen and dining room
17.4 m²
room
14.5 m²
room
11.4 m²
corridor
13.1 m²
corridor
1.4 m²
bathroom-toilet
6.4 m²
staircase
4.9 m²
staircase
3.1 m²
toilet
2 m²
utility room
0.9 m²
open-plan kitchen and living room
27.1 m²
balcony
5.6 m²
room
16.3 m²
room
14.7 m²
room
12 m²
bathroom-toilet
7.1 m²
toilet
1 m²
staircase
4.5 m²
room
10.2 m²
living room
18.1 m²
kitchen
3.8 m²
bathroom-toilet
7.2 m²
corridor
1.2 m²
staircase
3 m²
other
44 m²