data_sheet.details.realestate.section.main.otthonstart_flag.label
For sale family house,
DHZ054912
Nagytótfalu
49,500,000 Ft
127,000 €
- 75m²
- 3 Rooms





















Felújított családi ház eladó Nagytótfaluban – két külön lakrésszel, gazdálkodásra is alkalmas telekkel!
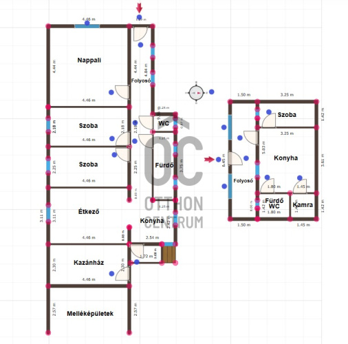
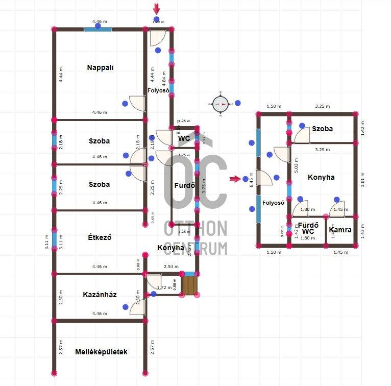
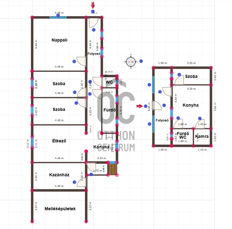
Siklóstól mindössze 5 km-re, Harkánytól 13 km-re, Villánytól 12 km-re, a csendes és barátságos Nagytótfaluban kínálunk megvételre egy két különálló lakóépülettel rendelkező, felújított családi házat.
Az elsődleges lakóépület 75 m², míg a másik épület 25 m² (ez utóbbit jelenleg a nagymama használja). A két lakóépület egy tágas, gondozott telken helyezkedik el, amely állattartásra és gazdálkodásra is kiválóan alkalmas.
*Az ingatlan 3-4 éve teljes körű felújításon esett át, amely során:
*új víz- és villanyvezetékek kerültek beépítésre,
*hideg- és melegburkolatok cserélve lettek,
*modern, új fürdőszoba került kialakításra kkülön WC-vel,
*a külső nyílászárók és beltéri ajtók is cserélve lettek,
*5 cm-es külső homlokzati szigetelés, valamint 15 cm-es kőzetgyapot födémszigetelés került fel.
Közművek és fűtés:
*Az áramhálózat 32 amperig fel lett bővítve, van éjszakai és nappali áram, van firelé is, viszont vezetékes gáz nincs a településen.
*A fűtést egy 5 éves vegyestüzelésű kazán biztosítja.
*A komfortérzetet tovább növeli egy vadonatúj inverteres klíma, amely fűtésre is alkalmas.
*Meleg víz ellátásról villanybojler gondoskodik.
Az ingatlan rövid időn belül költözhető, tehermentes, tiszta tulajdon. Buszjárat közlekedik Siklós és Pécs irányába is, így a közlekedés könnyedén megoldott.
Nagytótfalu csendes, nyugodt, falusias környezetet kínál, ahol már több német és belga család is otthonra talált. A közelben található Villány és Harkány, így a borvidék és a fürdők szerelmeseinek is ideális választás.
Költözzön vidékre, élvezze a természet közelségét, és használja ki a gazdálkodás lehetőségét! Hívjon bizalommal, és tekintse meg személyesen ezt a sok lehetőséget rejtő ingatlant!
Siklóstól mindössze 5 km-re, Harkánytól 13 km-re, Villánytól 12 km-re, a csendes és barátságos Nagytótfaluban kínálunk megvételre egy két különálló lakóépülettel rendelkező, felújított családi házat.
Az elsődleges lakóépület 75 m², míg a másik épület 25 m² (ez utóbbit jelenleg a nagymama használja). A két lakóépület egy tágas, gondozott telken helyezkedik el, amely állattartásra és gazdálkodásra is kiválóan alkalmas.
*Az ingatlan 3-4 éve teljes körű felújításon esett át, amely során:
*új víz- és villanyvezetékek kerültek beépítésre,
*hideg- és melegburkolatok cserélve lettek,
*modern, új fürdőszoba került kialakításra kkülön WC-vel,
*a külső nyílászárók és beltéri ajtók is cserélve lettek,
*5 cm-es külső homlokzati szigetelés, valamint 15 cm-es kőzetgyapot födémszigetelés került fel.
Közművek és fűtés:
*Az áramhálózat 32 amperig fel lett bővítve, van éjszakai és nappali áram, van firelé is, viszont vezetékes gáz nincs a településen.
*A fűtést egy 5 éves vegyestüzelésű kazán biztosítja.
*A komfortérzetet tovább növeli egy vadonatúj inverteres klíma, amely fűtésre is alkalmas.
*Meleg víz ellátásról villanybojler gondoskodik.
Az ingatlan rövid időn belül költözhető, tehermentes, tiszta tulajdon. Buszjárat közlekedik Siklós és Pécs irányába is, így a közlekedés könnyedén megoldott.
Nagytótfalu csendes, nyugodt, falusias környezetet kínál, ahol már több német és belga család is otthonra talált. A közelben található Villány és Harkány, így a borvidék és a fürdők szerelmeseinek is ideális választás.
Költözzön vidékre, élvezze a természet közelségét, és használja ki a gazdálkodás lehetőségét! Hívjon bizalommal, és tekintse meg személyesen ezt a sok lehetőséget rejtő ingatlant!
Registration Number
DHZ054912
Property Details
Sales
for sale
Legal Status
used
Character
house
Construction Method
other
Net Size
75 m²
Gross Size
75 m²
Plot Size
3,940 m²
Heating
other
Number of Levels Within the Property
1
Orientation
West
Condition
Good
Condition of Facade
Good
Year of Construction
1970
Number of Bathrooms
1
Position
courtyard-facing
Water
Available
Electricity
Available
Rooms
room
19 m²
room
9 m²
room
9 m²
dining room
13 m²
kitchen
6.5 m²
toilet
1.5 m²

Mecseki Lászlóné - Éva
Credit Expert