730,000,000 Ft
1,917,000 €
- 396m²
- 6 Rooms
Panorámás, kortalan eleganciát sugárzó luxusvilla a budai hegyek ölelésében
Eladásra kínálunk Budapest egyik legexkluzívabb részén, a 12. kerület csendes, előkelő utcájában található, egyedi építészeti megoldásokat és időtálló eleganciát ötvöző, belső négy szintes, 460 m²-es luxusvillát.
Ez az ingatlan azoknak szól, akik a minőséget, a harmóniát és a privát életteret keresik egyben.
A villa letisztult formavilágával, tágas tereivel és gondosan megtervezett belső elrendezésével biztosít maximális kényelmet és intimitást.
A házat körülölelő gondozott díszkert, a nagy üvegfelületeken át beáramló fény, valamint a teraszok és a télikert minden évszakban különleges atmoszférát teremtenek.
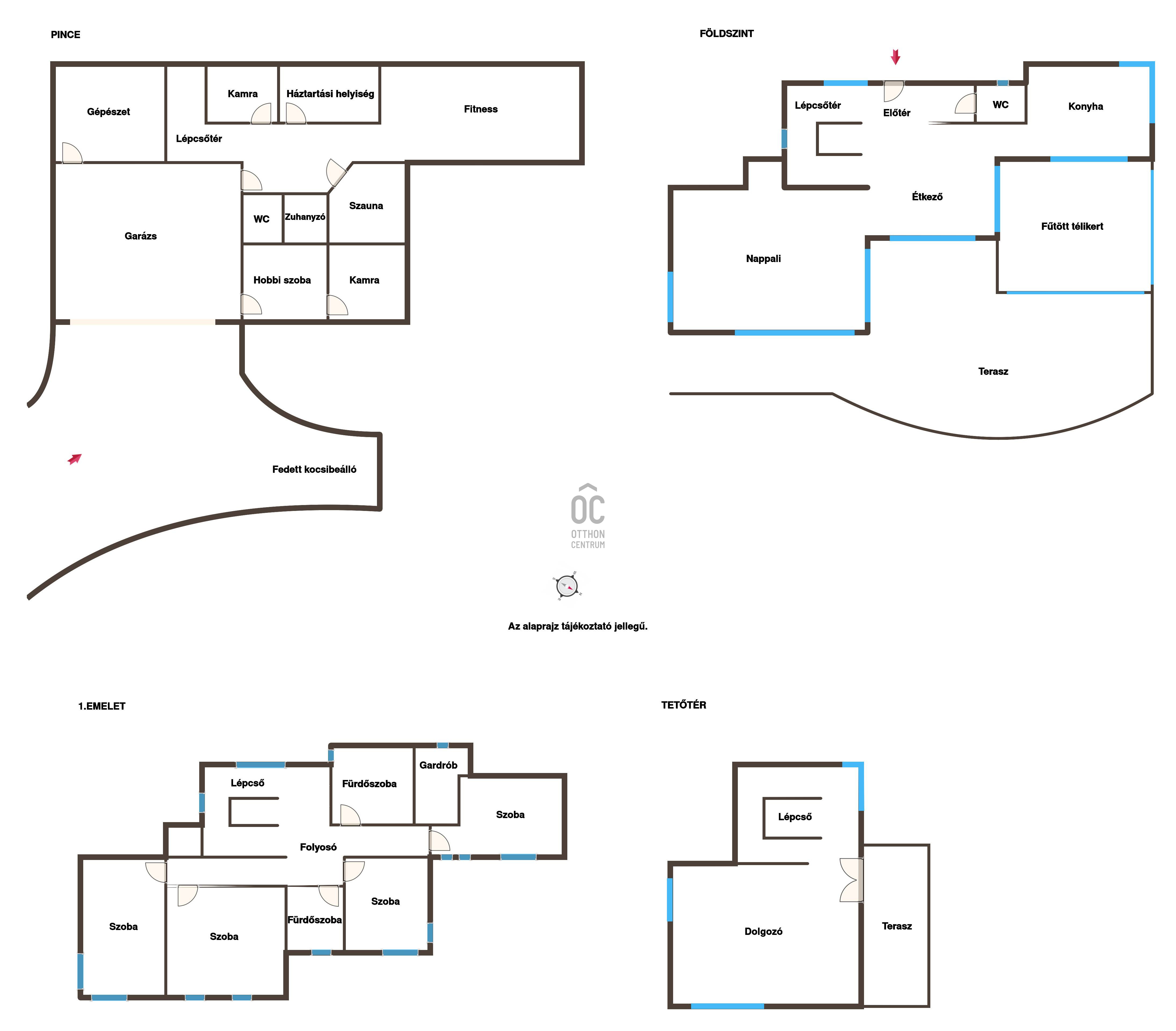
Szintek és elrendezés:Alsó szint: dupla garázs, fedett autóbeállók, szauna, háztartási helyiségek és egy teljesen felszerelt edzőterem
Földszint: tágas nappaliétkezőkonyha egyben, mégis szeparálva, hatalmas üvegfelületekkel és lenyűgöző kilátással a díszkertre; innen nyílik a fedett és nyitott terasz
Első emelet: 4 hálószoba, 2 elegáns fürdőszoba, valamint egy praktikus gardrób
Legfelső szint: dolgozószoba és egy panorámás tetőterasz, ahonnan páratlan kilátás nyílik a budai hegyekreTovábbi különlegességek:Kortalan belsőépítészeti megoldások, amelyek ma is modern, stílusos hatást keltenekValódi kandallóval ellátott nappali, amely meghitt hangulatot árasztNagyvonalú térszervezés és diszkrét elegancia, amely korát meghazudtolóan időtállóPrivát, csendes környezet, mégis könnyen megközelíthető lokációban
Ez a villa méltó választás mindazok számára, akik szeretnének egy igazán különleges, értékálló otthont Budapest egyik legjobb kerületében.
További információért és megtekintésért keressen bizalommal akár hétvégén is.
Eladásra kínálunk Budapest egyik legexkluzívabb részén, a 12. kerület csendes, előkelő utcájában található, egyedi építészeti megoldásokat és időtálló eleganciát ötvöző, belső négy szintes, 460 m²-es luxusvillát.
Ez az ingatlan azoknak szól, akik a minőséget, a harmóniát és a privát életteret keresik egyben.
A villa letisztult formavilágával, tágas tereivel és gondosan megtervezett belső elrendezésével biztosít maximális kényelmet és intimitást.
A házat körülölelő gondozott díszkert, a nagy üvegfelületeken át beáramló fény, valamint a teraszok és a télikert minden évszakban különleges atmoszférát teremtenek.
Szintek és elrendezés:Alsó szint: dupla garázs, fedett autóbeállók, szauna, háztartási helyiségek és egy teljesen felszerelt edzőterem
Földszint: tágas nappaliétkezőkonyha egyben, mégis szeparálva, hatalmas üvegfelületekkel és lenyűgöző kilátással a díszkertre; innen nyílik a fedett és nyitott terasz
Első emelet: 4 hálószoba, 2 elegáns fürdőszoba, valamint egy praktikus gardrób
Legfelső szint: dolgozószoba és egy panorámás tetőterasz, ahonnan páratlan kilátás nyílik a budai hegyekreTovábbi különlegességek:Kortalan belsőépítészeti megoldások, amelyek ma is modern, stílusos hatást keltenekValódi kandallóval ellátott nappali, amely meghitt hangulatot árasztNagyvonalú térszervezés és diszkrét elegancia, amely korát meghazudtolóan időtállóPrivát, csendes környezet, mégis könnyen megközelíthető lokációban
Ez a villa méltó választás mindazok számára, akik szeretnének egy igazán különleges, értékálló otthont Budapest egyik legjobb kerületében.
További információért és megtekintésért keressen bizalommal akár hétvégén is.
Registration Number
DHZ027792
Property Details
Sales
for sale
Legal Status
used
Character
house
Construction Method
brick
Net Size
396 m²
Gross Size
396 m²
Plot Size
1,168 m²
Size of Terrace / Balcony
55.9 m²
Ceiling Height
300 cm
Number of Levels Within the Property
4
Orientation
South-East
View
Other
Condition
Excellent
Condition of Facade
Excellent
Year of Construction
2001
Number of Bathrooms
2
Water
Available
Gas
Available
Electricity
Available
Sewer
Available
Connected to Garden
yes
Rooms
wardrobe
6.08 m²
toilet
1.65 m²
corridor
3.63 m²
room
16.6 m²
room
13.44 m²
room
16 m²
room
13.2 m²
corridor
10 m²
bathroom-toilet
3.75 m²
utility room
7.7 m²
toilet
2.32 m²
dining room
20.5 m²
living room
42.5 m²
kitchen
15.35 m²
terrace
38 m²
room
23.4 m²
terrace
17.92 m²
Pfeffer Kinga
Credit Expert