For sale developmental property, BI000488
Kiskunfélegyháza

89,000,000 Ft

229,000 €

  • 4,408m²

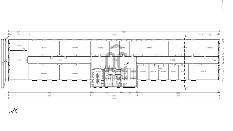
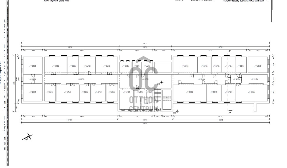
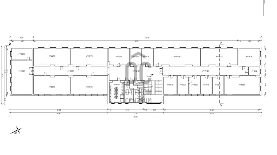
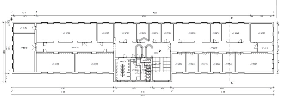
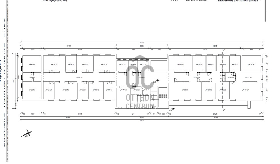
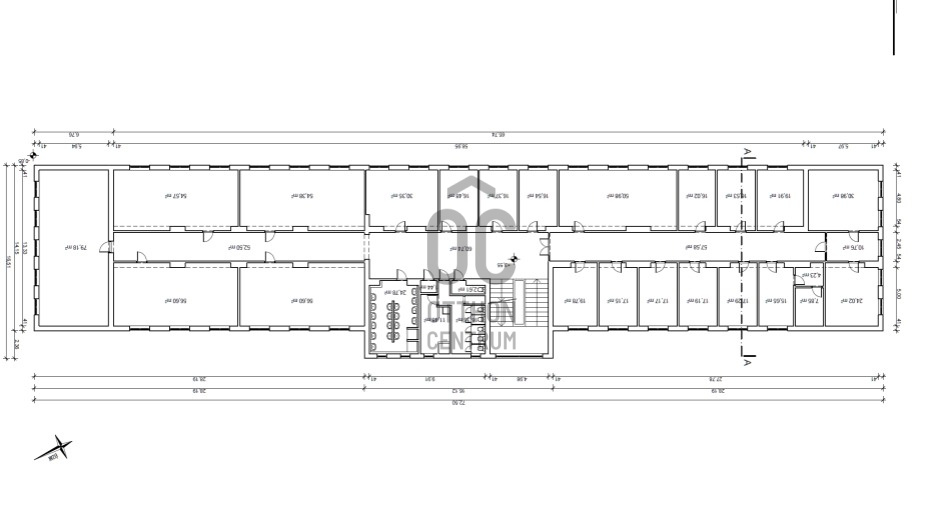
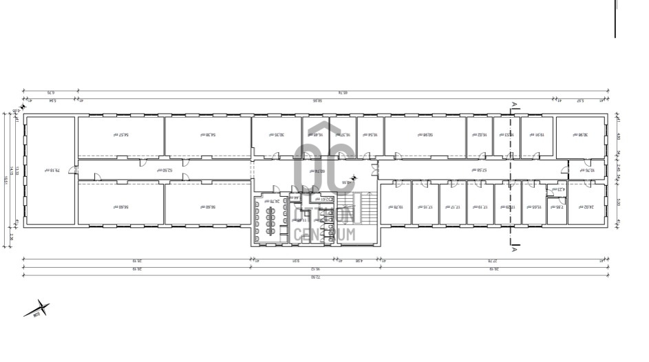
Excellent 5-story industrial property for sale, can be utilized exceptionally well!

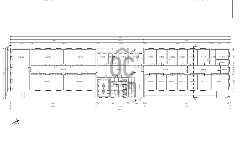
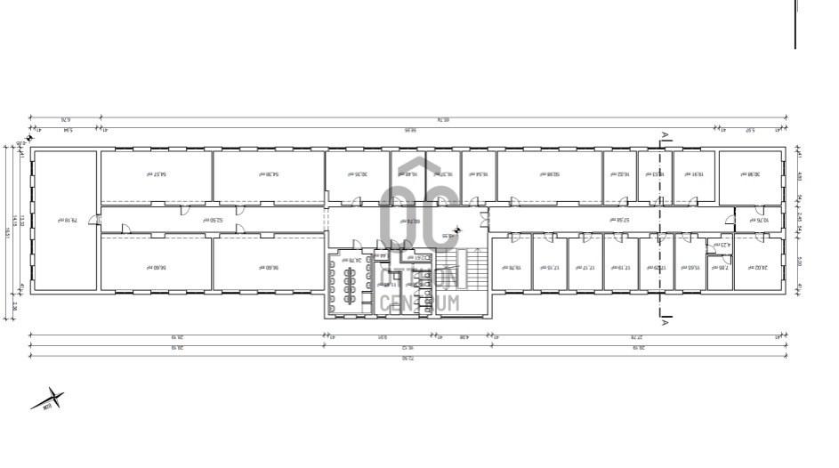
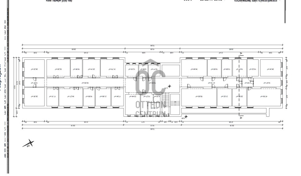
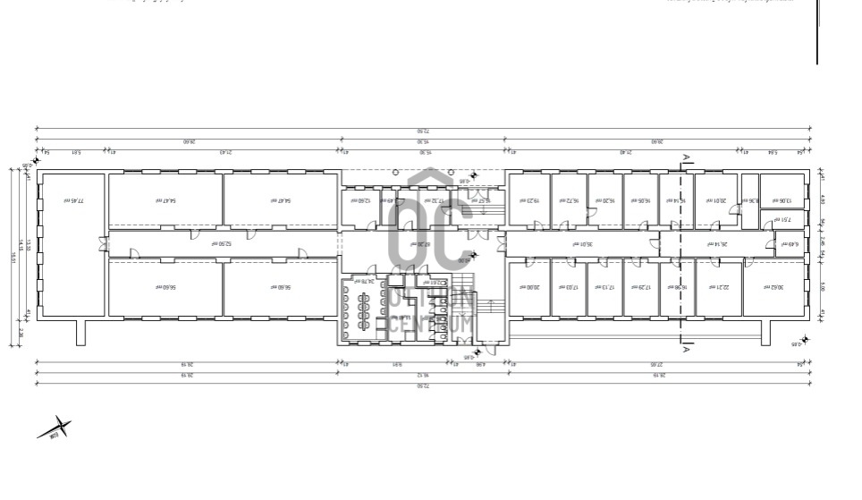
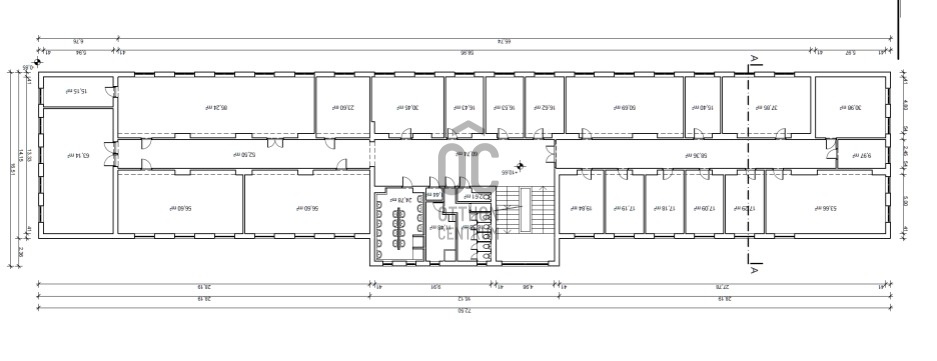
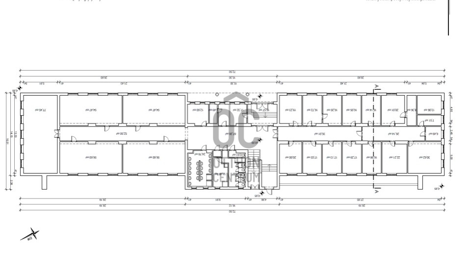
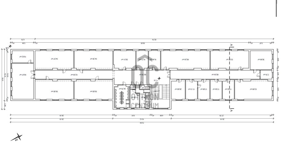
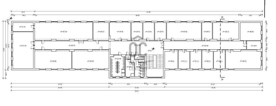
An industrial park in Kiskunfélegyháza is seeking a new owner for a 5-story property with 1000 square meters per floor. The utilities are within the property line and the 6700 square meter plot can be separated. It is located just a few minutes from the highway and has excellent accessibility. It can be used as a hotel, office building, or production facility. Currently, it is without function and in need of renovation, waiting for a new owner. For inquiries, please call 06-70-454-1819.

Registration Number

BI000488

Property Details

Sales
for sale
Character
developmental
Type of Development
Entire building
Subtype of Development
industrial
Net Size
4,408 m²
Plot Size
6,475 m²
Above-Ground Net Size
4,408 m²
Developable Net Size
4,408 m²
Developable Above-Ground Net Size
4,408 m²
Ceiling Height
275 cm
Number of Levels Within the Property
4
View
Green view
Condition
To be renovated
Condition of Facade
Below average
Year of Construction
1960
Electricity
Available

 

Developable Property
Apartment 10-50 units, Office, Hotel, Guesthouse
Visibility
Easily visible from busy main road
Accessibility
Property located within a site

From Our Office Listings - XVIII. kerület - Gilice tér

eladó lakás

Index image
Elérhető Otthon Start hitellel
14

for sale apartment

Index image
data_sheet.details.realestate.section.main.otthonstart_flag.label
11

for sale row house

Index image
data_sheet.details.realestate.section.main.otthonstart_flag.label
15

for sale family house

Index image
data_sheet.details.realestate.section.main.otthonstart_flag.label
32

for sale apartment

Index image
28

for sale apartment

Index image
14

for sale family house

Index image
31

for sale apartment

Index image
data_sheet.details.realestate.section.main.otthonstart_flag.label
11