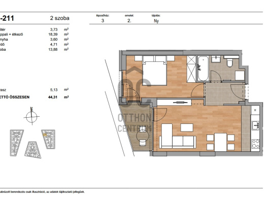
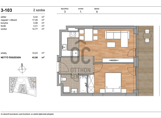
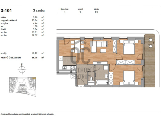
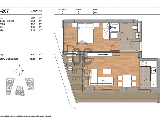
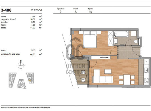
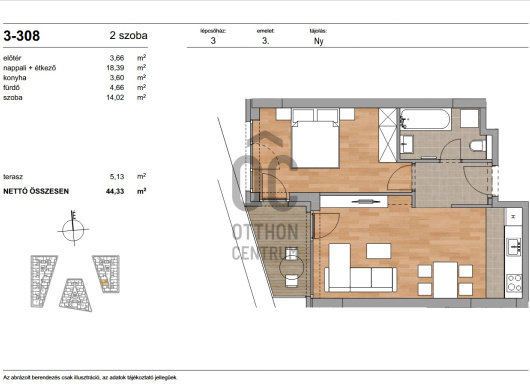
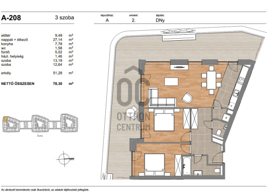
Aquavista Danube projekt ingatlanjai

131 property
12 / 131 properties