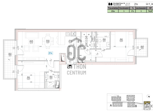
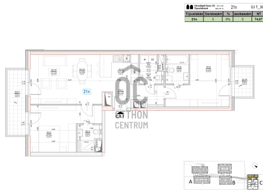
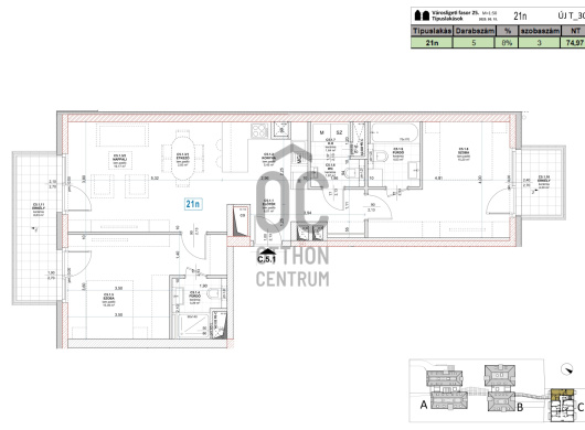
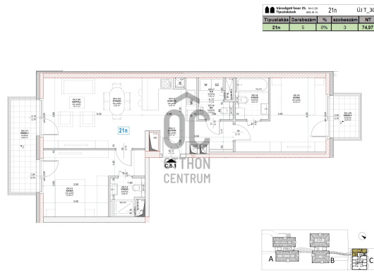
LIGET VILLA projekt ingatlanjai

44 property
12 / 44 properties