A Belváros központhoz közeli részén kerül kivitelezésre ez a JÖVŐSZERŰ, több lakásméretben gazdag, egyedi tervezésű, 16 lakásos, liftes társasház.
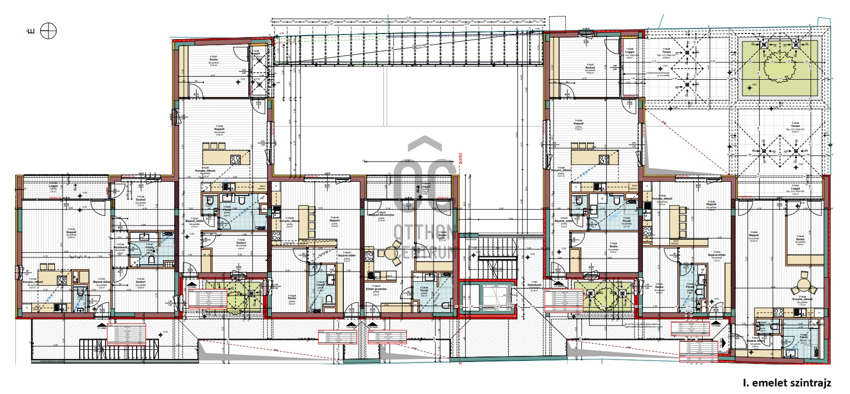
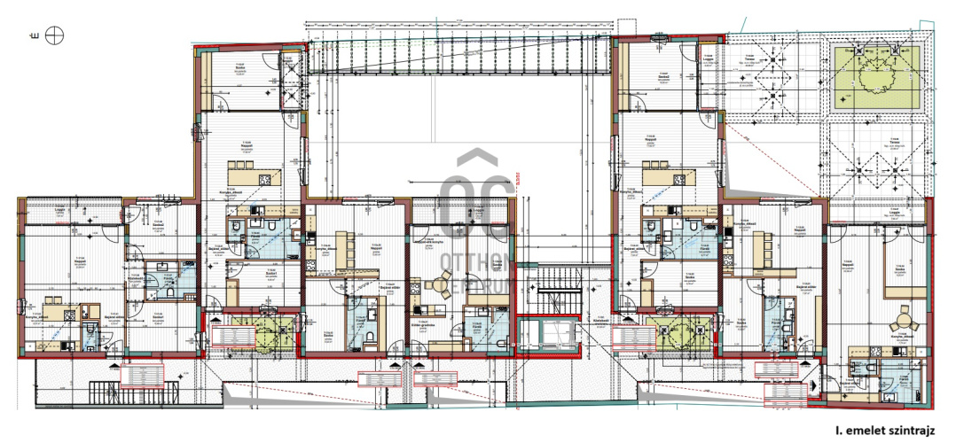
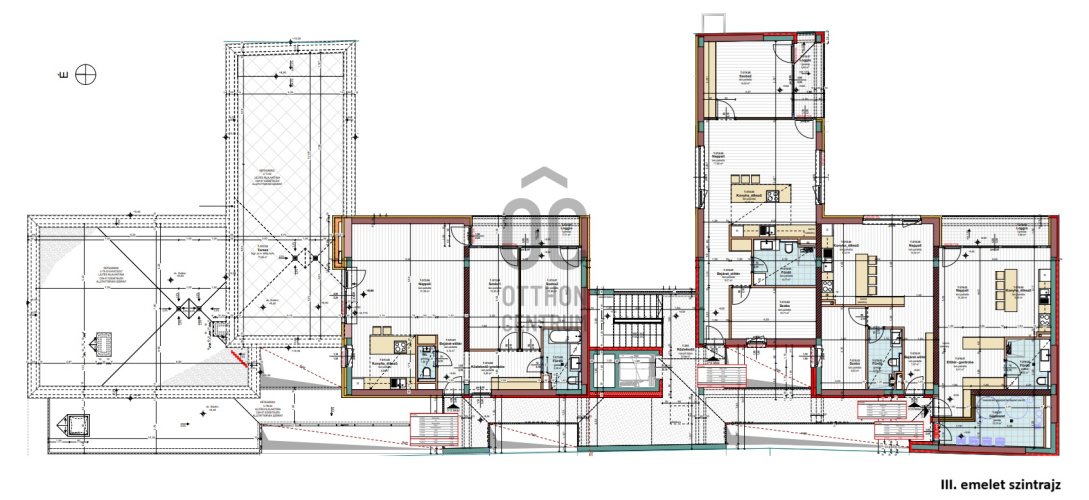
Tekintse meg és válasszon a még elérhető 70 nm feletti, erkélyes, nappali + 2 szobás vagy 44 nm-es nappali +1 szobás lakáskínálatból!
A 3 emeletes társasház két utcáról is megközelíthető, belső, parkosított udvaron keresztül gyalogosan, míg gépkocsival saját/privát útszakaszon közlekedhetnek.
Változatos homlokzati megoldások, jobb tájolás, izgalmas belső bevilágító udvarok, így nincs átlátás!
Függőfolyosó, lépcsők és lift segítik a lakások gyors megközelítését!
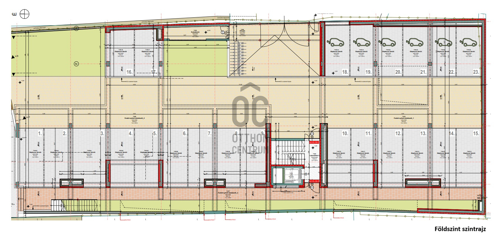
Gépkocsi beállók ( 7,2 MFt/db) a földszinti pillér lábak között lettek kialakítva és mindegyik autótöltővel felszerelt.
A lakások belső kialakításához neves belsőépítész készített terveket, melyek segítséget nyújthatnak a berendezéshez!
Műszaki adatok:
- teherhordó falak Porotherm 30 N+F
- belső térelválasztó falak 10 N+F (NEM gipszkarton)
- hőszigetelése előírásnak megfelelő Grafit Reflex
- gépészet lakásonként egyedileg tervezett
- nyílászárók 3 rtg. műanyag, hőszigetelt üvegezéssel
- beépített elektromos, távirányítós redőnyök
- lakásonként hőcserélős szellőztetés
- padlófűtés és mennyezet fűtés - hűtés, melegvíz
- házközponti Daikin hőszivattyúval (lakásonként egyedi hőmennyiség méréssel)
- laminált parketta (8.000.-Ft/nm) greslap (10.000.-Ft/nm)
- minőségi szaniterek (Grohe, Villeroy&Boch)
- épített zuhanykabin vagy kád egyedi igény esetén
Többféle fizetési lehetőség, CSOK +, egyedi hitelek, melynek kalkulációjában segíthetünk, ha igényli!
Idei kezdés, 2026. év végi átadás.
Tekintse meg és válasszon a még elérhető 70 nm feletti, erkélyes, nappali + 2 szobás vagy 44 nm-es nappali +1 szobás lakáskínálatból!
A 3 emeletes társasház két utcáról is megközelíthető, belső, parkosított udvaron keresztül gyalogosan, míg gépkocsival saját/privát útszakaszon közlekedhetnek.
Változatos homlokzati megoldások, jobb tájolás, izgalmas belső bevilágító udvarok, így nincs átlátás!
Függőfolyosó, lépcsők és lift segítik a lakások gyors megközelítését!
Gépkocsi beállók ( 7,2 MFt/db) a földszinti pillér lábak között lettek kialakítva és mindegyik autótöltővel felszerelt.
A lakások belső kialakításához neves belsőépítész készített terveket, melyek segítséget nyújthatnak a berendezéshez!
Műszaki adatok:
- teherhordó falak Porotherm 30 N+F
- belső térelválasztó falak 10 N+F (NEM gipszkarton)
- hőszigetelése előírásnak megfelelő Grafit Reflex
- gépészet lakásonként egyedileg tervezett
- nyílászárók 3 rtg. műanyag, hőszigetelt üvegezéssel
- beépített elektromos, távirányítós redőnyök
- lakásonként hőcserélős szellőztetés
- padlófűtés és mennyezet fűtés - hűtés, melegvíz
- házközponti Daikin hőszivattyúval (lakásonként egyedi hőmennyiség méréssel)
- laminált parketta (8.000.-Ft/nm) greslap (10.000.-Ft/nm)
- minőségi szaniterek (Grohe, Villeroy&Boch)
- épített zuhanykabin vagy kád egyedi igény esetén
Többféle fizetési lehetőség, CSOK +, egyedi hitelek, melynek kalkulációjában segíthetünk, ha igényli!
Idei kezdés, 2026. év végi átadás.












