OTTHON CENTRUM
About Us
About Us
About Us
Analytic Division
Our Offices
Contact
Our Offices
Legal Information
Data Management Information
Announcements
Imprint
Financial Rules
Service Statement
Legal Statement
Manage Privacy
HU
Fonyód Liget Residence
Fonyód
Reg. Number:
P4525
Expected Handover
2025 03.
Price Range
47.9-74.6 MFt
124,000-193,000 €
Number of Properties
5 pcs
Size of Properties
23.65-44.88 m²
Rooms
1-3 rooms
Any
Any
For Sale
For Rent
Leasehold
Any
Any
apartment
house
vacation home
plot
garage
commercial
agricultural
developmental
City, District, Neighborhood
0
selected
-
Price in M Ft
m Ft
-
Price in e Ft
e Ft
-
Size m²
m²
-
Rooms count
pcs
Search
Video Presentations
Search
Registration Number
Projects
Advanced Search
Exclusive Commission
Virtual Tour
Price Guaranteed
Bank Property
Legal Status
Any
Any
Used
New
Type
Any
Family house
Semi-detached house
Row house
House part
Farmhouse
Type
Any
Apartment
House
Type
Any
Building plot
Development plot
Type
Any
Individual
Garage hall
Function
Any
Retail
Hospitality unit
Stand-alone office building
Office
Office and shop
Office and warehouse
Showroom
Showroom and warehouse
Industrial hall or warehouse
Logistics center
Parking garage
Hotel
Guesthouse
Sports center
Healthcare center
Educational center
Agricultural site
Tenement house
Press house
Other
Type
Any
Entire building
Part of building
Construction Method
Any
Brick
Panel
Ytong
Lightweight Structure
Slipform
Prokoncept
Silicate
Bauxite Concrete
Aerated Concrete
Slag Block
Ceramic
Prefab House
Stone
Log House
Adobe
Mixed Masonry
Other
Heating
Any
none
Gas Circulator
Gas Convector
Tile Stove (Gas)
gas
Mixed Circulator
Tile Stove (Mixed)
Mixed Fan-Coil
Electric Circulator
Tile Stove (Electric)
Electric Fan-Coil
Electric Stove
Electric, Infrared
Coal Circulator
Tile Stove (Coal)
Coal Fan-Coil
Stove (Coal)
Individual District Heating
District Heating
Central Heating
Unmetered Central Heating
Renewable
Other
Gas Boiler
Mixed Fuel Boiler
Heat Pump
Heat Pump (Air-Air)
Heat Pump (Air-Water)
Heat Pump Fan-Coil
Heat Pump Underfloor Heating
Condition
Any
To Be Demolished
To Be Renovated
Average
Good
Excellent
View
Any
Street View
Courtyard View
Garden View
Staircase Type
Any
Corridor
Enclosed Staircase
Suspended Corridor
None
Number of Bathrooms
Floor
Any
-5th floor
-4th floor
-3rd floor
-2nd floor
-1st floor
basement
sub-basement
semi-basement
ground floor
raised ground floor
mezzanine
1st floor
2nd floor
3rd floor
4th floor
5th floor
6th floor
7th floor
8th floor
9th floor
10th floor
11th floor
12th floor
13th floor
14th floor
15th floor
16th floor
17th floor
18th floor
19th floor
20th floor
Any
-5th floor
-4th floor
-3rd floor
-2nd floor
-1st floor
basement
sub-basement
semi-basement
ground floor
raised ground floor
mezzanine
1st floor
2nd floor
3rd floor
4th floor
5th floor
6th floor
7th floor
8th floor
9th floor
10th floor
11th floor
12th floor
13th floor
14th floor
15th floor
16th floor
17th floor
18th floor
19th floor
20th floor
Registration Number
Year of Construction
Description
Otthon Start loan
Close
Search
Where are you looking?
No Results
Remove All
Budapest
Countryside
Budapest I. kerület
Budapest II. kerület
Budapest II/A. kerület
Budapest III. kerület
Budapest IV. kerület
Budapest V. kerület
Budapest VI. kerület
Budapest VII. kerület
Budapest VIII. kerület
Budapest IX. kerület
Budapest X. kerület
Budapest XI. kerület
Budapest XII. kerület
Budapest XIII. kerület
Budapest XIV. kerület
Budapest XV. kerület
Budapest XVI. kerület
Budapest XVII. kerület
Budapest XVIII. kerület
Budapest XIX. kerület
Budapest XX. kerület
Budapest XXI. kerület
Budapest XXII. kerület
Budapest XXIII. kerület
Budapest
budai oldal
pesti oldal
budai agglomeráció
pesti agglomeráció
Bács-Kiskun vármegye
Baranya vármegye
Békés vármegye
Borsod-Abaúj-Zemplén vármegye
Csongrád-Csanád vármegye
Fejér vármegye
Győr-Moson-Sopron vármegye
Hajdú-Bihar vármegye
Heves vármegye
Jász-Nagykun-Szolnok vármegye
Komárom-Esztergom vármegye
Nógrád vármegye
Pest vármegye
Somogy vármegye
Szabolcs-Szatmár-Bereg vármegye
Tolna vármegye
Vas vármegye
Veszprém vármegye
Zala vármegye
Baja
Békéscsaba
Debrecen
Dunaújváros
Eger
Esztergom
Érd
Győr
Hódmezővásárhely
Miskolc
Nagykanizsa
Nyíregyháza
Pécs
Salgótarján
Sopron
Szeged
Székesfehérvár
Szekszárd
Szolnok
Szombathely
Tatabánya
Veszprém
Zalaegerszeg
Balaton északi part
Balaton déli part
Fonyód Liget Residence projekt ingatlanjai
3 property
Relevance
Price Ascending
Price Descending
Size Ascending
Size Descending
Price per Sqm Ascending
Price per Sqm Descending
Modify Search
for sale new construction apartment
Back
Next
1/1
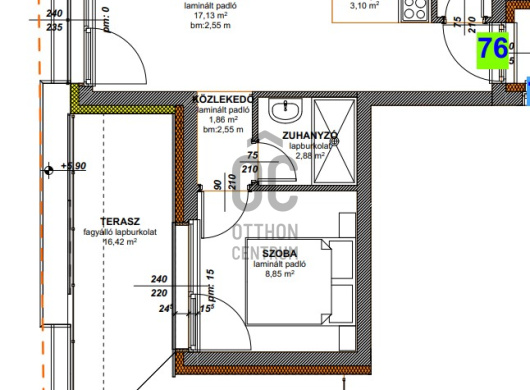
for sale new construction apartment
Back
Next
data_sheet.details.realestate.section.main.otthonstart_flag.label
1/2
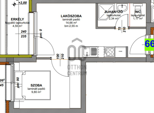
for sale new construction apartment
Back
Next
1/2
Modify Search
3
/ 3 properties