74,675,000 Ft
193,000 €
- 43.4m²
- 3 Rooms
- 1st floor
Modern lakás Fonyódon
Köszöntöm kedves érdeklődőt, aki az ingatlanpiac legújabb ajánlatait böngészi!
Szeretném figyelmébe ajánlani a legfrissebb eladó ingatlanunkat, mely egy vadonatúj lakás Fonyódon. Az ingatlan Somogy vármegyében fekszik, ahol a gyönyörű Balaton-parti város, Fonyód várja az új tulajdonosokat. A környék csendes és biztonságos, így ideális választás bármelyik korosztálynak legyen, idős, középkorú, fiatalkorú vásárlóinknak, akik szeretnének egy nyugodt, kellemes környezetben nem csak pihenni, hanem akár életvitelszerűen élni minden nap.
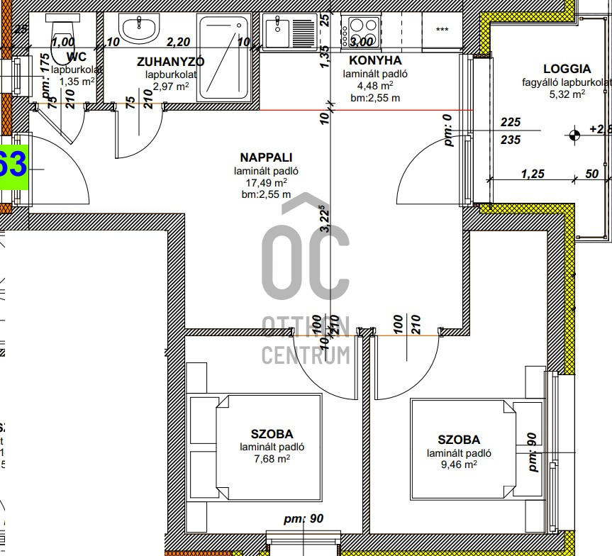
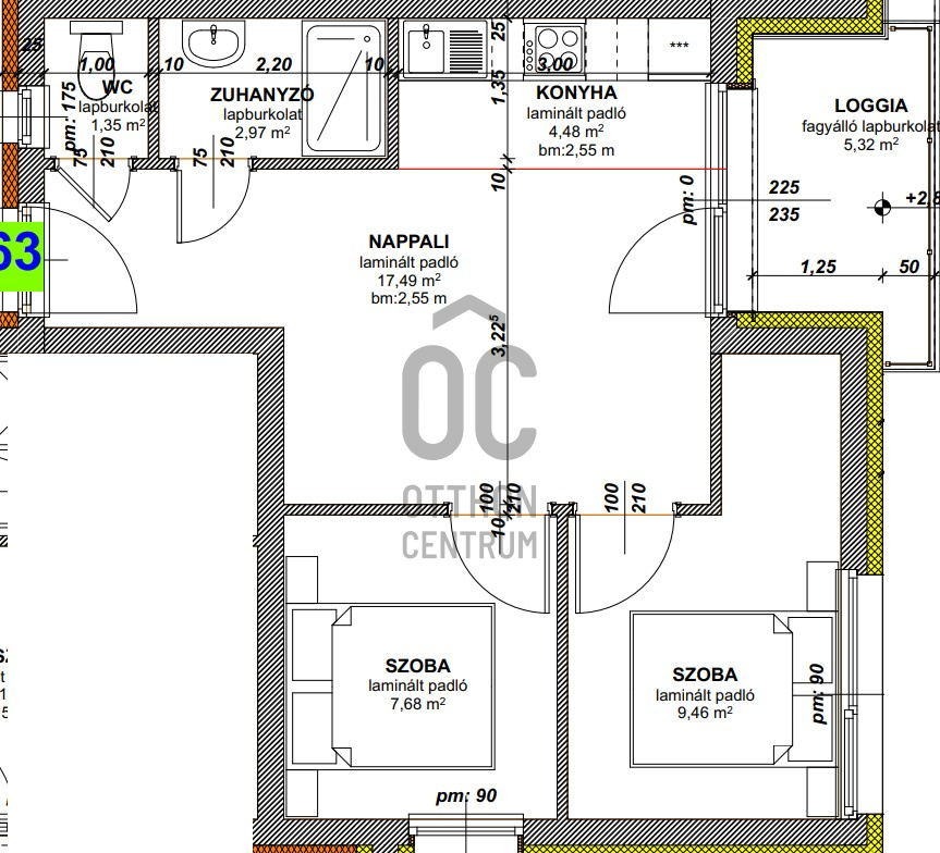
Az ingatlan kiváló állapotban van, 1. emeleti garzon 43,43 nm alapterületű konyha, nappali, 2 hálószoba, külön fürdőszoba, külön wc helyiséggel, és 5,32 nm erkéllyel rendelkezik.A lakás fűtése és hűtése hőszivattyús rendszerrel történik, így az energiaköltségek alacsonyak és környezetbarát megoldást kínálnak. A környék előnyös adottságai közé tartozik, hogy a közlekedési lehetőségek kiválóak, így akár autóval, akár tömegközlekedéssel is könnyen elérhető. A közeli buszmegállók és vasútállomások lehetővé teszik, hogy könnyen eljuthasson a városközpontba vagy a környező településekbe. A környék további előnyei közé tartozik a gyönyörű természeti környezet, ahol a Balaton és a környező szőlődombok között számos kirándulási lehetőség várja az aktív életmód kedvelőit.
Fizetési ütemezés:
szerződéskötéskor foglaló 10%
Alapozási munkák elkészültekor 20%
II.em.födém betonozásának elkészültekor 30%
Gépészeti, villamos alapszerelés elkészültekor 30%
Műszaki átadást követő 8 nap5%
Jogerős hasz.vételi engedély megszerzését követő 8 nap5%
A várható birtokba adás 2027. január 31-ig megtörténik.
Ha bármilyen kérdése van az ingatlannal kapcsolatban, ne habozzon felvenni velünk a kapcsolatot. Ügyfélszolgálatunk készen áll arra, hogy segítsen Önnek a vásárlási folyamat minden szakaszában. Várjuk érdeklődését!
Szeretném figyelmébe ajánlani a legfrissebb eladó ingatlanunkat, mely egy vadonatúj lakás Fonyódon. Az ingatlan Somogy vármegyében fekszik, ahol a gyönyörű Balaton-parti város, Fonyód várja az új tulajdonosokat. A környék csendes és biztonságos, így ideális választás bármelyik korosztálynak legyen, idős, középkorú, fiatalkorú vásárlóinknak, akik szeretnének egy nyugodt, kellemes környezetben nem csak pihenni, hanem akár életvitelszerűen élni minden nap.
Az ingatlan kiváló állapotban van, 1. emeleti garzon 43,43 nm alapterületű konyha, nappali, 2 hálószoba, külön fürdőszoba, külön wc helyiséggel, és 5,32 nm erkéllyel rendelkezik.A lakás fűtése és hűtése hőszivattyús rendszerrel történik, így az energiaköltségek alacsonyak és környezetbarát megoldást kínálnak. A környék előnyös adottságai közé tartozik, hogy a közlekedési lehetőségek kiválóak, így akár autóval, akár tömegközlekedéssel is könnyen elérhető. A közeli buszmegállók és vasútállomások lehetővé teszik, hogy könnyen eljuthasson a városközpontba vagy a környező településekbe. A környék további előnyei közé tartozik a gyönyörű természeti környezet, ahol a Balaton és a környező szőlődombok között számos kirándulási lehetőség várja az aktív életmód kedvelőit.
Fizetési ütemezés:
szerződéskötéskor foglaló 10%
Alapozási munkák elkészültekor 20%
II.em.födém betonozásának elkészültekor 30%
Gépészeti, villamos alapszerelés elkészültekor 30%
Műszaki átadást követő 8 nap5%
Jogerős hasz.vételi engedély megszerzését követő 8 nap5%
A várható birtokba adás 2027. január 31-ig megtörténik.
Ha bármilyen kérdése van az ingatlannal kapcsolatban, ne habozzon felvenni velünk a kapcsolatot. Ügyfélszolgálatunk készen áll arra, hogy segítsen Önnek a vásárlási folyamat minden szakaszában. Várjuk érdeklődését!
Registration Number
P4525-A-01-01-063
Property Details
Sales
for sale
Legal Status
new
Character
apartment
Construction Method
brick
Net Size
43.4 m²
Gross Size
48.7 m²
Size of Terrace / Balcony
5.3 m²
Heating
heat pump
Ceiling Height
255 cm
Number of Levels Within the Property
1
Orientation
East
Staircase Type
enclosed staircase
Condition
Excellent
Condition of Facade
Excellent
Condition of Staircase
Excellent
Neighborhood
quiet, good transport, green
Year of Construction
2025
Number of Bathrooms
1
Position
courtyard-facing
Garage
Separately purchasable
Water
Available
Electricity
Available
Sewer
Available
Elevator
available
Storage
Separately purchasable
Distance to Waterfront
200 meters
Rooms
living room
17.49 m²
kitchen
4.48 m²
room
7.68 m²
room
9.46 m²
bathroom
2.97 m²
toilet
1.35 m²
balcony
5.32 m²
Dienes László
Credit Expert