400 000 Ft
1 030 €
- 70m²
- földszint





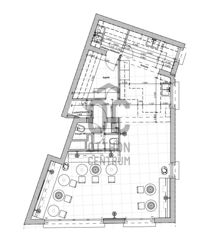
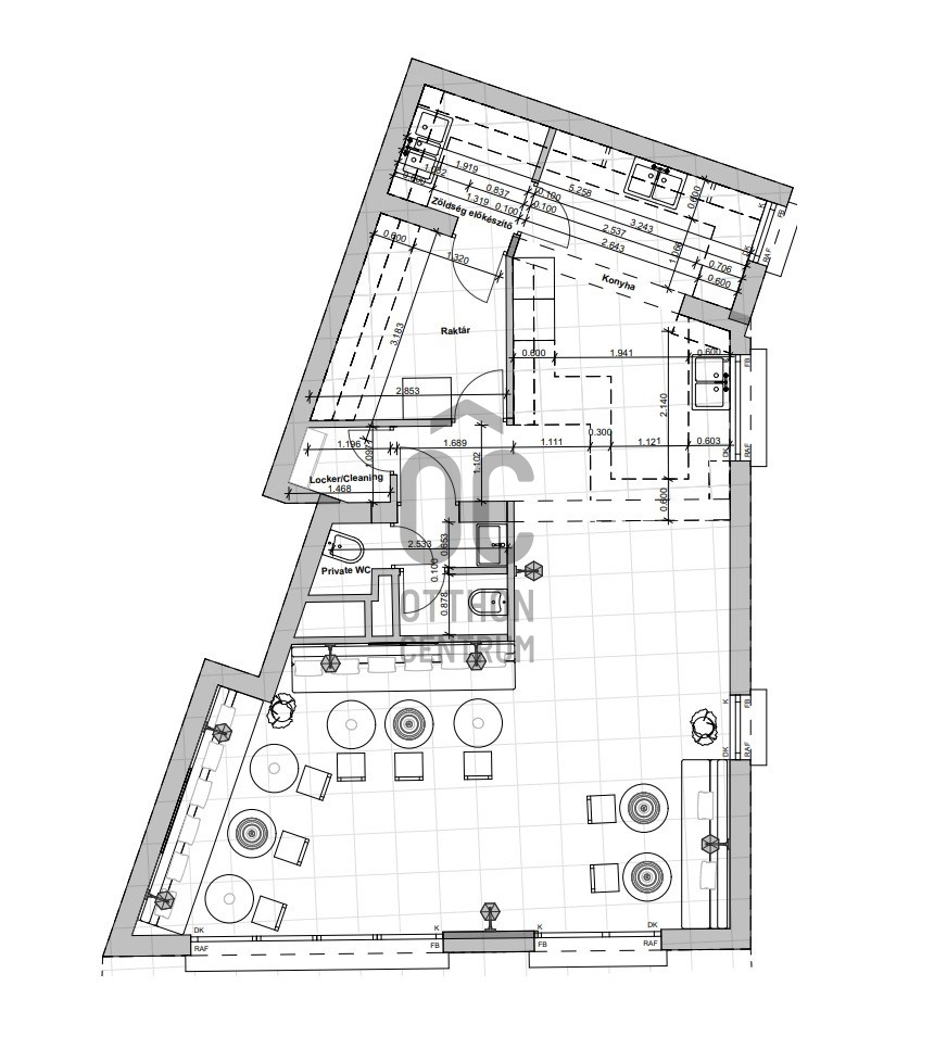
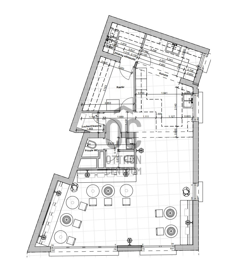
Debrecen belvárosának szívében,nagy gyalogos forgalmú díszburkolatos utcában, a város egyik legfrekventáltabb helyén, 2008-ban épült társasház földszintjén bisztró-kávéház-bárként is üzemelő, frissen felújított, klimatizált, meleg-konyhás, 70 nm-es (+bérelhető 33 nm terasz) vendéglátóegység tulajdonjoga teljes berendezéssel kiadó.
Regisztrációs szám
UZ018910
Az ingatlan adatai
Értékesités
kiadó
Jogi státusz
használt
Jelleg
üzleti célú
Típus
épületrész
Építési mód
tégla
Méret
70 m²
Terasz / erkély mérete
33 m²
Föld feletti nettó méret
70 m²
Fűtés
Gáz cirkó
Belmagasság
400 cm
Állapot
Kiváló
Homlokzat állapota
Kiváló
Lépcsőház állapota
Kiváló
Építés éve
2007
Víz
Van
Gáz
Van
Villany
Van
Csatorna
Van
Lift
van
Lehetséges funkciók
kiskereskedelem, vendéglátóipari egység, iroda, iroda és bemutatóterem, vagy üzlet, iroda és raktár, bemutatóterem, bemutatóterem és szervíz, vagy raktár
Hasznosítás
üres

Plébán László
Hitelszakértő