48 000 000 Ft
126 000 €
- 139m²
- szuterén
Szív utcában az Andrássy út mellett nagy méretű felújitandó, szuterén műhely, üzlet eladó
- Kitűnő közlekedési feltételek mellett, M1 Metro
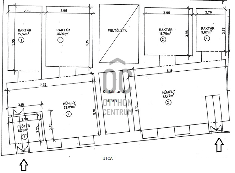
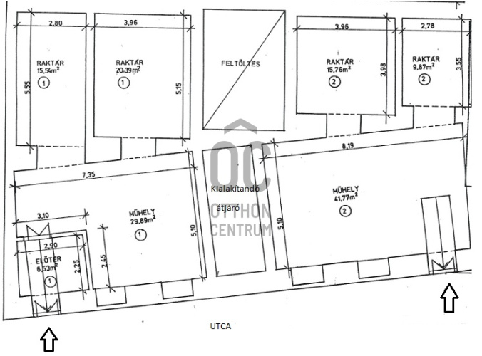
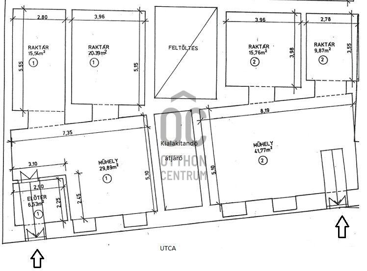
- Nagy méretű, 72 + 67 nm, több helyiségből álló, két helyrajzi számmal rendelkező műhely, mely kis átalakítással egybe nyitható
- Utcáról megközelíthető, két külön bejárattal
- Közművekkel ellátott
- Felújitandó
- Több hasznosításra alkalmas, felújítás esetén üzletnek, kávézónak, cégképviseletnek, bemutatóteremnek, műhelyként hasznosítható
- A társasház tetőterében luxus lakások lesznek kialakítva, vélhetően igény lehet a továbbiakban a társasház részére akár fitnesz teremre, akár bármilyen közösségi térre is kiválóan alkalmas az ingatlan.
Amennyiben a belvárosban, bejárattalközponti helyen keres, több célra alkalmas kitűnő ár-értékarányú nagy alapterületű felújítandó műhelyt, üzlethelyiséget, várom megtisztelő megkeresését.
- Nagy méretű, 72 + 67 nm, több helyiségből álló, két helyrajzi számmal rendelkező műhely, mely kis átalakítással egybe nyitható
- Utcáról megközelíthető, két külön bejárattal
- Közművekkel ellátott
- Felújitandó
- Több hasznosításra alkalmas, felújítás esetén üzletnek, kávézónak, cégképviseletnek, bemutatóteremnek, műhelyként hasznosítható
- A társasház tetőterében luxus lakások lesznek kialakítva, vélhetően igény lehet a továbbiakban a társasház részére akár fitnesz teremre, akár bármilyen közösségi térre is kiválóan alkalmas az ingatlan.
Amennyiben a belvárosban, bejárattalközponti helyen keres, több célra alkalmas kitűnő ár-értékarányú nagy alapterületű felújítandó műhelyt, üzlethelyiséget, várom megtisztelő megkeresését.
Regisztrációs szám
UZ018706
Az ingatlan adatai
Értékesités
eladó
Jogi státusz
használt
Jelleg
üzleti célú
Típus
épületrész
Építési mód
tégla
Méret
139 m²
Föld feletti nettó méret
139 m²
Belmagasság
300 cm
Panoráma
városi panoráma
Állapot
Felújítandó
Homlokzat állapota
Átlagos
Lépcsőház állapota
Átlagos
Építés éve
1920
Víz
Van
Gáz
Van
Villany
Van
Csatorna
Van
Lift
van
Lehetséges funkciók
vendéglátóipari egység, iroda, iroda és raktár, bemutatóterem, bemutatóterem és szervíz, vagy raktár
Láthatóság
Mellékutcában utcafronton lévő
Megközelíthetőseg
Mellékutcára nyíló bejárat
Hasznosítás
üres
Vitéz Kornél
Hitelszakértő