850 000 000 Ft
2 170 000 €
- 800m²
- földszint


























KIZÁRÓLAG AZ OTTHON CENTRUMNÁL,
KIZÁRÓLAG NÁLAM!
Amikor befektetési lehetőséget keresünk, a hirdetésekben mindig olvassuk a rengeteg elcsépelt kifejezést, marketinges szlogeneket, ami már a könyökünkön jön ki!
Itt,
ezen CSOMAG esetében beszéljenek inkább a tények:
- 2020-ban épült társasház
- Korszerű
- Energetikailag kifejezetten hatékony
- Újszerű, RÁFORDÍTÁSMENTES
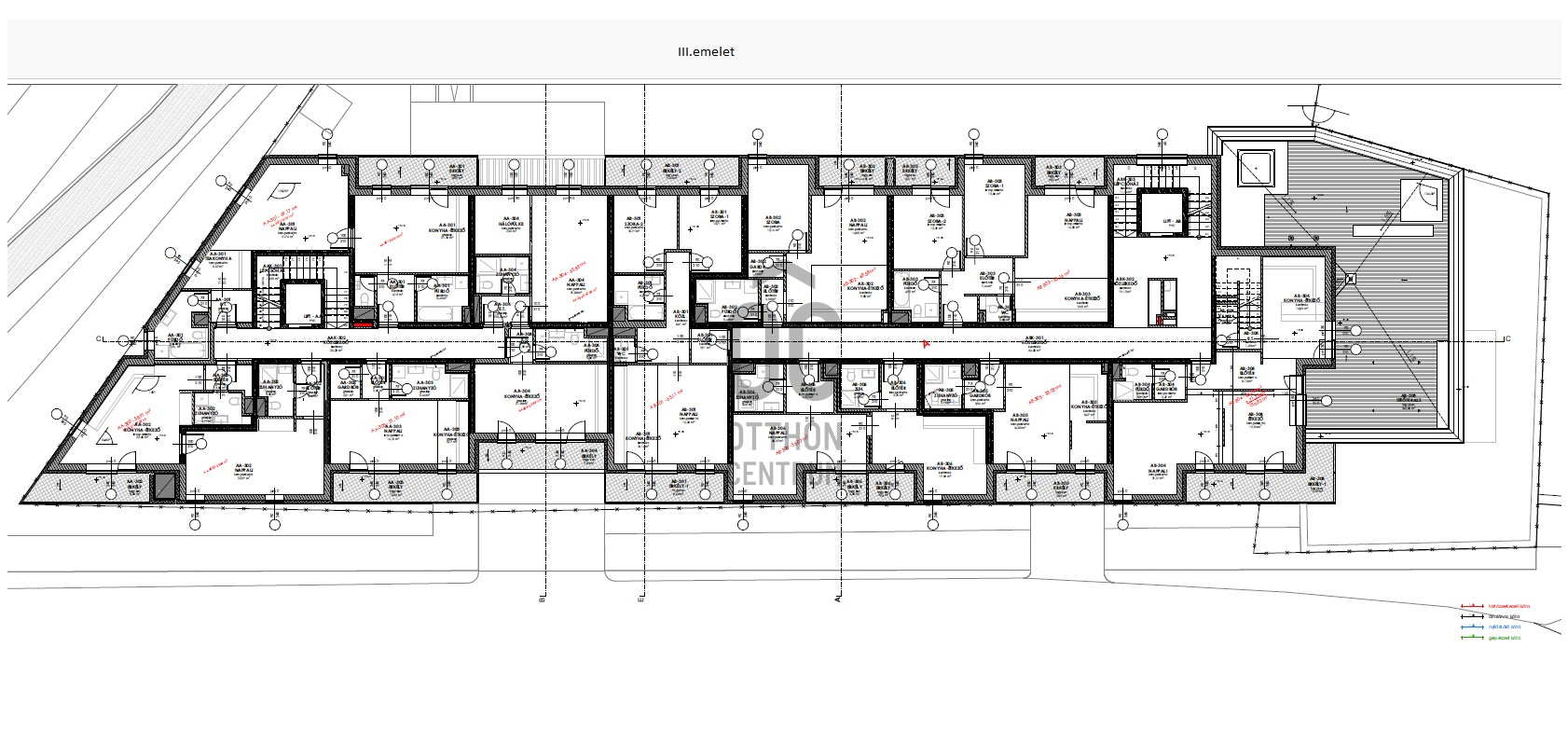
- 14 db erkélyes lakás/apartman
- Földszinti étterem, kávézó, iroda
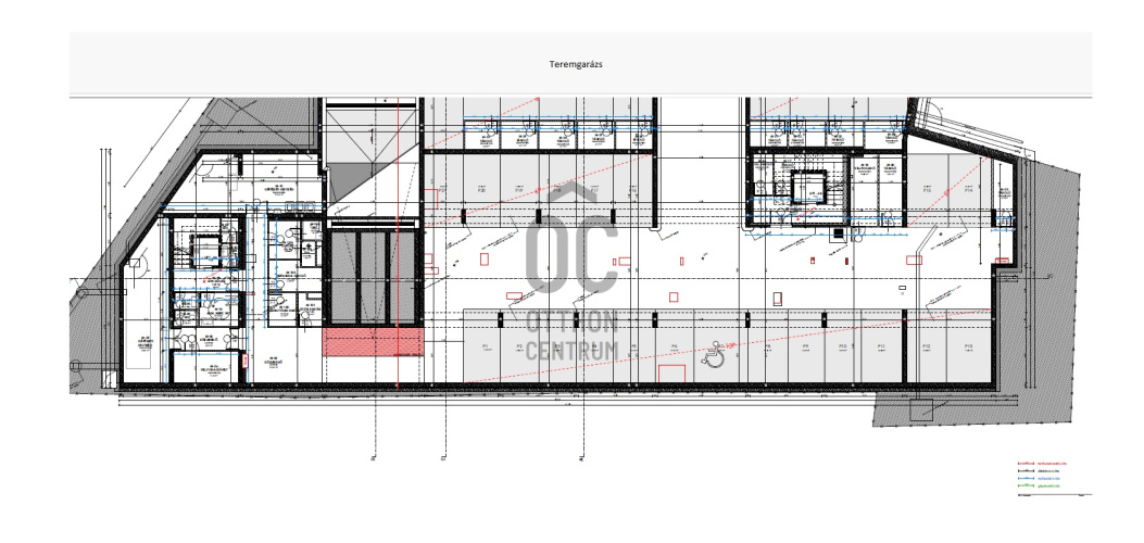
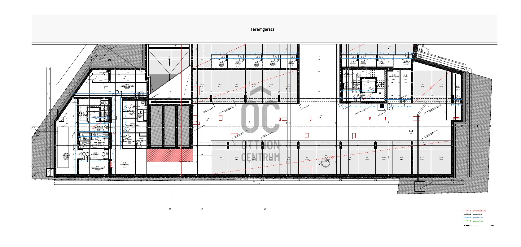
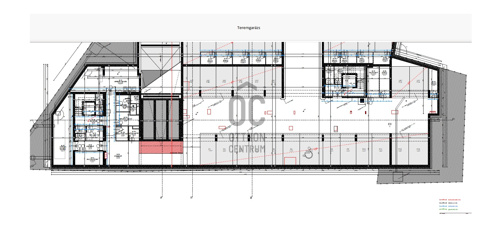
- 14 db teremgarázsi beálló
- Megannyi tároló hozzá
- Megtérülési idő 14-17 év, ami szintén nagyon ritka a mostani piacon!
Összehasonlíthatatlan a jelenlegi piacon!
Nemcsak ingatlanokat veszünk, hanem kifejezetten keresett befektetésbe tesszük a pénzünket!
Példátlan, egyedülálló, magas minőségű invesztíció!
Magabiztosságra ad okot, hogy a leendő Vevőnek a jelenlegi Tulajdonos akár tovább is működtetné az ingatlanok bérbeadását!
A képek és a videó mind magukért beszélnek, mindegyik ingatlan magas minőségben, prémium anyagokból épült, ami belső enteriőrön is visszaköszön.
A földszinti étterem, kávézó, hozzá tartozó iroda, minőségre éhes ügyfélkörrel, gyönyörű kialakításban a csomag része! Nem kötelezően van összekapcsolva, jelenleg az árban benne van, a komplett berendezéseivel, magas minőségű konyhatechnikai kialakításával együtt.
Teremgarázs zárható, 14 db gépjármű befogadására képes. Szintén a csomag része.
Nyilván tisztában vagyunk azzal, hogy egy újszerű társasházban a teremgarázsok értéke a Győr-Belvárosában az elmúlt években megkétszereződött, nem ritka a 10-11 Millió Forint /db.
Szintén a csomag része 12 db tároló, ami megint egy nem csekély összeg, de ez teszi teljessé.
Egy egyedülálló befektetés, presztízs is egyben melynek az értéke a következő években nem csökken!
Tudd biztos helyen a pénzed!
Kérdéseiddel, észrevételeiddel keressél bátran!
Köszönöm!
KIZÁRÓLAG NÁLAM!
Amikor befektetési lehetőséget keresünk, a hirdetésekben mindig olvassuk a rengeteg elcsépelt kifejezést, marketinges szlogeneket, ami már a könyökünkön jön ki!
Itt,
ezen CSOMAG esetében beszéljenek inkább a tények:
- 2020-ban épült társasház
- Korszerű
- Energetikailag kifejezetten hatékony
- Újszerű, RÁFORDÍTÁSMENTES
- 14 db erkélyes lakás/apartman
- Földszinti étterem, kávézó, iroda
- 14 db teremgarázsi beálló
- Megannyi tároló hozzá
- Megtérülési idő 14-17 év, ami szintén nagyon ritka a mostani piacon!
Összehasonlíthatatlan a jelenlegi piacon!
Nemcsak ingatlanokat veszünk, hanem kifejezetten keresett befektetésbe tesszük a pénzünket!
Példátlan, egyedülálló, magas minőségű invesztíció!
Magabiztosságra ad okot, hogy a leendő Vevőnek a jelenlegi Tulajdonos akár tovább is működtetné az ingatlanok bérbeadását!
A képek és a videó mind magukért beszélnek, mindegyik ingatlan magas minőségben, prémium anyagokból épült, ami belső enteriőrön is visszaköszön.
A földszinti étterem, kávézó, hozzá tartozó iroda, minőségre éhes ügyfélkörrel, gyönyörű kialakításban a csomag része! Nem kötelezően van összekapcsolva, jelenleg az árban benne van, a komplett berendezéseivel, magas minőségű konyhatechnikai kialakításával együtt.
Teremgarázs zárható, 14 db gépjármű befogadására képes. Szintén a csomag része.
Nyilván tisztában vagyunk azzal, hogy egy újszerű társasházban a teremgarázsok értéke a Győr-Belvárosában az elmúlt években megkétszereződött, nem ritka a 10-11 Millió Forint /db.
Szintén a csomag része 12 db tároló, ami megint egy nem csekély összeg, de ez teszi teljessé.
Egy egyedülálló befektetés, presztízs is egyben melynek az értéke a következő években nem csökken!
Tudd biztos helyen a pénzed!
Kérdéseiddel, észrevételeiddel keressél bátran!
Köszönöm!
Regisztrációs szám
UZ018545
Az ingatlan adatai
Értékesités
eladó
Jogi státusz
használt
Jelleg
üzleti célú
Típus
épületrész
Építési mód
tégla
Méret
800 m²
Telek méret
1 400 m²
Terasz / erkély mérete
128 m²
Föld feletti nettó méret
800 m²
Fűtés
központi fűtés
Belmagasság
260 cm
Panoráma
városi panoráma
Állapot
Kiváló
Homlokzat állapota
Kiváló
Lépcsőház állapota
Kiváló
Építés éve
2020
Víz
Van
Gáz
Van
Villany
Van
Csatorna
Van
Lift
van
Lehetséges funkciók
panzió, hostel
Láthatóság
Mellékutcában utcafronton lévő
Megközelíthetőseg
Forgalmas főútról nyíló bejárat
Hasznosítás
bérbe adott
Havi bérleti díj
1

Dr. Táncos Mónika
Hitelszakértő