Elérhető Otthon Start hitellel
Eladó újépítésű ikerház, U0049565
Dömsöd

64 900 000 Ft

166 000 €

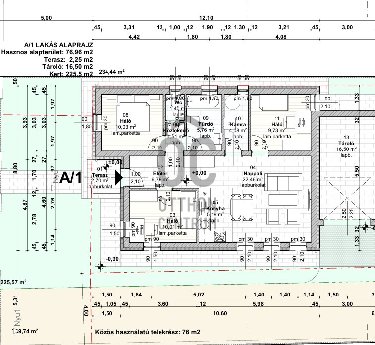
  • 76,9m²
  • 4 szoba

Dömsödön eladó

• újépítésű
• ikerház első része
• nettó 76,96m2, bruttó 93,46 m2
• amerikai konyhás nappali + 3 hálószoba
• fűtés: hőszivattyú + padlófűtés
• 15 cm grafitos szigetelés
• gres kerámia és laminált parketta
• telek: 225,5 m2
• terasz: 2,7 m2

Regisztrációs szám

U0049565

Az ingatlan adatai

Értékesités
eladó
Jogi státusz
új
Jelleg
ház
Építési mód
tégla
Méret
76,9 m²
Bruttó méret
93,4 m²
Telek méret
225,5 m²
Terasz / erkély mérete
2,7 m²
Kert méret
225 m²
Fűtés
hőszivattyú
Belmagasság
265 cm
Tájolás
Dél-nyugat
Állapot
Kiváló
Homlokzat állapota
Kiváló
Építés éve
2026
Fürdőszobák száma
1
Társaház kert
igen
Víz
Van
Villany
Van
Csatorna
Van
Tároló
Önálló

Helyiségek

terasz
2.7 m²
előszoba
6.79 m²
hálószoba
10.01 m²
nappali
22.46 m²
konyha
5.19 m²
közlekedő
1.51 m²
wc
1.4 m²
hálószoba
10.03 m²
fürdőszoba
5.76 m²
kamra
4.08 m²
hálószoba
9.73 m²
tároló
16.5 m²
Joó Krisztina
Joó Krisztina

Hitelszakértő

Irodánk kínálatából - Szigethalom

for sale new construction family house

Index image
data_sheet.details.realestate.section.main.otthonstart_flag.label
2

eladó lakás

Index image
Elérhető Otthon Start hitellel
19

for sale row house

Index image
data_sheet.details.realestate.section.main.otthonstart_flag.label
16

eladó családi ház

Index image
Elérhető Otthon Start hitellel
35