Elérhető Otthon Start hitellel
Eladó újépítésű családi ház,
U0049100
Hajdúsámson
79 900 000 Ft
209 000 €
- 95m²
- 4 szoba
Hajdúsámsonban – új 3 szobás családi ház várja Önt!
Hajdúsámson új lakóparkjában újabb családi házak foglalhatóak!
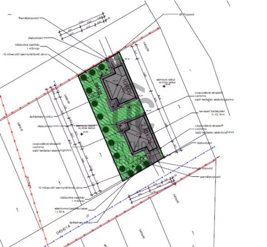
Az építési övezet jellemzői:
-Lke-3 kertvárosias lakózóna
-oldalhatáron álló beépítettség van
-beépítése max 30%, zöldfelület min. 50%
-építménymagasság: 5 m
-előkert és oldalkert mérete: 5 m
Az ingatlanokra vonatkozó adatok:
* telek mérete: 484 m2, a hirdetési ár tartalmazza a telekhányad árát, mely 9 M Ft
* beépített alapterület: 26,42 % ingatlanonként pedig 128,047 m2
* 30-as viablokk hanggátló falazat, 15 cm AUSTROTHERM hőszigeteléssel
* a lakótér területe: 95 m2
* 3 szoba + nappalis elosztású
* nyílásszárók 3 rétegű műanyag nyílászárók fehér színben
* fűtés és melegvíz ellátás víz-levegő hőszivattyú
* osztatlan közös területen található (teljes telek méret 970 m2)
* az ár tartalmazza a térkövezést ill. körbe kerítést,
* víz van az utcában jelenlegi helyzet miatt átadás fúrt kúttal történik vízszűrő berendezéssel, vízóra akna kiépítésre került
* csatorna van telken belül, azonban jelenleg csatlakozási lehetőség nincs
* gáz nincs
* áram van
Tervezett átadás: 2026. dec.31
Az épület jelenleg alapozásnál tart!
Az ingatlanra Csok+, piaci hitel és babaváró támogatás felhsználható!
Az ingatlan tulajdoni lap szerint külterület, ezért az Otthon Start hitel feltételeinek tervezett szerint 2026. januártól felel meg!
Egyeztetés telefonon, megtekintés előre egyeztetett időpontban lehetséges!
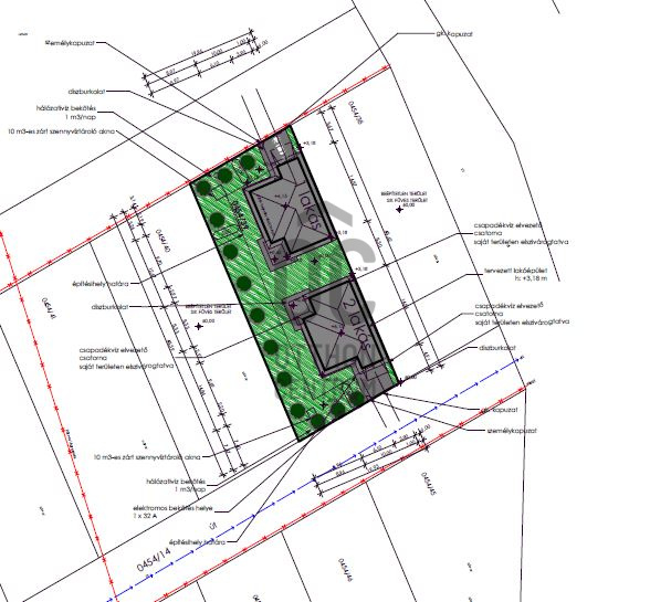
Az építési övezet jellemzői:
-Lke-3 kertvárosias lakózóna
-oldalhatáron álló beépítettség van
-beépítése max 30%, zöldfelület min. 50%
-építménymagasság: 5 m
-előkert és oldalkert mérete: 5 m
Az ingatlanokra vonatkozó adatok:
* telek mérete: 484 m2, a hirdetési ár tartalmazza a telekhányad árát, mely 9 M Ft
* beépített alapterület: 26,42 % ingatlanonként pedig 128,047 m2
* 30-as viablokk hanggátló falazat, 15 cm AUSTROTHERM hőszigeteléssel
* a lakótér területe: 95 m2
* 3 szoba + nappalis elosztású
* nyílásszárók 3 rétegű műanyag nyílászárók fehér színben
* fűtés és melegvíz ellátás víz-levegő hőszivattyú
* osztatlan közös területen található (teljes telek méret 970 m2)
* az ár tartalmazza a térkövezést ill. körbe kerítést,
* víz van az utcában jelenlegi helyzet miatt átadás fúrt kúttal történik vízszűrő berendezéssel, vízóra akna kiépítésre került
* csatorna van telken belül, azonban jelenleg csatlakozási lehetőség nincs
* gáz nincs
* áram van
Tervezett átadás: 2026. dec.31
Az épület jelenleg alapozásnál tart!
Az ingatlanra Csok+, piaci hitel és babaváró támogatás felhsználható!
Az ingatlan tulajdoni lap szerint külterület, ezért az Otthon Start hitel feltételeinek tervezett szerint 2026. januártól felel meg!
Egyeztetés telefonon, megtekintés előre egyeztetett időpontban lehetséges!
Regisztrációs szám
U0049100
Az ingatlan adatai
Értékesités
eladó
Jogi státusz
új
Jelleg
ház
Építési mód
ytong
Méret
95 m²
Bruttó méret
110 m²
Telek méret
482 m²
Terasz / erkély mérete
14 m²
Fűtés
megújuló
Belmagasság
270 cm
Tájolás
Dél-nyugat
Állapot
Kiváló
Homlokzat állapota
Kiváló
Környék
jó közlekedés
Építés éve
2026
Fürdőszobák száma
2
Helyiségek
előszoba
3.65 m²
konyha
10.36 m²
nappali-étkező
31 m²
fürdőszoba-wc
5.75 m²
gardrób
4.56 m²
háztartási helyiség
5.75 m²
hálószoba
13.12 m²
hálószoba
8.01 m²
hálószoba
9.61 m²
fürdőszoba-wc
3.12 m²
Czellér András
Hitelszakértő