Elérhető Otthon Start hitellel
Eladó újépítésű lakás,
U0048948
Szolnok, Belváros
84 067 550 Ft
223 000 €
- 84,4m²
- 4 szoba
- 2. emelet
Eladó igényes újépítésű lakás Szolnok belvárosában!
Szolnok szívében, egy modern, 12 lakásos újépítésű társasházban kínálunk eladásra egy igényesen kialakított, minőségi anyagokból épült lakást. A lakás tágas, világos, energiahatékony, és minden kényelmet biztosít a leendő tulajdonosának.
Ingatlan jellemzői:
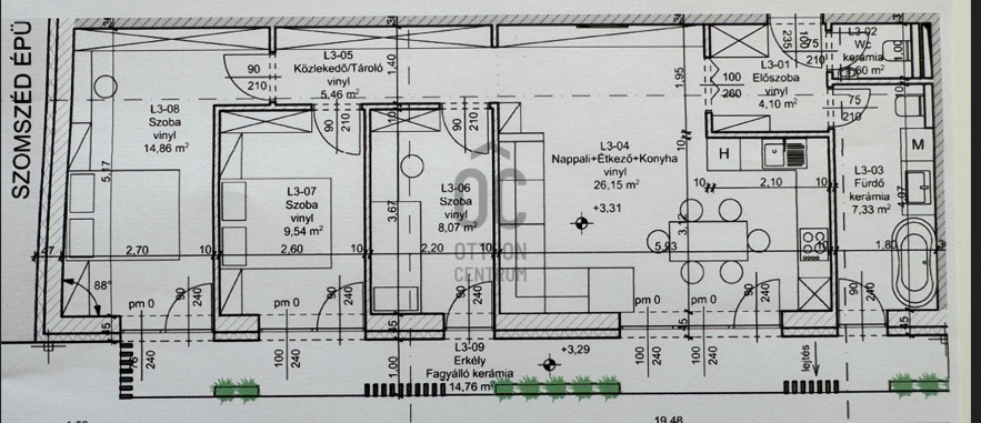
- 77,11 nm +14,76 erkély
- 2. emelet
- nappali+ konyha +étkező (26,15 nm) + 3 szoba
- tágas terek
- fűtés Nobo Fjord fali fűtőtestek
- napelem
- klíma
Ideális választás fiatal pároknak, családoknak vagy befektetésnek is.
Várható átadás : 2026- 09 hó
További műszaki leírással állok rendelkezésére!
Az ingatlanhoz van lehetőség garázs vagy udvari beálló vásárlására.
Irodánkban bankfüggetlen hitel-ügyintézéssel állunk ügyfeleink rendelkezésére!
A hirdetésben szereplő információkat a megbízótól kaptuk, irodánk azokért felelősséget nem vállal!
Ha felkeltettem érdeklődését, kérem hívjon, forduljon hozzám bizalommal, és nézzük meg együtt !
Szolnok szívében, egy modern, 12 lakásos újépítésű társasházban kínálunk eladásra egy igényesen kialakított, minőségi anyagokból épült lakást. A lakás tágas, világos, energiahatékony, és minden kényelmet biztosít a leendő tulajdonosának.
Ingatlan jellemzői:
- 77,11 nm +14,76 erkély
- 2. emelet
- nappali+ konyha +étkező (26,15 nm) + 3 szoba
- tágas terek
- fűtés Nobo Fjord fali fűtőtestek
- napelem
- klíma
Ideális választás fiatal pároknak, családoknak vagy befektetésnek is.
Várható átadás : 2026- 09 hó
További műszaki leírással állok rendelkezésére!
Az ingatlanhoz van lehetőség garázs vagy udvari beálló vásárlására.
Irodánkban bankfüggetlen hitel-ügyintézéssel állunk ügyfeleink rendelkezésére!
A hirdetésben szereplő információkat a megbízótól kaptuk, irodánk azokért felelősséget nem vállal!
Ha felkeltettem érdeklődését, kérem hívjon, forduljon hozzám bizalommal, és nézzük meg együtt !
Regisztrációs szám
U0048948
Az ingatlan adatai
Értékesités
eladó
Jogi státusz
új
Jelleg
lakás
Építési mód
tégla
Méret
84,4 m²
Bruttó méret
84,4 m²
Terasz / erkély mérete
14,7 m²
Fűtés
elektromos, infra
Belmagasság
270 cm
Lakáson belüli szintszám
1
Tájolás
Kelet
Lépcsőház típusa
zárt lépcsőház
Állapot
Kiváló
Homlokzat állapota
Kiváló
Lépcsőház állapota
Kiváló
Építés éve
2026
Fürdőszobák száma
1
Fekvés
utcai
Víz
Van
Villany
Van
Csatorna
Van
Helyiségek
előszoba
4.1 m²
wc-kézmosó
1.6 m²
fürdőszoba
7.33 m²
nappali-konyha
26.15 m²
közlekedő
5.46 m²
szoba
8.07 m²
szoba
9.54 m²
szoba
14.86 m²
Szuda Zsolt
Hitelszakértő