Elérhető Otthon Start hitellel
Eladó újépítésű családi ház,
U0048907
Zalacsány
116 053 860 Ft
299 000 €
- 110m²
- 3 szoba
ELADÓ ÍZLÉSES , ÚJ ÉPÍTÉSŰ CSALÁDI HÁZ ZALACSÁNYBAN !
CSAK AZ OTTHON CENTRUM KIEMELT KÍNÁLATÁBAN!
Eladásra kínálok Zalacsányban a Zala Springs Golf Resort közvetlen szomszédságában , családias ,meghitt környezetben új építésű stílusos ,110 m2 -es családi házakat.
A területen több új családi ház/ikerház kerül felépítésre , ezzel egységes képet és lakóközösséget alkotva kerül megvalósításra a nagy szabású projekt.
Akár állandó lakhatásra , vagy akár nyaralóként használva ideális választás.
Ugyanakkor kifejezetten ajánlom befektetési célra , mint lokáció , mint árérték és minőség tekintetében kimagasló adottságú ingatlan, mindemellett a rohamosan fejlődő Zalacsány folyamatos fejlesztések színterévé vált.
Ár euroban: 299.000€
AZ INGATLAN FŐBB JELLEMZŐI:
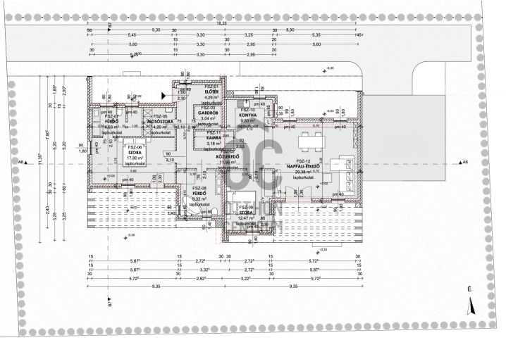
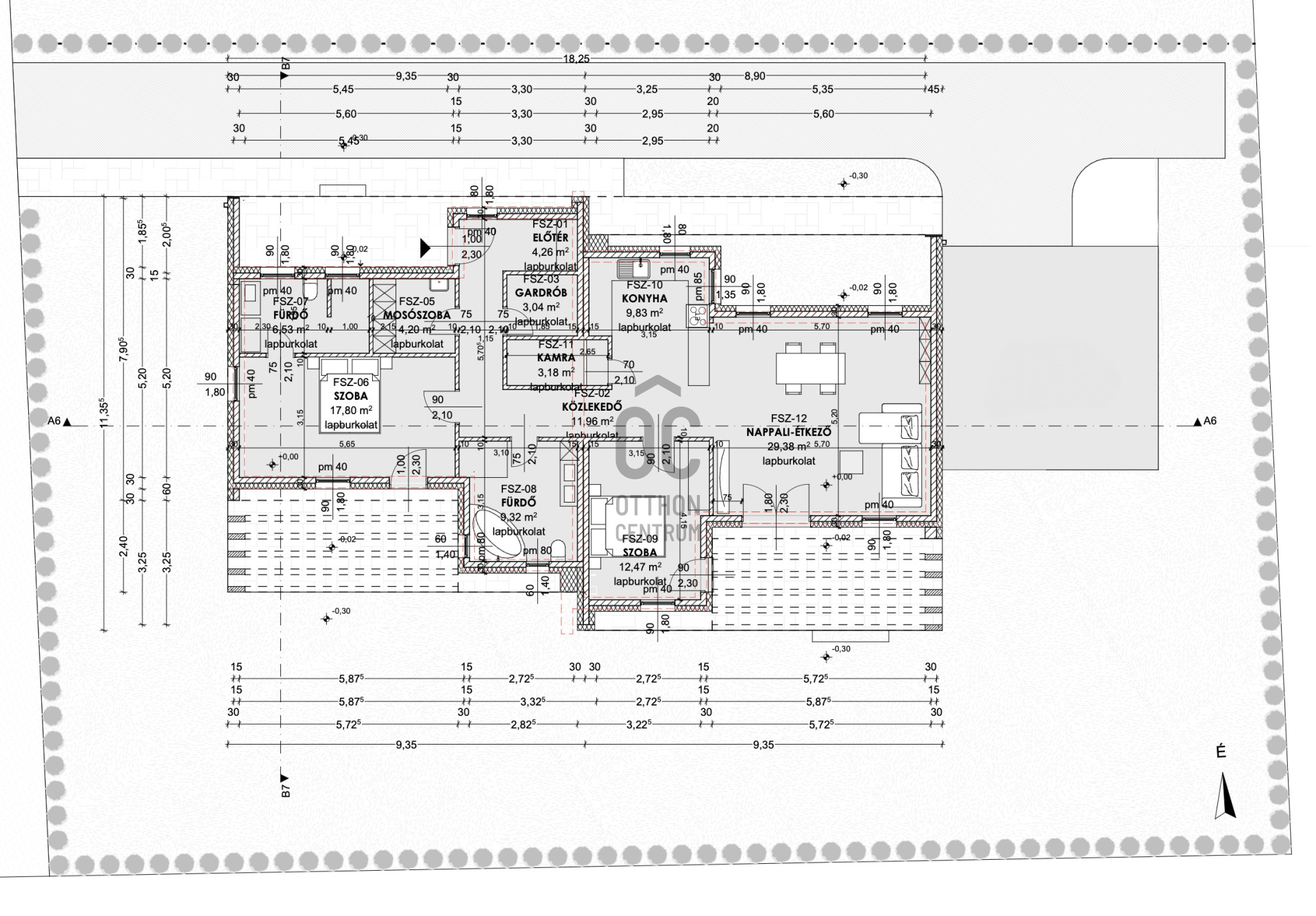
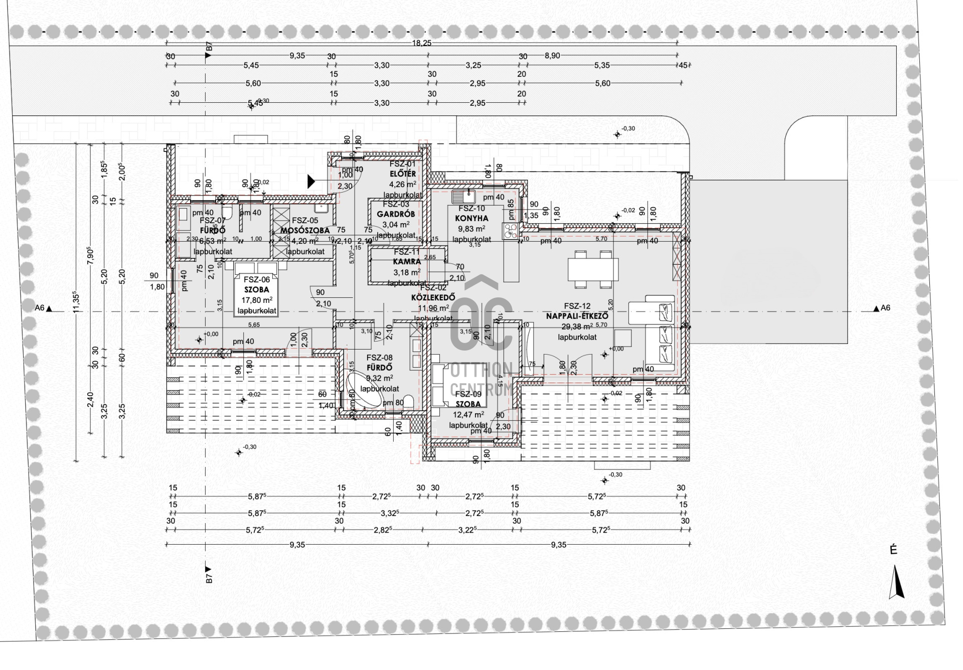
-110 m2 lakótér + dupla 17,5 m2 terasz + 600 m2 kert
- Falazat: Liapor
- Nyílászárók : 3 rétegű hőszigetelt antracit színű műanyag szerkezetű nyílászárok, redőnnyel , szúnyoghálóval
- Fűtés: elektromos padlófűtés (Caleo)
- Festés: Választható színben
- Álmennyezet: sík gipszkarton - álmennyezet a következő helyiségekben: fürdő, mosókonyha, WC, előszoba,
többi helyen felületkezelt mennyezet
- Légtechnika: WC és fürdő kapcsolható ventilátor
- Szaniterek: Mosdó + csaptelep → 200 €/szett,
Wc tartály+csésze+nyomólap → 300 €/szett,
Zuhanyfal + lefolyó +csaptelep + kifolyó szerelvények 600 € /szett
- Vízmelegítés: elektromos bojler 150L
- Hidegburkolat: Előtér, közlekedő, konyha, vizes helyiségek, erkély 30 €/m2
- Melegburkolat: Szobák, élettér, gardrób 30 €/ m2
- Klíma előkészítése 2 db helyen
- 1 db nyitott beálló
A vételár nem tartalmazza a beépített bútorokat, ill . a lámpatesteket. Igény esetén garázs hozzávásárolható ,valamint az elektromos autótöltési lehetőség , ill. hőszivattyús fűtési rendszer kiépítése szintén külön megegyezés tárgyát képezi.
LIAPOR
- Beton alapú, masszív szerkezet, hosszú élettartammal
- Kiváló hő- és hangszigetelés
- Tűzálló és fagyálló
- Páraáteresztő, egészséges lakóklímát biztosít
- Környezetbarát, természetes alapanyagból készül
HOZZÁVÁSÁROLHATÓ GARÁZS
1 férőhelyes 16,27 m2 garázs ára bruttó 9000€.
LOKÁCIÓ
A közelében bolt, étterem, posta, háziorvosi rendelő golfozási lehetőség és egy gyönyörű horgásztó is található .
Kehidakustány: 4 km.
Hévíz: 9,8 km
Keszthely: 15 km.
Hévíz-Balaton Repülőtér 18 km, Budapest pedig körülbelül 2-2,5 órányira elérhető az új M76-os autóútnak köszönhetően!
AMENNYIBEN FELKELTETTE ÉRDEKLŐDÉSÉT , VÁROM HÍVÁSÁT AZ ORSZÁG LEGNAGYOBB ÉS LEGELISMERTEBB INGATLANKÖZVETÍTŐ HÁLÓZATA NEVÉBEN!
Eladásra kínálok Zalacsányban a Zala Springs Golf Resort közvetlen szomszédságában , családias ,meghitt környezetben új építésű stílusos ,110 m2 -es családi házakat.
A területen több új családi ház/ikerház kerül felépítésre , ezzel egységes képet és lakóközösséget alkotva kerül megvalósításra a nagy szabású projekt.
Akár állandó lakhatásra , vagy akár nyaralóként használva ideális választás.
Ugyanakkor kifejezetten ajánlom befektetési célra , mint lokáció , mint árérték és minőség tekintetében kimagasló adottságú ingatlan, mindemellett a rohamosan fejlődő Zalacsány folyamatos fejlesztések színterévé vált.
Ár euroban: 299.000€
AZ INGATLAN FŐBB JELLEMZŐI:
-110 m2 lakótér + dupla 17,5 m2 terasz + 600 m2 kert
- Falazat: Liapor
- Nyílászárók : 3 rétegű hőszigetelt antracit színű műanyag szerkezetű nyílászárok, redőnnyel , szúnyoghálóval
- Fűtés: elektromos padlófűtés (Caleo)
- Festés: Választható színben
- Álmennyezet: sík gipszkarton - álmennyezet a következő helyiségekben: fürdő, mosókonyha, WC, előszoba,
többi helyen felületkezelt mennyezet
- Légtechnika: WC és fürdő kapcsolható ventilátor
- Szaniterek: Mosdó + csaptelep → 200 €/szett,
Wc tartály+csésze+nyomólap → 300 €/szett,
Zuhanyfal + lefolyó +csaptelep + kifolyó szerelvények 600 € /szett
- Vízmelegítés: elektromos bojler 150L
- Hidegburkolat: Előtér, közlekedő, konyha, vizes helyiségek, erkély 30 €/m2
- Melegburkolat: Szobák, élettér, gardrób 30 €/ m2
- Klíma előkészítése 2 db helyen
- 1 db nyitott beálló
A vételár nem tartalmazza a beépített bútorokat, ill . a lámpatesteket. Igény esetén garázs hozzávásárolható ,valamint az elektromos autótöltési lehetőség , ill. hőszivattyús fűtési rendszer kiépítése szintén külön megegyezés tárgyát képezi.
LIAPOR
- Beton alapú, masszív szerkezet, hosszú élettartammal
- Kiváló hő- és hangszigetelés
- Tűzálló és fagyálló
- Páraáteresztő, egészséges lakóklímát biztosít
- Környezetbarát, természetes alapanyagból készül
HOZZÁVÁSÁROLHATÓ GARÁZS
1 férőhelyes 16,27 m2 garázs ára bruttó 9000€.
LOKÁCIÓ
A közelében bolt, étterem, posta, háziorvosi rendelő golfozási lehetőség és egy gyönyörű horgásztó is található .
Kehidakustány: 4 km.
Hévíz: 9,8 km
Keszthely: 15 km.
Hévíz-Balaton Repülőtér 18 km, Budapest pedig körülbelül 2-2,5 órányira elérhető az új M76-os autóútnak köszönhetően!
AMENNYIBEN FELKELTETTE ÉRDEKLŐDÉSÉT , VÁROM HÍVÁSÁT AZ ORSZÁG LEGNAGYOBB ÉS LEGELISMERTEBB INGATLANKÖZVETÍTŐ HÁLÓZATA NEVÉBEN!
Regisztrációs szám
U0048907
Az ingatlan adatai
Értékesités
eladó
Jogi státusz
új
Jelleg
ház
Építési mód
tégla
Méret
110 m²
Bruttó méret
120 m²
Telek méret
600 m²
Terasz / erkély mérete
17,5 m²
Kert méret
600 m²
Fűtés
hőszivattyú
Belmagasság
270 cm
Tájolás
Dél-nyugat
Állapot
Kiváló
Homlokzat állapota
Kiváló
Környék
csendes, jó közlekedés, zöld, központi
Építés éve
2026
Fürdőszobák száma
2
Társaház kert
igen
Víz
Van
Gáz
Utcán
Villany
Van
Csatorna
Van
Helyiségek
előszoba
4.26 m²
közlekedő
11.96 m²
gardrób
3.04 m²
háztartási helyiség
4.29 m²
szoba
17.8 m²
fürdőszoba-wc
6.53 m²
fürdőszoba-wc
9.32 m²
szoba
12.47 m²
konyha
9.83 m²
kamra
3.18 m²
nappali-étkező
29.38 m²
terasz
17.5 m²
terasz
17.5 m²